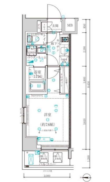
***号室

写真を見る
13.5万円 (共益費 25,000円)
- 敷
- -
- 礼
- 1ヶ月
- 保
- -
- 償
- -
公開
ARTESSIMO REFINAは、東京都新宿区舟町にある11階建の賃貸マンションです。築年月は、2019年9月で現在築7年になります。最寄り駅の東京メトロ 丸ノ内線四谷三丁目駅から徒歩3分です。
この建物に3件の情報更新日:




地下鉄雑司が谷駅から徒歩10分
宣教師の生活を知る明治期の貴重な建物
明治40(1907)年にアメリカ人宣教師、J.M.マッケーレブが居宅として建てたもの。明治期の希少な木造洋風建築であり、東京都指定有形文化財。雑司が谷地域の歴史・文化を併せて展示している。
提供元:昭文社
JR中央線東中野駅から徒歩3分
多彩な風呂を楽しめる地元密着型のスーパー銭湯
東中野駅そばにある地元密着型のスーパー銭湯。中温風呂、熱めの風呂のほか、ボディジェット、スーパージェット、リラックスバス、人工高濃度炭酸泉、シルクバスなど多彩な風呂が揃う。
提供元:昭文社

JR山手線高田馬場駅から徒歩3分
絶妙なレア状態のローストビーフ
名物「ローストビーフ丼」は、丼を覆い尽くすほど肉がこんもり。肉は低めの温度で長時間火入れされることで、うま味を凝縮。上にかかるヨーグルトソースも絶妙なアクセントに。
提供元:昭文社