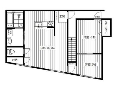
202号室

写真を見る
8.2万円 (共益費 2,000円)
- 敷
- 1ヶ月
- 礼
- -
- 保
- -
- 償
- -
公開
藤田コーポは、東京都八王子市大和田町にある2階建の賃貸マンションです。築年月は、1982年3月で現在築44年になります。最寄り駅の京王線京王八王子駅から徒歩10分です。
この建物に3件の情報更新日:




JR中央線八王子駅からすぐ
八王子駅前に位置するシックでモダンなホテル
八王子駅前に位置するシックでモダンなホテル。結婚式場、レストランなど施設が充実している。最上階からの眺望は抜群だ。
提供元:昭文社




JR中央線八王子駅から西東京バスみつい台行きで10分、サイエンスドーム下車すぐ
いろいろな体験で科学に目覚める
大人でも十分楽しめる科学館。体験型の展示が約40種類もあり、光、磁気などテーマにわかれている。科学専門の図書コーナーのほか、プラネタリウムでは今夜の星空や天文現象の解説もある。
提供元:昭文社

JR中央線八王子駅から西東京バス富士美術館行きで9分、浅川橋下車、徒歩5分
来店途上、道に迷う人が多いため「幻のラーメン」と呼ばれる
店の場所がわからず迷う人が多いため「幻のラーメン」と呼ばれる、昭和52(1977)年創業の店。やわらかく茹でた麺はコクのある甘めのスープにマッチする。
提供元:昭文社