2F号室

17.5万円 (共益費 5,000円)
- 敷
- -
- 礼
- 2ヶ月
- 保
- -
- 償
- -
公開
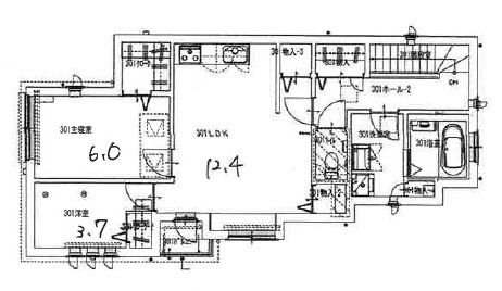
ティーメゾン志木は、埼玉県志木市本町にある3階建の賃貸マンションです。築年月は、2026年3月で現在築0年になります。最寄り駅の東武東上線志木駅から徒歩8分です。
この建物に4件の情報更新日:
取り扱う不動産会社・店舗が2社、募集中の部屋が4部屋あります。

17.5万円 (共益費 5,000円)
公開

17.5万円 (共益費 5,000円)
公開

17.7万円 (共益費 5,000円)
公開

17.7万円 (共益費 5,000円)
公開
40代 / 男性 / 住人
近くに総合病院がある。 駅前にクリニックが入ったビルかある。 駅前に保育園がある。 近隣に公園がたくさんある。
20代 / 女性 / 住人
駅前には歯医者、皮膚科、眼科など生活に必要な病院は基本的になんでもあるので困ることはないと思います。
※口コミに関するお問い合わせはこちらからお願いします。