305号室

写真を見る
8.5万円 (共益費 3,000円)
- 敷
- -
- 礼
- -
- 保
- -
- 償
- -
公開
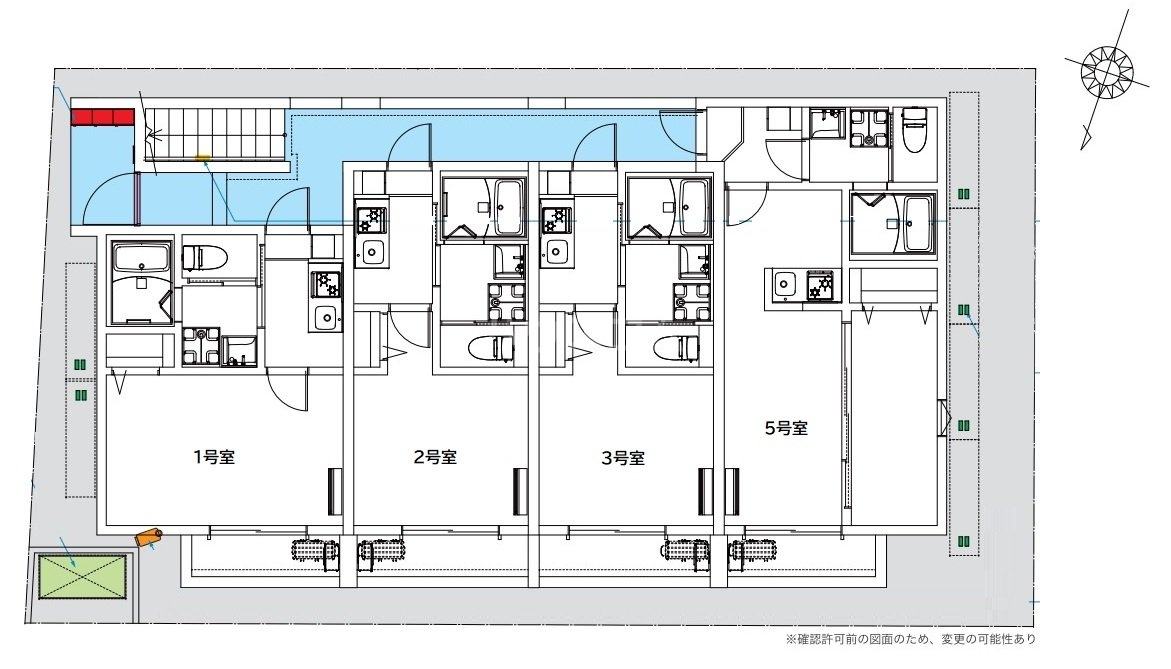
レジデンス鉄博は、埼玉県さいたま市北区東大成町にある3階建の賃貸アパートです。築年月は、2024年11月で現在築2年になります。最寄り駅のニューシャトル(埼玉新都市交通伊奈線)鉄道博物館(大成)駅から徒歩8分です。
この建物に5件の情報更新日:
参考賃料 |
6.7万円~8.5万円 |
|---|---|
間取り |
1K~1DK |
空室 |
5部屋 空室を見る |
物件種別 |
賃貸アパート |
階層 |
地上3階 |
構造 |
木造 |
築年数 |
2024年11月(築2年) |
駐車場 |
- |
最寄駅 |
|
所在地 |
埼玉県さいたま市北区東大成町 |
小学校学区 |
東大成小学校 |
中学校学区 |
植竹中学校 |
取り扱う不動産会社・店舗が5社、募集中の部屋が5部屋あります。

写真を見る












8.5万円 (共益費 3,000円)
公開

写真を見る












8.5万円 (共益費 3,000円)
公開

写真を見る












8.5万円 (共益費 3,000円)
公開

写真を見る












8.5万円 (共益費 3,000円)
公開

写真を見る












8.5万円 (共益費 3,000円)
公開
掲載履歴とは、過去に掲載された時点の情報を履歴として一覧にまとめたものです。
※最終的な成約賃料とは異なる場合があります。また、将来の募集賃料を保証するものではありません。
30代 / 男性 / 元住人
非常に落ち着いた街なので治安は比較的いいと思う。特に何もないがその分子育て草などのファミリー層も多く落ち着いた街である
30代 / 男性 / 購入検討者
不満というわけではないですが、買い物面はちょっと弱いのかなと感じました。駅前に東武ストアがありますが、そこまで品揃えはない模様。ドラッグストアにいたっては0なので、お子さんがいらっしゃる方はかなり不便するのでは。大宮の隣駅という点が裏目に出ている気がします。
※口コミに関するお問い合わせはこちらからお願いします。



東武アーバンパークライン大宮公園駅から徒歩5分
埼玉の歴史と民俗が学べる
日本のあけぼのから戦国時代、江戸の産業と文化、埼玉の誕生などの歴史を展示。民俗展示室では昭和30年代の暮らしを再現。美術展示室では季節ごとにテーマを変えて美の世界を紹介する。
提供元:昭文社




東武アーバンパークライン大宮公園駅から徒歩10分
小さいながらたくさんの動物に会える
大宮公園内にある入場無料の小さな動物園。ニホンザルや絶滅危惧種のシシオザルが間近に観察できる。フラミンゴなどの鳥類も多い。
提供元:昭文社




JR東北新幹線大宮駅から徒歩20分
由緒ある氷川神社の総本社
2000年以上の歴史を持つ、東京・埼玉・神奈川に多数点在する氷川神社の総本社。12月の大湯祭と初詣には全国から多くの参拝客が訪れ、1000軒以上の露店が並びにぎわう。
提供元:昭文社