403号室

写真を見る
5.3万円 (共益費 3,000円)
- 敷
- -
- 礼
- -
- 保
- -
- 償
- -
公開
シャトレ六番館は、静岡県磐田市見付にある4階建の賃貸マンションです。築年月は、2007年10月で現在築19年になります。最寄り駅の東海道本線(JR東海)磐田駅からバスで20分、二番町上から徒歩4分です。
この建物に3件の情報更新日:
参考賃料 |
5.3万円 |
|---|---|
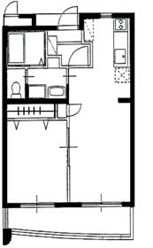
間取り |
1LDK |
空室 |
3部屋 空室を見る |
物件種別 |
賃貸マンション |
階層 |
地上4階 |
構造 |
RC |
築年数 |
2007年10月(築19年) |
駐車場 |
3,300円 |
最寄駅 |
|
所在地 |
静岡県磐田市見付 |
小学校学区 |
磐田北小学校 |
中学校学区 |
城山中学校 |
50代 / 女性 / 元住人
田園風景なので色々な虫や生き物を見かけます。カブトムシも門灯に飛んできます。子供を育てるには良い環境だと思います。
30代 / 女性 / 元住人
駅前には居酒屋もガールズバーも何軒かあるため、深夜遅くに酔っ払い集団の声が聞こえることがありやや不快。
※口コミに関するお問い合わせはこちらからお願いします。




JR東海道本線磐田駅から徒歩15分
プレゼントに最適なカワイイスイーツ
いま話題のトゥンカロンをはじめ、かわいらしいマカロンやアイシングクッキーが揃うギフトのお店。
提供元:昭文社




JR東海道本線磐田駅から遠鉄バス磐田市立病院行きで10分、旧見付学校下車すぐ
日本最古の木造擬洋風小学校校舎
明治8(1875)年に完成。現存する木造擬洋風建築の小学校としては日本最古を誇る。現在は教育資料館となっている。5階建てで1階の教室では昔の授業風景を再現。毎年8月には模擬授業を開催。
提供元:昭文社

JR東海道本線磐田駅から遠鉄バスららぽーと磐田行きまたは二俣山東行きで10分、宝新道下車すぐ
野菜の旨みがつまったヘルシーカレー
地場野菜にこだわった、やさしいヘルシーな味が人気のカレー専門店。人気メニューの磐田名物おもろカレーは、4種類の豆の食感とトロトロに煮込んだ豚足(おもろ)の相性が抜群。
提供元:昭文社