***号室

写真を見る
13.6万円 (共益費 10,000円)
- 敷
- 1ヶ月
- 礼
- -
- 保
- -
- 償
- -
公開
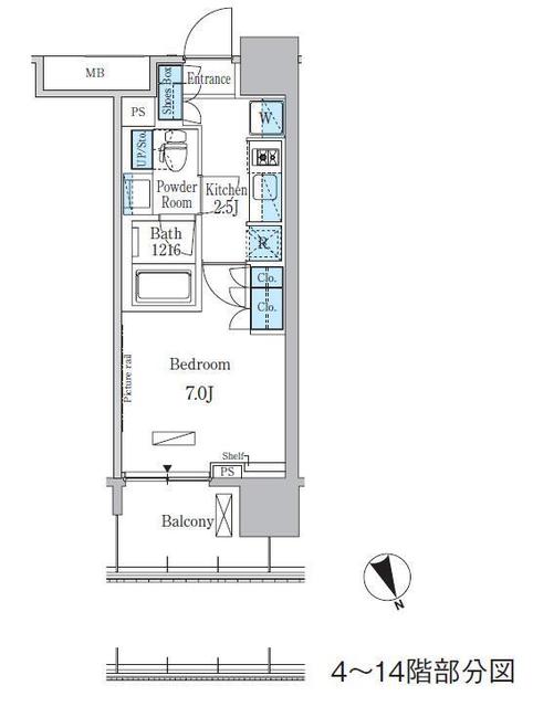
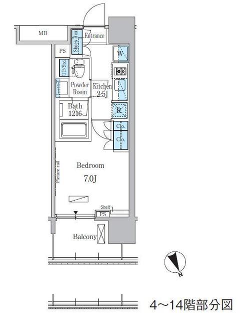
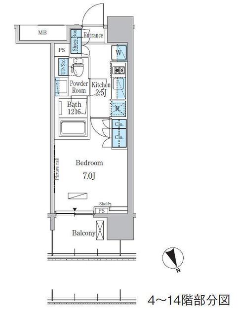
パークアクシス浅草・田原町は、東京都台東区寿にある14階建の賃貸マンションです。築年月は、2014年6月で現在築12年になります。最寄り駅の東京メトロ 銀座線田原町駅から徒歩2分です。
この建物に2件の情報更新日:
取り扱う不動産会社・店舗が2社、募集中の部屋が2部屋あります。

写真を見る






















13.6万円 (共益費 10,000円)
公開

写真を見る






















13.6万円 (共益費 10,000円)
公開
掲載履歴とは、過去に掲載された時点の情報を履歴として一覧にまとめたものです。
※最終的な成約賃料とは異なる場合があります。また、将来の募集賃料を保証するものではありません。




東武スカイツリーラインとうきょうスカイツリー駅からすぐ
いきものの息づかいを間近で感じる
約250種のいきものを展示。世界遺産・小笠原諸島の海を再現した小笠原大水槽や、ペンギンとオットセイが暮らす屋内開放型水槽など、いきものを間近で観察できる。
提供元:昭文社

東武スカイツリーラインとうきょうスカイツリー駅からすぐ
東京スカイツリーの足元に広がる大型商業施設
タワーの足元に広がり、300店以上が集結する大型商業施設。フード、ファッション、雑貨など、いずれも多彩なラインナップ。ソラマチ限定メニューやグッズも目白押しだ。
提供元:昭文社




東武スカイツリーラインとうきょうスカイツリー駅からすぐ
2つの展望台から絶景を楽しむ
高さ634mの世界一高い自立式電波塔。空に向かって伸びる大きな木をイメージした造り。地上350mと450mの位置に展望台が設置され、450mからは晴天時、約75km先まで見渡せる。
提供元:昭文社