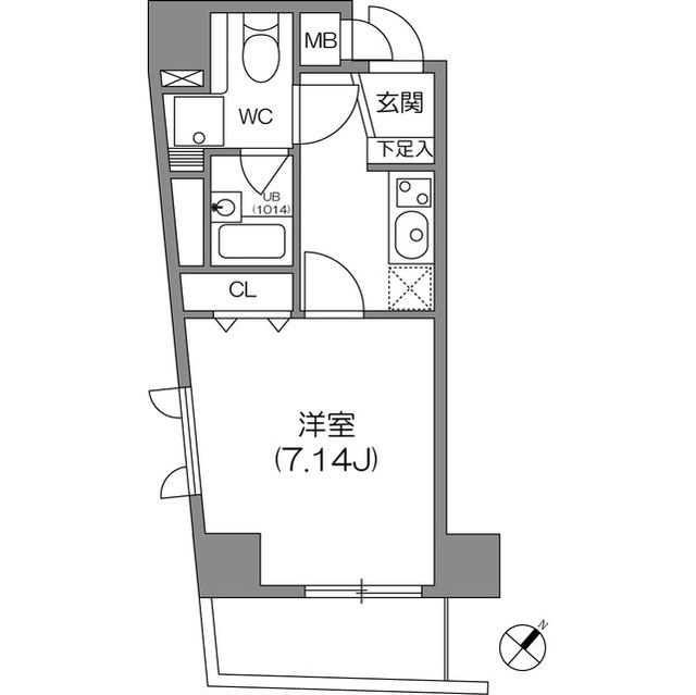
0304号室

写真を見る
13.1万円 (共益費 15,000円)
- 敷
- -
- 礼
- 131,000円
- 保
- -
- 償
- -
公開
ジョイシティ小石川は、東京都文京区大塚にある8階建の賃貸マンションです。築年月は、2006年7月で現在築20年になります。最寄り駅の東京メトロ 丸ノ内線茗荷谷駅から徒歩6分です。
この建物に6件の情報更新日:
参考賃料 |
10万円~13.1万円 |
|---|---|
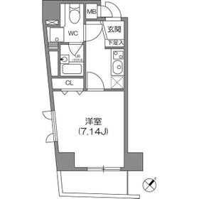
間取り |
1K |
空室 |
6部屋 空室を見る |
物件種別 |
賃貸マンション |
階層 |
地上8階 |
構造 |
RC |
築年数 |
2006年7月(築20年) |
駐車場 |
- |
最寄駅 |
|
所在地 |
東京都文京区大塚 |
小学校学区 |
大塚小学校 |
中学校学区 |
第一中学校 |
取り扱う不動産会社・店舗が2社、募集中の部屋が6部屋あります。

写真を見る










13.1万円 (共益費 15,000円)
公開

写真を見る










13.1万円 (共益費 15,000円)
公開

写真を見る




















10万円 (共益費 15,000円)
公開

写真を見る




















10万円 (共益費 15,000円)
公開

写真を見る








13.1万円 (共益費 15,000円)
公開

写真を見る













10万円 (共益費 15,000円)
公開
40代 / 男性 / 元住人
文京区全般にそうですが、交番や警官の数が多い気がします。一人暮らしの女性も多く、治安は都内でもかなりいいようです。むしろ、自転車の傘差し運転していると警官に止められる可能性が高いです。深夜、自転車で帰宅していると、警官に止められて防犯登録確認をされることが、年数回あります。面倒なところもありますが、街のセキュリティとしては安心です。
50代 / 女性 / 入居予定者
公園は結構あります。文京区はには小石川庭園や小石川後楽園や小石川植物園など多くの庭園があるので都内では緑の街と言えます。
※口コミに関するお問い合わせはこちらからお願いします。


JR山手線池袋駅から徒歩8分
楽しいアトラクションやフードが充実
13のアトラクションと、餃子やデザートなどのフードが充実した屋内型テーマパーク。園内は西洋風、昭和レトロ、もののけ番外地の3つの街区に分かれており、それぞれ違った雰囲気が味わえる。
提供元:昭文社




地下鉄東池袋駅から徒歩5分
天空のオアシスを基本コンセプトにした水族館
ビル屋上にある都市型高層水族館。大海の旅、水辺の旅、天空の旅の3エリアに分かれており、ペンギンが空を飛ぶように泳ぐ水槽や、日本最大級のクラゲ水槽を含むクラゲエリアなど、ユニークな展示を実施。水の世界を五感で体験できる。
提供元:昭文社




地下鉄東池袋駅から徒歩10分
深い奥行き感のあるリアルな星空を体感
全天ドームスクリーンに映し出される8Kマルチプロジェクションシステムにより、臨場感の高い鮮やかな映像を実現。リニューアルにより、寝転んで星空を眺められる『雲シート』とともに大人気の『芝シート』が更に心ときめくエリアに。プラネタリウムの伝説的名作『銀河鉄道の夜』を、満天史上最も美しいクオリティで上映する。都会の真ん中で体感したことのない世界に浸れ、特別な時間を堪能できる。
提供元:昭文社