202号室

写真を見る
7.6万円 (共益費 9,500円)
- 敷
- 51,000円
- 礼
- 2ヶ月
- 保
- -
- 償
- -
公開
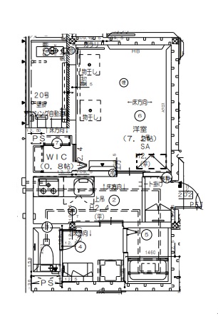
モア・メゾンは、大阪府大阪市都島区都島北通にある3階建の賃貸アパートです。築年月は、2026年2月で現在築1年になります。最寄り駅の大阪メトロ 谷町線都島駅から徒歩7分です。
この建物に3件の情報更新日:
取り扱う不動産会社・店舗が3社、募集中の部屋が3部屋あります。

写真を見る



























7.6万円 (共益費 9,500円)
公開

写真を見る



























7.6万円 (共益費 9,500円)
公開

写真を見る



























7.6万円 (共益費 9,500円)
公開
掲載履歴とは、過去に掲載された時点の情報を履歴として一覧にまとめたものです。
※最終的な成約賃料とは異なる場合があります。また、将来の募集賃料を保証するものではありません。
30代 / 女性 / 元住人
ファミリー層が住む地域であり、学校も駅近くにあるため治安は良い。駅前に何軒か飲食店があるので夜道も明るくて安全。交番も駅前にある。
30代 / 男性 / 元住人
まわりはすーぱー、病院とあるので そこまで困らないかなあとは思う。 梅田にアクセスがいいのもいいところだもかんじた
※口コミに関するお問い合わせはこちらからお願いします。