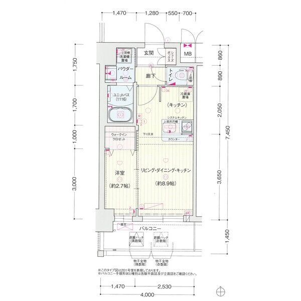
ワールドアイ大阪East City
賃貸マンション
- 所在地
- 大阪府東大阪市長田東
- 最寄駅
-
- 近鉄けいはんな線 長田駅 (徒歩3分)
- 近鉄けいはんな線 荒本駅 (徒歩13分)
- 築年月
- 2026年2月
- 構造
- RC
- 階数
- 地上14階
***号室

写真を見る
5.83万円(共益費 10,000円)
- 敷
- -
- 礼
- -
- 保
- -
- 償
- -
公開
