ginga Express C号室(1階/2LDK)の賃貸物件(賃貸アパート)
静岡県掛川市にあるginga Express C号室は追い焚き、シャワー付洗面化粧台、インターネット可、オンライン相談可、保証人不要などが特徴です。最寄り駅の東海道本線(JR東海)掛川駅から徒歩5分です。ginga Express C号室の詳細はハウスコム 掛川店までお気軽にお問い合わせください!
情報更新日:
次回更新予定日:
※次回更新予定日について:お店側では順次空室確認を行っていますが、次回更新予定日までに空室確認が行えない場合には、この物件情報は自動的に削除されます。
ginga Express C号室の賃貸物件部屋概要
家賃 |
13.5万円
初期費用を |
|---|---|
共益費 |
3,000円
入居可能時期 |
敷金/礼金 |
- / 50,000円 |
保証金/ |
2ヶ月 / - |
最寄駅 |
|
所在地 |
静岡県掛川市中央 |
部屋番号 |
C号室 |
間取り |
2LDK(LD0・K0・洋0・洋0) |
専有面積 |
95.00㎡ |
築年数 |
新築 |
階数 |
1階部分(地上3階建) |
方位・位置 |
南 / その他 |
物件種別 |
賃貸アパート |
構造 |
木造 |
駐車場 |
空有 賃料に含む |
小学校学区 |
中央小学校 |
中学校学区 |
西中学校 |
他の空き部屋 |
A号室 B号室 |
- 学区データについて
- ※学区データは必ずしも正確とは限りません。詳細に関しては最寄店舗または各自治体の教育委員会に必ずご確認ください。
ginga Express C号室の特徴
-
一人暮らしに人気の設備

-
カップルに人気の設備

-
家族に人気の設備

-
夫婦に人気の設備

-
三世代で人気の設備

-
キッチン重視

-
外で子どもと遊びたい

-
子どもと一緒に広いお風呂に入りたい

-
急な来客でも駐車したい

-
雨の日でも洗濯したい

-
洋室で暮らしたい

-
服やおしゃれが好き

-
推し活グッズを飾りたい

-
オークション・通販が好き

-
ガーデニングが好き

契約条件
ご契約時に保証人は不要です。 敷金が無料なため、初期費用が比較的安くなる傾向にあります。
セキュリティ
この物件の建物には、宅配ボックスが設置されており、来客時には居室内のテレビモニターにて訪問者の顔を確認することができます。
室内設備
システムキッチンには、ガスコンロが設置されており、キッチン設備として食洗機が備え付けられています。 お風呂とトイレは別です。お風呂には、追い焚き機能が備わっています。 トイレは、温水洗浄便座機能付きになります。 女性に嬉しい設備のシャワーの付いている洗面化粧台があります。 洗濯に便利な設備として、浴室乾燥機も設置されているので、梅雨時の生乾き臭も比較的防ぐことができます。
居室状況
お部屋の床は、フローリングとなっており、エアコンが設置されています。 照明器具が備え付けられており、インターネットも無料で入居後すぐ生活が始められます。 収納スペースとして、基本的な居室にクローゼットを設置、通常よりも収納力の高いウォークインクローゼット、玄関にはシューズボックスがあります。
建物設備共用部分
居室外の専有スペースとして、洗濯物を干すなどの用途として利用できるバルコニーがあります。 建物の共用スペースに、急な外出や不在がちのご家庭の荷物受け取りに便利な宅配ボックスが設置されています。 平面駐車場があり2台以上の車で利用することができます。
周辺施設
この物件の学区は、中央小学校区・西中学校区です。
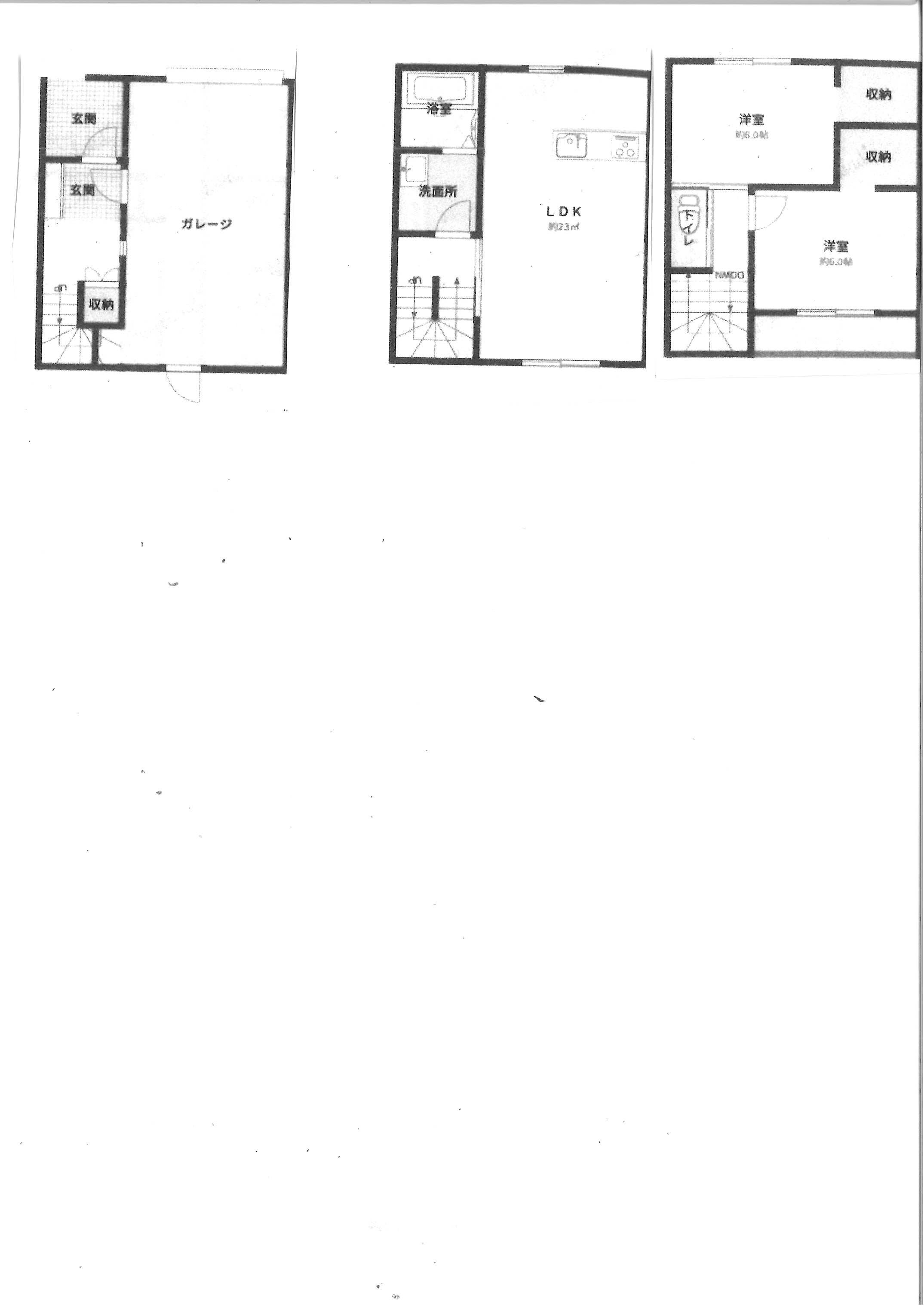
ginga Express C号室の間取り
間取り:2LDK
間取詳細:2LDK(LD0・K0・洋0・洋0)
専有面積:95.00㎡
方位:南
部屋位置:その他
ginga Express C号室の設備
キッチン
システムキッチン
カウンターキッチン
ガスコンロ
食洗機
バス・トイレ
バス・トイレ別
追い焚き
浴室乾燥機
温水洗浄便座
独立洗面台
シャワー付洗面化粧台
玄関
TVモニタ付インターホン
宅配ボックス
収納
クローゼット
ウォークインクローゼット
シューズボックス
バルコニー
バルコニー
ルーフバルコニー
室内設備
エアコン
フローリング
照明器具付
位置・立地
1階
南向き
インフラ
インターネット可
建物設備
駐車場
平面駐車場
駐車2台以上可
入居条件
オンライン相談可
オンライン内見可
保証人不要
ライフステージ
一人暮らしに人気の設備
カップルに人気の設備
家族に人気の設備
夫婦に人気の設備
三世代で人気の設備
こだわり
キッチン重視
外で子どもと遊びたい
子どもと一緒に広いお風呂に入りたい
急な来客でも駐車したい
雨の日でも洗濯したい
洋室で暮らしたい
趣味
服やおしゃれが好き
推し活グッズを飾りたい
オークション・通販が好き
ガーデニングが好き
お得な条件
インターネット無料
ginga Express C号室の賃貸契約情報
毎月支払う |
家賃13.5万円/月共益費3,000円/月 |
|---|---|
初期費用 |
敷金-礼金50,000円保証金2ヶ月敷引き償却金- |
更新料 |
- |
鍵交換費用 |
- |
室内清掃費用 |
- |
駐車場料金 |
空有 賃料に含む |
損保・ |
借家賠付きの火災保険にご加入いただきます。 |
保証会社 |
加入要 保証会社利用料:ふじさん宅建、初回保証67.5% |
契約期間 |
2年 |
入居可能日 |
2026年02月中旬 |
フリーレント期間 |
- |
取引形態 |
一般媒介 |
備考 |
- |
ginga Express C号室の建物情報
建物名称 |
ginga Express |
|---|---|
最寄駅 |
|
所在地 |
静岡県掛川市中央 |
階層 |
1階部分(地上3階建) |
構造 |
木造 |
築年数 |
新築 |
駐車場 |
空有 賃料に含む |
小学校学区 |
中央小学校 |
中学校学区 |
西中学校 |
- 学区データについて
- ※学区データは必ずしも正確とは限りません。詳細に関しては最寄店舗または各自治体の教育委員会に必ずご確認ください。
無料この物件に問い合わせ
- ginga Express C号室

-
13.5万円
(共益費
3,000円)
- 敷
- -
- 礼
- 50,000円
- 保
- 2ヶ月
- 償
- -
ginga Express C号室の物件のお問い合わせ先・取り扱い店舗
ハウスコム 掛川店
- アクセス
-
東海道本線(JR東海)「掛川駅」徒歩3分
- 住所
- 〒436-0077 静岡県掛川市駅前4−1 四ツ角ビル 1階
- 営業時間
- 10:00~18:00
- 定休日
- 水曜日
- 営業エリア
- 掛川市・袋井市・菊川市・御前崎市・磐田市・牧之原市
- 取引態様
- 賃貸仲介業
























