泉尾の完工年月(2025年11月)築の賃貸マンション ***号室(10階/1K)の賃貸物件(賃貸マンション)
大阪府大阪市大正区にある泉尾の完工年月(2025年11月)築の賃貸マンション ***号室は温水洗浄便座、オートロック、エアコン、2階以上、南向きなどが特徴です。最寄り駅の大阪環状線大正駅から徒歩7分です。泉尾の完工年月(2025年11月)築の賃貸マンション ***号室の詳細はクラスモ FC大正店までお気軽にお問い合わせください!
情報更新日:
次回更新予定日:
※次回更新予定日について:お店側では順次空室確認を行っていますが、次回更新予定日までに空室確認が行えない場合には、この物件情報は自動的に削除されます。
泉尾の完工年月(2025年11月)築の賃貸マンション ***号室の賃貸物件部屋概要
- 学区データについて
- ※学区データは必ずしも正確とは限りません。詳細に関しては最寄店舗または各自治体の教育委員会に必ずご確認ください。
泉尾の完工年月(2025年11月)築の賃貸マンション ***号室の特徴
-
一人暮らしに人気の設備

-
カップルに人気の設備

-
家族に人気の設備

-
夫婦に人気の設備

-
三世代で人気の設備

-
タイパ重視

-
身だしなみに気をつかいたい

-
雨の日でも洗濯したい

-
洋室で暮らしたい

-
オークション・通販が好き

契約条件
敷金が無料なため、初期費用が比較的安くなる傾向にあります。 お支払いは、初期費用がクレジットカードにて決済できます。
セキュリティ
この物件の建物には、オートロックや防犯カメラや宅配ボックスが設置されております。
室内設備
システムキッチンが備え付けられています。 トイレは、温水洗浄便座機能付きになります。 女性に嬉しい設備のシャワーの付いている洗面化粧台があります。 洗濯に便利な設備として、室内洗濯機置場があります。浴室乾燥機も設置されているので、梅雨時の生乾き臭も比較的防ぐことができます。
居室状況
お部屋の床は、フローリングとなっており、エアコンが設置されています。 インターネットも無料で入居後すぐ生活が始められます。 収納スペースとして、基本的な居室にクローゼットがあります。
建物設備共用部分
居室外の専有スペースとして、洗濯物を干すなどの用途として利用できるバルコニーがあります。 建物の共用スペースに、日々の出入に便利なエレベーターや、いざという時の防犯カメラや、急な外出や不在がちのご家庭の荷物受け取りに便利な宅配ボックスや、居室内を常に清潔に保てる24時間利用可能なゴミ捨て置き場が設置されています。 駐輪場、バイク置き場が利用できます。
周辺施設
この物件の学区は、三軒家西小学校区・大正東中学校区です。近くには、徒歩2分(128m)で公園が、徒歩1分(42m)で銀行があります。
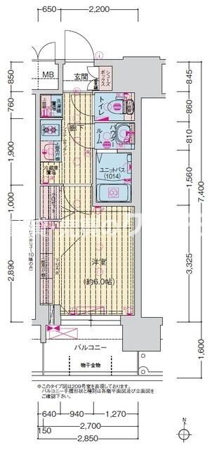
泉尾の完工年月(2025年11月)築の賃貸マンション ***号室の間取り
間取り:1K
間取詳細:1K(洋6)
専有面積:21.09㎡
方位:南
部屋位置:その他
泉尾の完工年月(2025年11月)築の賃貸マンション ***号室の設備
キッチン
システムキッチン
バス・トイレ
バス・トイレ別
浴室乾燥機
温水洗浄便座
独立洗面台
シャワー付洗面化粧台
玄関
オートロック
宅配ボックス
収納
クローゼット
バルコニー
バルコニー
室内設備
エアコン
フローリング
室内洗濯機置場
位置・立地
2階以上
南向き
インフラ
CATV
都市ガス
建物設備
エレベーター
防犯カメラ
24時間ゴミ出しOK
24時間換気システム
駐輪場
バイク置き場
分譲賃貸
ライフステージ
一人暮らしに人気の設備
カップルに人気の設備
家族に人気の設備
夫婦に人気の設備
三世代で人気の設備
こだわり
タイパ重視
身だしなみに気をつかいたい
雨の日でも洗濯したい
洋室で暮らしたい
趣味
オークション・通販が好き
お得な条件
インターネット無料
初期費用カード決済可
泉尾の完工年月(2025年11月)築の賃貸マンション ***号室の賃貸契約情報
毎月支払う |
家賃6.63万円/月共益費6,120円/月 |
|---|---|
初期費用 |
敷金-礼金1ヶ月 (6.63万円)保証金-敷引き償却金- |
更新料 |
- |
鍵交換費用 |
22,000円 |
室内清掃費用 |
38,500円 |
プレサポ安心24 |
990円 |
駐車場料金 |
15,000円 |
損保・ |
借家賠付きの火災保険にご加入いただきます。 |
保証会社 |
加入要 保証会社:その他 保証会社利用料:都度、お問合せください。 |
契約期間 |
2年 |
入居可能日 |
2025年11月下旬 |
フリーレント期間 |
- |
取引形態 |
仲介 |
備考 |
- |
泉尾の完工年月(2025年11月)築の賃貸マンション ***号室の建物情報
建物名称 |
泉尾の完工年月(2025年11月)築の賃貸マンション |
|---|---|
最寄駅 |
|
所在地 |
大阪府大阪市大正区泉尾 |
階層 |
10階部分(地上15階建) |
構造 |
RC |
築年数 |
新築 |
駐車場 |
15,000円 |
小学校学区 |
三軒家西小学校 |
中学校学区 |
大正東中学校 |
- 学区データについて
- ※学区データは必ずしも正確とは限りません。詳細に関しては最寄店舗または各自治体の教育委員会に必ずご確認ください。
無料この物件に問い合わせ
- 泉尾の完工年月(2025年11月)築の賃貸マンション ***号室

-
6.63万円
(共益費
6,120円)
- 敷
- -
- 礼
- 1ヶ月
- 保
- -
- 償
- -
泉尾の完工年月(2025年11月)築の賃貸マンション ***号室の物件のお問い合わせ先・取り扱い店舗
クラスモ FC大正店
- アクセス
-
大阪環状線「大正駅」徒歩5分
大阪メトロ 長堀鶴見緑地線「大正駅」徒歩6分
阪神なんば線「ドーム前駅」徒歩13分
- 住所
- 〒551-0002 大阪府大阪市大正区三軒家東4丁目5−15 大五ビル1F
- 営業時間
- 09:30~19:30
- 定休日
- なし(年末年始・GW・夏季)
- 営業エリア
- 西区・浪速区・港区・此花区・中央区・大正区
- 取引態様
- 賃貸仲介業・物件売買業・FC店











