千里山西の完工年月(1989年3月)築の賃貸マンション ***号室(3階/2LDK)の賃貸物件(賃貸マンション)
大阪府吹田市にある千里山西の完工年月(1989年3月)築の賃貸マンション ***号室は独立洗面台、シューズボックス、2階以上、防犯カメラ、バイク置き場などが特徴です。最寄り駅の北大阪急行南北線緑地公園駅から徒歩10分です。千里山西の完工年月(1989年3月)築の賃貸マンション ***号室の詳細はクラスモ FCJR吹田駅前店までお気軽にお問い合わせください!
情報更新日:
次回更新予定日:
※次回更新予定日について:お店側では順次空室確認を行っていますが、次回更新予定日までに空室確認が行えない場合には、この物件情報は自動的に削除されます。
千里山西の完工年月(1989年3月)築の賃貸マンション ***号室の賃貸物件部屋概要
家賃 |
12万円
初期費用を |
|---|---|
共益費 |
10,000円
入居可能時期 |
敷金/礼金 |
120,000円 / 250,000円 |
保証金/ |
- / - |
最寄駅 |
|
所在地 |
大阪府吹田市千里山西 |
部屋番号 |
***号室 |
間取り |
2LDK(LDK16・洋5.6・和6) |
専有面積 |
65.34㎡ |
築年数 |
1989年3月(築37年) |
階数 |
3階部分(地上18階建) |
方位・位置 |
北西 / その他 |
物件種別 |
賃貸マンション |
構造 |
RC |
駐車場 |
19,800円 |
小学校学区 |
千里第三小学校 |
中学校学区 |
第一中学校 |
他の空き部屋 |
ー |
- 学区データについて
- ※学区データは必ずしも正確とは限りません。詳細に関しては最寄店舗または各自治体の教育委員会に必ずご確認ください。
千里山西の完工年月(1989年3月)築の賃貸マンション ***号室の特徴
セキュリティ
この物件の建物には、防犯カメラや宅配ボックスが設置されております。
室内設備
女性に嬉しい設備の独立した洗面化粧台があります。
居室状況
居室には、和室の居室もあり、子育てやリラックススペースとしての利用もできます。 収納スペースとして、玄関にはシューズボックスがあります。
建物設備共用部分
居室外の専有スペースとして、洗濯物を干すなどの用途として利用できるバルコニーがあります。 建物の共用スペースに、いざという時の防犯カメラや、急な外出や不在がちのご家庭の荷物受け取りに便利な宅配ボックスが設置されています。 駐輪場、バイク置き場が利用できます。
周辺施設
この物件の学区は、千里第三小学校区・第一中学校区です。近くには、徒歩5分(354m)でドラッグストアが、徒歩9分(714m)で銀行があります。
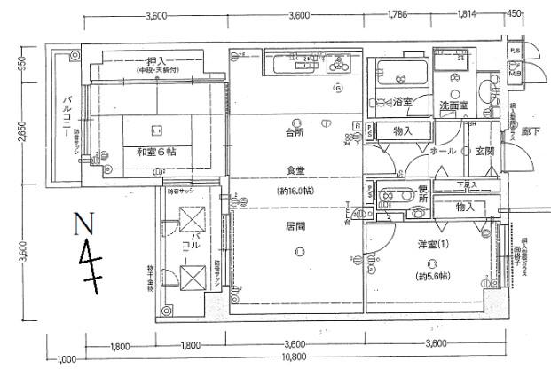
千里山西の完工年月(1989年3月)築の賃貸マンション ***号室の間取り
間取り:2LDK
間取詳細:2LDK(LDK16・洋5.6・和6)
専有面積:65.34㎡
方位:北西
部屋位置:その他
千里山西の完工年月(1989年3月)築の賃貸マンション ***号室の設備
バス・トイレ
独立洗面台
玄関
宅配ボックス
収納
シューズボックス
バルコニー
バルコニー
室内設備
和室あり
位置・立地
2階以上
インフラ
都市ガス
建物設備
防犯カメラ
駐輪場
バイク置き場
入居条件
即入居可
ライフステージ
一人暮らしに人気の設備
カップルに人気の設備
家族に人気の設備
夫婦に人気の設備
三世代で人気の設備
千里山西の完工年月(1989年3月)築の賃貸マンション ***号室の賃貸契約情報
毎月支払う |
家賃12万円/月共益費10,000円/月 |
|---|---|
初期費用 |
敷金120,000円礼金250,000円保証金-敷引き償却金- |
更新料 |
- |
鍵交換費用 |
22,000円 |
室内清掃費用 |
- |
駐車場料金 |
19,800円 |
損保・ |
借家賠付きの火災保険にご加入いただきます。 |
保証会社 |
加入要 保証会社:全保連 保証会社利用料:初回保証料 賃料等合計額の50%、年間保証料1万円 |
契約期間 |
2年 |
入居可能日 |
即入居可 |
フリーレント期間 |
- |
取引形態 |
仲介 |
備考 |
お部屋探しはクラスモJR吹田駅前店で |
千里山西の完工年月(1989年3月)築の賃貸マンション ***号室の建物情報
建物名称 |
千里山西の完工年月(1989年3月)築の賃貸マンション |
|---|---|
最寄駅 |
|
所在地 |
大阪府吹田市千里山西 |
階層 |
3階部分(地上18階建) |
構造 |
RC |
築年数 |
1989年3月(築37年) |
駐車場 |
19,800円 |
小学校学区 |
千里第三小学校 |
中学校学区 |
第一中学校 |
- 学区データについて
- ※学区データは必ずしも正確とは限りません。詳細に関しては最寄店舗または各自治体の教育委員会に必ずご確認ください。
無料この物件に問い合わせ
- 千里山西の完工年月(1989年3月)築の賃貸マンション ***号室

-
12万円
(共益費
10,000円)
- 敷
- 120,000円
- 礼
- 250,000円
- 保
- -
- 償
- -
千里山西の完工年月(1989年3月)築の賃貸マンション ***号室の物件のお問い合わせ先・取り扱い店舗
クラスモ FCJR吹田駅前店
- アクセス
-
東海道本線(JR西日本)「吹田駅」徒歩2分
阪急千里線「吹田駅」徒歩13分
阪急千里線「豊津駅」徒歩23分
- 住所
- 〒564-0027 大阪府吹田市朝日町2番 さんくす2番館138号室
- 営業時間
- 10:00~19:00
- 定休日
- 水曜日
- 営業エリア
- 吹田市・摂津市・茨木市 ・東淀川区・淀川区・西淀川区・北区・福島区・中央区
- 取引態様
- 賃貸仲介業・物件売買業・FC店


















