アーバネックス堺筋本町 ***号室(3階/1SLDK)の賃貸物件(賃貸マンション)
大阪府大阪市中央区にあるアーバネックス堺筋本町 ***号室はガスコンロ、独立洗面台、全居室収納、南向き、ペット可・相談などが特徴です。最寄り駅の大阪メトロ 中央線堺筋本町駅から徒歩3分です。アーバネックス堺筋本町 ***号室の詳細はハウスコム FC森ノ宮駅前店までお気軽にお問い合わせください!
情報更新日:
次回更新予定日:
※次回更新予定日について:お店側では順次空室確認を行っていますが、次回更新予定日までに空室確認が行えない場合には、この物件情報は自動的に削除されます。
アーバネックス堺筋本町 ***号室の賃貸物件部屋概要
家賃 |
17.3万円
初期費用を |
|---|---|
共益費 |
13,000円
入居可能時期 |
敷金/礼金 |
- / 1ヶ月 |
保証金/ |
- / - |
最寄駅 |
|
所在地 |
大阪府大阪市中央区南本町 |
部屋番号 |
***号室 |
間取り |
1SLDK(LDK10.6・洋3.9) |
専有面積 |
43.99㎡ |
築年数 |
2025年12月 |
階数 |
3階部分(地上15階建) |
方位・位置 |
南 / 角部屋 |
物件種別 |
賃貸マンション |
構造 |
RC |
駐車場 |
近隣 25,000円 |
小学校学区 |
開平小学校 |
中学校学区 |
東中学校 |
他の空き部屋 |
***号室 1003号室 1004号室 ***号室 1103号室 1104号室 ***号室 1401号室 ***号室 ***号室 1402号室 ***号室 1403号室 1404号室 ***号室 201号室 ***号室 ***号室 202号室 301号室 ***号室 302号室 ***号室 403号室 404号室 ***号室 ***号室 503号室 504号室 ***号室 801号室 ***号室 ***号室 802号室 901号室 ***号室 902号室 ***号室 |
- 学区データについて
- ※学区データは必ずしも正確とは限りません。詳細に関しては最寄店舗または各自治体の教育委員会に必ずご確認ください。
アーバネックス堺筋本町 ***号室の特徴
-
一人暮らしに人気の設備

-
カップルに人気の設備

-
家族に人気の設備

-
夫婦に人気の設備

-
三世代で人気の設備

-
セキュリティ対策重視

-
雨の日でも洗濯したい

-
苦手な冬を暖かく過ごしたい

-
洋室で暮らしたい

-
持ち物をスッキリ隠す収納部屋

-
靴やスニーカーが好き

契約条件
この物件は、2人入居もご契約できます。 ペットの飼育もご相談ください。 敷金が無料なため、初期費用が比較的安くなる傾向にあります。 お支払いは、初期費用がクレジットカードにて決済できます。
セキュリティ
この物件の建物には、オートロックや防犯カメラが設置されており、来客時には居室内のテレビモニターにて訪問者の顔を確認することができます。
室内設備
システムキッチンには、2つ以上のガスコンロが備え付けられています。 お風呂とトイレは別です。お風呂には、浴室内にミストサウナ機能が備わっています。 トイレは、温水洗浄便座機能付きになります。 女性に嬉しい設備のシャワーの付いている洗面化粧台があります。 洗濯に便利な設備として、室内洗濯機置場があります。浴室乾燥機も設置されているので、梅雨時の生乾き臭も比較的防ぐことができます。
居室状況
お部屋の床は、全居室フローリングとなっており、エアコンと一部床下暖房が設置されています。 照明器具が備え付けられており、インターネットも無料で入居後すぐ生活が始められます。 収納スペースとして、基本的な居室にクローゼットを設置、玄関にはシューズインクローゼットがあります。
建物設備共用部分
居室外の専有スペースとして、洗濯物を干すなどの用途として利用できるバルコニーがあります。 建物の共用スペースに、日々の出入に便利なエレベーターや、いざという時の防犯カメラが設置されています。 駐輪場、バイク置き場が利用できます。
周辺施設
この物件の学区は、開平小学校区・東中学校区です。近くには、徒歩2分(115m)でドラッグストアが、徒歩4分(287m)で銀行があります。
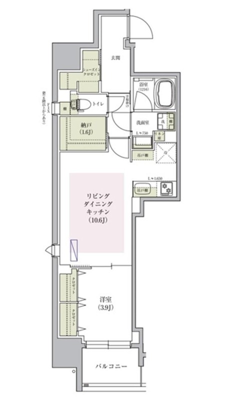
アーバネックス堺筋本町 ***号室の間取り
間取り:1SLDK
間取詳細:1SLDK(LDK10.6・洋3.9)
専有面積:43.99㎡
方位:南
部屋位置:角部屋
アーバネックス堺筋本町 ***号室の設備
キッチン
システムキッチン
ガスコンロ
ガスコンロ二口以上
バス・トイレ
バス・トイレ別
ミストサウナ
浴室乾燥機
温水洗浄便座
独立洗面台
シャワー付洗面化粧台
玄関
TVモニタ付インターホン
オートロック
収納
クローゼット
シューズインクローゼット
全居室収納
バルコニー
バルコニー
室内設備
エアコン
フローリング
全居室フローリング
床下暖房
室内洗濯機置場
照明器具付
位置・立地
2階以上
角部屋
南向き
インフラ
インターネット可
CATV
プロパンガス
建物設備
エレベーター
防犯カメラ
24時間換気システム
駐輪場
バイク置き場
入居条件
ペット可・相談
2人入居可
オンライン内見可
即入居可
ライフステージ
一人暮らしに人気の設備
カップルに人気の設備
家族に人気の設備
夫婦に人気の設備
三世代で人気の設備
こだわり
セキュリティ対策重視
雨の日でも洗濯したい
苦手な冬を暖かく過ごしたい
洋室で暮らしたい
持ち物をスッキリ隠す収納部屋
趣味
靴やスニーカーが好き
お得な条件
インターネット無料
初期費用カード決済可
アーバネックス堺筋本町 ***号室の賃貸契約情報
毎月支払う |
家賃17.3万円/月共益費13,000円/月 |
|---|---|
初期費用 |
敷金-礼金1ヶ月 (17.3万円)保証金-敷引き償却金- |
更新料 |
30,000円 |
鍵交換費用 |
27,500円 |
室内清掃費用 |
55,000円 |
水道料 |
2,750円 |
2人入居時水道代 |
4,400円 |
駐車場料金 |
近隣 25,000円 |
損保・ |
借家賠付きの火災保険にご加入いただきます。 |
保証会社 |
加入要 保証会社:(株)エポスカード 保証会社利用料:初回契約時:50%、月額:1% |
契約期間 |
2年 |
入居可能日 |
即入居可 |
フリーレント期間 |
- |
取引形態 |
仲介 |
備考 |
インターネット掲載物件に関わらず、大阪市内全域のお部屋探しが可能となっております!複数の業者にお問い合わせすることなく弊社にて正確な最新の空室状況をご確認させていただきます♪初期費用分割決算も可能となっており、ご都合に合わせて支払い回数も選べます!現地で待ち合わせ、営業時間外のご案内、保証人なし、法人契約、初期費用等その他何でもご相談下さい!インターネットに掲載していない非公開物件ご用意してます! |
アーバネックス堺筋本町 ***号室の建物情報
建物名称 |
アーバネックス堺筋本町 |
|---|---|
最寄駅 |
|
所在地 |
大阪府大阪市中央区南本町 |
階層 |
3階部分(地上15階建) |
構造 |
RC |
築年数 |
2025年12月 |
駐車場 |
近隣 25,000円 |
小学校学区 |
開平小学校 |
中学校学区 |
東中学校 |
- 学区データについて
- ※学区データは必ずしも正確とは限りません。詳細に関しては最寄店舗または各自治体の教育委員会に必ずご確認ください。
無料この物件に問い合わせ
- アーバネックス堺筋本町 ***号室

-
17.3万円
(共益費
13,000円)
- 敷
- -
- 礼
- 1ヶ月
- 保
- -
- 償
- -
アーバネックス堺筋本町 ***号室の物件のお問い合わせ先・取り扱い店舗
ハウスコム FC森ノ宮駅前店
- アクセス
-
大阪環状線「森ノ宮駅」徒歩1分
大阪メトロ 中央線「森ノ宮駅」徒歩4分
大阪環状線「玉造駅」徒歩12分
- 住所
- 〒540-0003 大阪府大阪市中央区森ノ宮中央1丁目2‐21
- 営業時間
- 10:00~19:00
- 定休日
- なし(年末年始を除く)
- 営業エリア
- 大阪市全域 都島区・福島区・此花区・西区・港区・大正区・天王寺区・浪速区 ・西淀川区・東淀川区・東成区・生野区・旭区・城東区 ・阿倍野区・住吉区・東住吉区・西成区・淀川区 ・鶴見区・住之江区・平野区・北区・中央区
- 取引態様
- 賃貸仲介業・FC店





























