スタイルレジデンス渋谷笹塚 203号室(2階/1R)の賃貸物件(賃貸マンション)
東京都渋谷区にあるスタイルレジデンス渋谷笹塚 203号室はシステムキッチン、独立洗面台、シューズボックス、室内洗濯機置場、都市ガスなどが特徴です。最寄り駅の京王線幡ヶ谷駅から徒歩14分です。スタイルレジデンス渋谷笹塚 203号室の詳細はハウスコム 明大前店までお気軽にお問い合わせください!
情報更新日:
次回更新予定日:
※次回更新予定日について:お店側では順次空室確認を行っていますが、次回更新予定日までに空室確認が行えない場合には、この物件情報は自動的に削除されます。
スタイルレジデンス渋谷笹塚 203号室の賃貸物件部屋概要
家賃 |
9.1万円
初期費用を |
|---|---|
共益費 |
8,000円
入居可能時期 |
敷金/礼金 |
1ヶ月 / 1ヶ月 |
保証金/ |
- / - |
最寄駅 |
|
所在地 |
東京都渋谷区笹塚 |
部屋番号 |
203号室 |
間取り |
1R(洋8.3) |
専有面積 |
17.65㎡ |
築年数 |
2019年3月(築7年) |
階数 |
2階部分(地上4階建) |
方位・位置 |
ー / 角部屋 |
物件種別 |
賃貸マンション |
構造 |
RC |
駐車場 |
- |
小学校学区 |
中幡小学校 |
中学校学区 |
笹塚中学校 |
他の空き部屋 |
102号室 304号室 |
- 学区データについて
- ※学区データは必ずしも正確とは限りません。詳細に関しては最寄店舗または各自治体の教育委員会に必ずご確認ください。
スタイルレジデンス渋谷笹塚 203号室の特徴
-
一人暮らしに人気の設備

-
カップルに人気の設備

-
家族に人気の設備

-
夫婦に人気の設備

-
三世代で人気の設備

-
セキュリティ対策重視

-
外で子どもと遊びたい

-
雨の日でも洗濯したい

-
洋室で暮らしたい

-
ガーデニングが好き

セキュリティ
この物件の建物には、オートロックや防犯カメラや宅配ボックスが設置されており、来客時には居室内のテレビモニターにて訪問者の顔を確認することができます。
室内設備
システムキッチンには、IHコンロが備え付けられています。 トイレは、温水洗浄便座機能付きになります。 女性に嬉しい設備の独立した洗面化粧台があります。 洗濯に便利な設備として、室内洗濯機置場があります。浴室乾燥機も設置されているので、梅雨時の生乾き臭も比較的防ぐことができます。
居室状況
お部屋の床は、フローリングとなっており、エアコンが設置されています。 収納スペースとして、基本的な居室にクローゼットを設置、玄関にはシューズボックスがあります。
建物設備共用部分
居室外の専有スペースとして、洗濯物を干すなどの用途として利用できるバルコニーがあります。 建物の共用スペースに、いざという時の防犯カメラや、急な外出や不在がちのご家庭の荷物受け取りに便利な宅配ボックスが設置されています。
周辺施設
この物件の学区は、中幡小学校区・笹塚中学校区です。
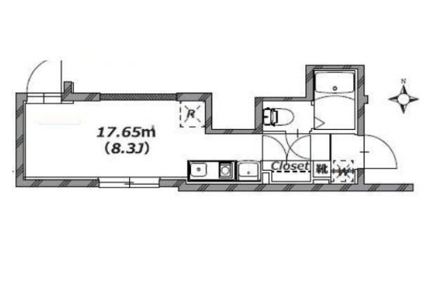
スタイルレジデンス渋谷笹塚 203号室の間取り
間取り:1R
間取詳細:1R(洋8.3)
専有面積:17.65㎡
方位:ー
部屋位置:角部屋
スタイルレジデンス渋谷笹塚 203号室の設備
キッチン
システムキッチン
IHコンロ
バス・トイレ
バス・トイレ別
浴室乾燥機
温水洗浄便座
独立洗面台
玄関
TVモニタ付インターホン
オートロック
宅配ボックス
収納
クローゼット
シューズボックス
バルコニー
バルコニー
ルーフバルコニー
室内設備
エアコン
フローリング
室内洗濯機置場
位置・立地
2階以上
角部屋
インフラ
CATV
都市ガス
建物設備
防犯カメラ
入居条件
オンライン相談可
オンライン内見可
ライフステージ
一人暮らしに人気の設備
カップルに人気の設備
家族に人気の設備
夫婦に人気の設備
三世代で人気の設備
こだわり
セキュリティ対策重視
外で子どもと遊びたい
雨の日でも洗濯したい
洋室で暮らしたい
趣味
ガーデニングが好き
スタイルレジデンス渋谷笹塚 203号室の賃貸契約情報
毎月支払う |
家賃9.1万円/月共益費8,000円/月 |
|---|---|
初期費用 |
敷金1ヶ月 (9.1万円)礼金1ヶ月 (9.1万円)保証金-敷引き償却金- |
更新料 |
91,000円 |
鍵交換費用 |
33,000円 |
室内清掃費用 |
- |
駐車場料金 |
- |
損保・ |
借家賠付きの火災保険にご加入いただきます。 |
保証会社 |
加入要 保証会社利用料:初回保証料:賃料合計の50%、1年毎に10,000円、口座振替手数料:330円/月 |
契約期間 |
2年 |
入居可能日 |
2026年01月下旬 |
フリーレント期間 |
- |
取引形態 |
一般媒介 |
備考 |
2年未満の解約の場合は賃料等1ヶ月相当額の短期解約違約金あり |
スタイルレジデンス渋谷笹塚 203号室の建物情報
建物名称 |
スタイルレジデンス渋谷笹塚 |
|---|---|
最寄駅 |
|
所在地 |
東京都渋谷区笹塚 |
階層 |
2階部分(地上4階建) |
構造 |
RC |
築年数 |
2019年3月(築7年) |
駐車場 |
- |
小学校学区 |
中幡小学校 |
中学校学区 |
笹塚中学校 |
- 学区データについて
- ※学区データは必ずしも正確とは限りません。詳細に関しては最寄店舗または各自治体の教育委員会に必ずご確認ください。
無料この物件に問い合わせ
- スタイルレジデンス渋谷笹塚 203号室

-
9.1万円
(共益費
8,000円)
- 敷
- 1ヶ月
- 礼
- 1ヶ月
- 保
- -
- 償
- -
スタイルレジデンス渋谷笹塚 203号室の物件のお問い合わせ先・取り扱い店舗
ハウスコム 明大前店
- アクセス
-
京王線「明大前駅」中央口徒歩1分
京王井の頭線「明大前駅」中央口徒歩1分
- 住所
- 〒156-0043 東京都世田谷区松原2丁目44−1 グランシーン明大前 1階
- 営業時間
- 10:00~18:00
- 定休日
- なし
- 営業エリア
- 世田谷区・杉並区・渋谷区・中野区・新宿区・三鷹市・調布市
- 取引態様
- 賃貸仲介業












