和田ハイツ 201号室(2階/1K)の賃貸物件(賃貸マンション)
東京都練馬区にある和田ハイツ 201号室はシステムキッチン、バス・トイレ別、角部屋、オンライン相談可、オンライン内見可などが特徴です。最寄り駅の西武池袋線・豊島線石神井公園駅から徒歩10分です。和田ハイツ 201号室の詳細はハウスコム 練馬店までお気軽にお問い合わせください!
情報更新日:
次回更新予定日:
※次回更新予定日について:お店側では順次空室確認を行っていますが、次回更新予定日までに空室確認が行えない場合には、この物件情報は自動的に削除されます。
和田ハイツ 201号室の賃貸物件部屋概要
家賃 |
6.3万円
初期費用を |
|---|---|
共益費 |
4,000円
入居可能時期 |
敷金/礼金 |
- / 1ヶ月 |
保証金/ |
- / - |
最寄駅 |
|
所在地 |
東京都練馬区石神井町 |
部屋番号 |
201号室 |
間取り |
1K(洋6・K2) |
専有面積 |
20.09㎡ |
築年数 |
1998年2月(築28年) |
階数 |
2階部分(地上3階建) |
方位・位置 |
南西 / 角部屋 |
物件種別 |
賃貸マンション |
構造 |
鉄骨造 |
駐車場 |
- |
小学校学区 |
光和小学校 |
中学校学区 |
三原台中学校 |
他の空き部屋 |
102号室 |
- 学区データについて
- ※学区データは必ずしも正確とは限りません。詳細に関しては最寄店舗または各自治体の教育委員会に必ずご確認ください。
和田ハイツ 201号室の特徴
契約条件
ご契約時に保証人は不要です。 敷金が無料なため、初期費用が比較的安くなる傾向にあります。
セキュリティ
来客時には居室内のテレビモニターにて訪問者の顔を確認することができます。
室内設備
システムキッチンが備え付けられています。 洗濯に便利な設備として、室内洗濯機置場があります。
居室状況
お部屋の床は、フローリングとなっており、エアコンが設置されています。 収納スペースとして、基本的な居室にクローゼットがあります。
建物設備共用部分
居室外の専有スペースとして、洗濯物を干すなどの用途として利用できるバルコニーがあります。
周辺施設
この物件の学区は、光和小学校区・三原台中学校区です。
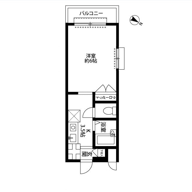
和田ハイツ 201号室の間取り
間取り:1K
間取詳細:1K(洋6・K2)
専有面積:20.09㎡
方位:南西
部屋位置:角部屋
和田ハイツ 201号室の設備
キッチン
システムキッチン
バス・トイレ
バス・トイレ別
玄関
TVモニタ付インターホン
収納
クローゼット
バルコニー
バルコニー
ルーフバルコニー
室内設備
エアコン
フローリング
室内洗濯機置場
位置・立地
2階以上
角部屋
インフラ
CATV
都市ガス
入居条件
オンライン相談可
オンライン内見可
保証人不要
ライフステージ
一人暮らしに人気の設備
カップルに人気の設備
家族に人気の設備
夫婦に人気の設備
三世代で人気の設備
こだわり
外で子どもと遊びたい
雨の日でも洗濯したい
洋室で暮らしたい
趣味
ガーデニングが好き
和田ハイツ 201号室の賃貸契約情報
毎月支払う |
家賃6.3万円/月共益費4,000円/月 |
|---|---|
初期費用 |
敷金-礼金1ヶ月 (6.3万円)保証金-敷引き償却金- |
更新料 |
63,000円 |
鍵交換費用 |
27,500円 |
室内清掃費用 |
63,800円 |
消毒代 |
26,400円 |
駐車場料金 |
- |
損保・ |
借家賠付きの火災保険にご加入いただきます。 |
保証会社 |
加入要 保証会社利用料:初回:80%、月額:550円 |
契約期間 |
2年 |
入居可能日 |
2026年03月中旬 |
フリーレント期間 |
- |
取引形態 |
一般媒介 |
備考 |
- |
和田ハイツ 201号室の建物情報
建物名称 |
和田ハイツ |
|---|---|
最寄駅 |
|
所在地 |
東京都練馬区石神井町 |
階層 |
2階部分(地上3階建) |
構造 |
鉄骨造 |
築年数 |
1998年2月(築28年) |
駐車場 |
- |
小学校学区 |
光和小学校 |
中学校学区 |
三原台中学校 |
- 学区データについて
- ※学区データは必ずしも正確とは限りません。詳細に関しては最寄店舗または各自治体の教育委員会に必ずご確認ください。
無料この物件に問い合わせ
- 和田ハイツ 201号室

-
6.3万円
(共益費
4,000円)
- 敷
- -
- 礼
- 1ヶ月
- 保
- -
- 償
- -
和田ハイツ 201号室の物件のお問い合わせ先・取り扱い店舗
ハウスコム 練馬店
- アクセス
-
西武池袋線・豊島線「練馬駅」南口徒歩1分
都営大江戸線「練馬駅」A2出口徒歩1分
- 住所
- 〒176-0001 東京都練馬区練馬1丁目2−9 K&Iビル 1階
- 営業時間
- 10:00~18:00
- 定休日
- なし(年末年始休業(12月25日~1月3日))
- 営業エリア
- 練馬区、中野区、杉並区、板橋区、豊島区、西東京市、和光市、朝霞市、新座市お探しとあればどこでもお探し致します。
- 取引態様
- 賃貸仲介業


























