プレミスト板橋 502号室(5階/1LDK)の賃貸物件(賃貸マンション)
東京都板橋区にあるプレミスト板橋 502号室はガスコンロ、宅配ボックス、エアコン、フローリング、CSなどが特徴です。最寄り駅の都営三田線板橋区役所前駅から徒歩5分です。プレミスト板橋 502号室の詳細はハウスコム 池袋西口店までお気軽にお問い合わせください!
情報更新日:
次回更新予定日:
※次回更新予定日について:お店側では順次空室確認を行っていますが、次回更新予定日までに空室確認が行えない場合には、この物件情報は自動的に削除されます。
プレミスト板橋 502号室の賃貸物件部屋概要
家賃 |
14.5万円
初期費用を |
|---|---|
共益費 |
12,000円
入居可能時期 |
敷金/礼金 |
1ヶ月 / - |
保証金/ |
- / - |
最寄駅 |
|
所在地 |
東京都板橋区板橋 |
部屋番号 |
502号室 |
間取り |
1LDK(LDK8・洋4.1) |
専有面積 |
31.80㎡ |
築年数 |
2021年3月(築5年) |
階数 |
5階部分(地上14階建) |
方位・位置 |
北西 / その他 |
物件種別 |
賃貸マンション |
構造 |
RC |
駐車場 |
無 |
小学校学区 |
板橋第四小学校 |
中学校学区 |
板橋第五中学校 |
他の空き部屋 |
1005号室 1006号室 1405号室 ***号室 902号室 |
- 学区データについて
- ※学区データは必ずしも正確とは限りません。詳細に関しては最寄店舗または各自治体の教育委員会に必ずご確認ください。
プレミスト板橋 502号室の特徴
-
一人暮らしに人気の設備

-
カップルに人気の設備

-
家族に人気の設備

-
夫婦に人気の設備

-
三世代で人気の設備

-
セキュリティ対策重視

-
タイパ重視

-
外で子どもと遊びたい

-
雨の日でも洗濯したい

-
洋室で暮らしたい

-
服やおしゃれが好き

-
推し活グッズを飾りたい

-
ガーデニングが好き

契約条件
この物件は、2人入居もご契約できます。 ペットの飼育もご相談ください。 また、ご契約時に保証人は不要です。 礼金が無料なため、初期費用が比較的安くなる傾向にあります。
セキュリティ
この物件の建物には、オートロックや防犯カメラや宅配ボックスが設置されており、来客時には居室内のテレビモニターにて訪問者の顔を確認することができます。
室内設備
システムキッチンには、2つ以上のガスコンロが備え付けられています。 お風呂とトイレは別です。お風呂には、追い焚き機能が備わっています。 トイレは、温水洗浄便座機能付きになります。 女性に嬉しい設備の独立した洗面化粧台があります。 洗濯に便利な設備として、室内洗濯機置場があります。浴室乾燥機も設置されているので、梅雨時の生乾き臭も比較的防ぐことができます。
居室状況
お部屋の床は、フローリングとなっており、エアコンが設置されています。 収納スペースとして、基本的な居室にクローゼットを設置、通常よりも収納力の高いウォークインクローゼット、玄関にはシューズボックスがあります。
建物設備共用部分
居室外の専有スペースとして、洗濯物を干すなどの用途として利用できるバルコニーがあります。 建物の共用スペースに、日々の出入に便利なエレベーターや、いざという時の防犯カメラや、急な外出や不在がちのご家庭の荷物受け取りに便利な宅配ボックスや、居室内を常に清潔に保てる24時間利用可能なゴミ捨て置き場が設置されています。 駐輪場、バイク置き場が利用できます。
周辺施設
この物件の学区は、板橋第四小学校区・板橋第五中学校区です。
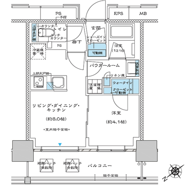
プレミスト板橋 502号室の間取り
間取り:1LDK
間取詳細:1LDK(LDK8・洋4.1)
専有面積:31.80㎡
方位:北西
部屋位置:その他
プレミスト板橋 502号室の設備
キッチン
システムキッチン
カウンターキッチン
ガスコンロ
ガスコンロ二口以上
バス・トイレ
バス・トイレ別
追い焚き
浴室乾燥機
温水洗浄便座
独立洗面台
玄関
TVモニタ付インターホン
オートロック
宅配ボックス
収納
クローゼット
ウォークインクローゼット
シューズボックス
バルコニー
バルコニー
ルーフバルコニー
室内設備
エアコン
フローリング
室内洗濯機置場
位置・立地
2階以上
インフラ
インターネット可
CATV
BS
CS
都市ガス
建物設備
エレベーター
防犯カメラ
24時間ゴミ出しOK
駐輪場
バイク置き場
入居条件
ペット可・相談
2人入居可
オンライン相談可
オンライン内見可
保証人不要
ライフステージ
一人暮らしに人気の設備
カップルに人気の設備
家族に人気の設備
夫婦に人気の設備
三世代で人気の設備
こだわり
セキュリティ対策重視
タイパ重視
外で子どもと遊びたい
雨の日でも洗濯したい
洋室で暮らしたい
趣味
服やおしゃれが好き
推し活グッズを飾りたい
ガーデニングが好き
プレミスト板橋 502号室の賃貸契約情報
毎月支払う |
家賃14.5万円/月共益費12,000円/月 |
|---|---|
初期費用 |
敷金1ヶ月 (14.5万円)礼金-保証金-敷引き償却金- |
更新料 |
145,000円 |
鍵交換費用 |
22,000円 |
室内清掃費用 |
- |
駐車場料金 |
無 |
損保・ |
借家賠付きの火災保険にご加入いただきます。 |
保証会社 |
加入要 保証会社利用料:初回保証料:総賃料の50%、1年ごとに1万円 |
契約期間 |
2年 |
入居可能日 |
2026年01月下旬 |
フリーレント期間 |
- |
取引形態 |
一般媒介 |
備考 |
火災保険加入要 |
プレミスト板橋 502号室の建物情報
建物名称 |
プレミスト板橋 |
|---|---|
最寄駅 |
|
所在地 |
東京都板橋区板橋 |
階層 |
5階部分(地上14階建) |
構造 |
RC |
築年数 |
2021年3月(築5年) |
駐車場 |
無 |
小学校学区 |
板橋第四小学校 |
中学校学区 |
板橋第五中学校 |
- 学区データについて
- ※学区データは必ずしも正確とは限りません。詳細に関しては最寄店舗または各自治体の教育委員会に必ずご確認ください。
無料この物件に問い合わせ
- プレミスト板橋 502号室

-
14.5万円
(共益費
12,000円)
- 敷
- 1ヶ月
- 礼
- -
- 保
- -
- 償
- -
プレミスト板橋 502号室の物件のお問い合わせ先・取り扱い店舗
ハウスコム 池袋西口店
- アクセス
-
山手線「池袋駅」西口徒歩1分
東京メトロ 丸ノ内線「池袋駅」D11出口徒歩1分
- 住所
- 〒171-0021 東京都豊島区西池袋1丁目19−6 松長ビル 2階
- 営業時間
- 10:00~18:00
- 定休日
- なし
- 営業エリア
- 豊島区 板橋区 新宿区 練馬区 文京区
- 取引態様
- 賃貸仲介業















