ザ・パークハビオ早稲田 201号室(2階/1LDK)の賃貸物件(賃貸マンション)
東京都新宿区にあるザ・パークハビオ早稲田 201号室はバス・トイレ別、独立洗面台、宅配ボックス、エレベーター、楽器可・相談などが特徴です。最寄り駅の東京メトロ 東西線早稲田駅から徒歩2分です。ザ・パークハビオ早稲田 201号室の詳細はハウスコム 新宿店までお気軽にお問い合わせください!
情報更新日:
次回更新予定日:
※次回更新予定日について:お店側では順次空室確認を行っていますが、次回更新予定日までに空室確認が行えない場合には、この物件情報は自動的に削除されます。
ザ・パークハビオ早稲田 201号室の賃貸物件部屋概要
家賃 |
21.3万円
初期費用を |
|---|---|
共益費 |
18,000円
入居可能時期 |
敷金/礼金 |
213,000円 / 213,000円 |
保証金/ |
- / - |
最寄駅 |
|
所在地 |
東京都新宿区早稲田町 |
部屋番号 |
201号室 |
間取り |
1LDK(洋5.5・LDK10.1) |
専有面積 |
40.37㎡ |
築年数 |
2018年3月(築8年) |
階数 |
2階部分(地上9階建) |
方位・位置 |
南西 / 角部屋 |
物件種別 |
賃貸マンション |
構造 |
RC |
駐車場 |
無 |
小学校学区 |
早稲田小学校 |
中学校学区 |
牛込第二中学校 |
他の空き部屋 |
413号室 413号室 804号室 |
- 学区データについて
- ※学区データは必ずしも正確とは限りません。詳細に関しては最寄店舗または各自治体の教育委員会に必ずご確認ください。
ザ・パークハビオ早稲田 201号室の特徴
-
一人暮らしに人気の設備

-
カップルに人気の設備

-
家族に人気の設備

-
夫婦に人気の設備

-
三世代で人気の設備

-
セキュリティ対策重視

-
外で子どもと遊びたい

-
雨の日でも洗濯したい

-
洋室で暮らしたい

-
服やおしゃれが好き

-
靴やスニーカーが好き

-
ガーデニングが好き

契約条件
この物件は、2人入居もご契約できます。 ペットの飼育や楽器演奏もご相談ください。 更新料が無料なので、長年お得に住み続けることができます。
セキュリティ
この物件の建物には、オートロックや防犯カメラや宅配ボックスが設置されており、来客時には居室内のテレビモニターにて訪問者の顔を確認することができます。
室内設備
システムキッチンには、ガスコンロが備え付けられています。 お風呂とトイレは別です。お風呂には、追い焚き機能が備わっています。 トイレは、温水洗浄便座機能付きになります。 女性に嬉しい設備の独立した洗面化粧台があります。 洗濯に便利な設備として、室内洗濯機置場があります。浴室乾燥機も設置されているので、梅雨時の生乾き臭も比較的防ぐことができます。
居室状況
お部屋の床は、フローリングとなっており、エアコンが設置されています。 照明器具が備え付けられており、入居後すぐ生活が始められます。 収納スペースとして、基本的な居室にクローゼットを設置、通常よりも収納力の高いウォークインクローゼット、玄関にはシューズインクローゼットがあります。
建物設備共用部分
居室外の専有スペースとして、洗濯物を干すなどの用途として利用できるバルコニーがあります。 建物の共用スペースに、日々の出入に便利なエレベーターや、いざという時の防犯カメラや、急な外出や不在がちのご家庭の荷物受け取りに便利な宅配ボックスが設置されています。
周辺施設
この物件の学区は、早稲田小学校区・牛込第二中学校区です。
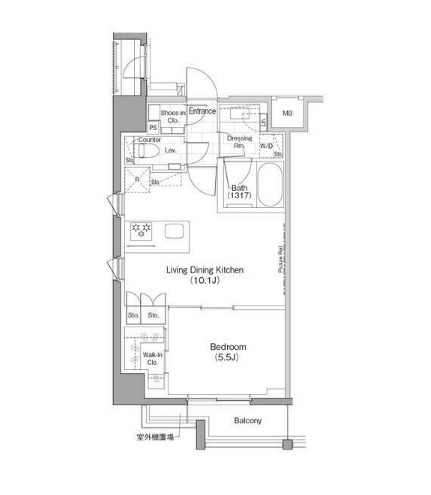
ザ・パークハビオ早稲田 201号室の間取り
間取り:1LDK
間取詳細:1LDK(洋5.5・LDK10.1)
専有面積:40.37㎡
方位:南西
部屋位置:角部屋
ザ・パークハビオ早稲田 201号室の設備
キッチン
システムキッチン
ガスコンロ
バス・トイレ
バス・トイレ別
追い焚き
浴室乾燥機
温水洗浄便座
独立洗面台
玄関
TVモニタ付インターホン
オートロック
宅配ボックス
収納
クローゼット
ウォークインクローゼット
シューズインクローゼット
シューズボックス
バルコニー
バルコニー
ルーフバルコニー
室内設備
エアコン
フローリング
室内洗濯機置場
照明器具付
位置・立地
2階以上
角部屋
インフラ
インターネット可
CATV
都市ガス
建物設備
エレベーター
防犯カメラ
入居条件
ペット可・相談
楽器可・相談
2人入居可
オンライン相談可
オンライン内見可
ライフステージ
一人暮らしに人気の設備
カップルに人気の設備
家族に人気の設備
夫婦に人気の設備
三世代で人気の設備
こだわり
セキュリティ対策重視
外で子どもと遊びたい
雨の日でも洗濯したい
洋室で暮らしたい
趣味
服やおしゃれが好き
靴やスニーカーが好き
ガーデニングが好き
お得な条件
更新料無料
ザ・パークハビオ早稲田 201号室の賃貸契約情報
毎月支払う |
家賃21.3万円/月共益費18,000円/月 |
|---|---|
初期費用 |
敷金213,000円礼金213,000円保証金-敷引き償却金- |
更新料 |
- |
鍵交換費用 |
- |
室内清掃費用 |
- |
駐車場料金 |
無 |
損保・ |
借家賠付きの火災保険にご加入いただきます。 |
保証会社 |
加入要 保証会社利用料:加入要 SBIギャランティ 初年度保証料:賃料等合計額の40%(最低保証料2万円)2年目以降:1年毎8千円 |
契約期間 |
- |
入居可能日 |
2025年12月中旬 |
フリーレント期間 |
- |
取引形態 |
一般媒介 |
備考 |
SOHO使用・ペット飼育時敷金1か月積増 保証会社未使用時敷金2か月 鍵交換必須/退去時:室内清掃・エアコン洗浄費借主負担 [鍵交換代必須]33000円 駆付けサポート24(有料) |
ザ・パークハビオ早稲田 201号室の建物情報
建物名称 |
ザ・パークハビオ早稲田 |
|---|---|
最寄駅 |
|
所在地 |
東京都新宿区早稲田町 |
階層 |
2階部分(地上9階建) |
構造 |
RC |
築年数 |
2018年3月(築8年) |
駐車場 |
無 |
小学校学区 |
早稲田小学校 |
中学校学区 |
牛込第二中学校 |
- 学区データについて
- ※学区データは必ずしも正確とは限りません。詳細に関しては最寄店舗または各自治体の教育委員会に必ずご確認ください。
無料この物件に問い合わせ
- ザ・パークハビオ早稲田 201号室

-
21.3万円
(共益費
18,000円)
- 敷
- 213,000円
- 礼
- 213,000円
- 保
- -
- 償
- -
ザ・パークハビオ早稲田 201号室の物件のお問い合わせ先・取り扱い店舗
ハウスコム 新宿店
- アクセス
-
山手線「新宿駅」徒歩1分
- 住所
- 〒160-0022 東京都新宿区新宿3-36-2 新宿キリンビル3階
- 営業時間
- 10:00~18:00
- 定休日
- 水曜日(12月25日~1月3日まで年末年始休業)
- 営業エリア
- 主に新宿区・渋谷区(その他の地域もご紹介可能です)
- 取引態様
- 賃貸仲介業










