清和園町の完工年月(2025年11月)築の賃貸アパート ***号室(2階/1LDK)の賃貸物件(賃貸アパート)
大阪府吹田市にある清和園町の完工年月(2025年11月)築の賃貸アパート ***号室はシステムキッチン、温水洗浄便座、ウォークインクローゼット、2階以上、防犯カメラなどが特徴です。最寄り駅の阪急千里線吹田駅から徒歩13分です。清和園町の完工年月(2025年11月)築の賃貸アパート ***号室の詳細はクラスモ FCJR吹田駅前店までお気軽にお問い合わせください!
情報更新日:
次回更新予定日:
※次回更新予定日について:お店側では順次空室確認を行っていますが、次回更新予定日までに空室確認が行えない場合には、この物件情報は自動的に削除されます。
清和園町の完工年月(2025年11月)築の賃貸アパート ***号室の賃貸物件部屋概要
家賃 |
7.7万円
初期費用を |
|---|---|
共益費 |
4,000円
入居可能時期 |
敷金/礼金 |
- / 1ヶ月 |
保証金/ |
- / - |
最寄駅 |
|
所在地 |
大阪府吹田市清和園町 |
部屋番号 |
***号室 |
間取り |
1LDK(LDK8・洋3.7) |
専有面積 |
30.95㎡ |
築年数 |
新築 |
階数 |
2階部分(地上3階建) |
方位・位置 |
北 / 角部屋 |
物件種別 |
賃貸アパート |
構造 |
木造 |
駐車場 |
- |
小学校学区 |
吹田第六小学校 |
中学校学区 |
第三中学校 |
他の空き部屋 |
***号室 ***号室 ***号室 ***号室 ***号室 ***号室 |
- 学区データについて
- ※学区データは必ずしも正確とは限りません。詳細に関しては最寄店舗または各自治体の教育委員会に必ずご確認ください。
清和園町の完工年月(2025年11月)築の賃貸アパート ***号室の特徴
-
一人暮らしに人気の設備

-
カップルに人気の設備

-
家族に人気の設備

-
夫婦に人気の設備

-
三世代で人気の設備

-
セキュリティ対策重視

-
雨の日でも洗濯したい

-
室内で洗濯物を乾かしたい

-
洋室で暮らしたい

-
服やおしゃれが好き

契約条件
敷金が無料なため、初期費用が比較的安くなる傾向にあります。
セキュリティ
この物件の建物には、オートロックや防犯カメラや宅配ボックスが設置されており、来客時には居室内のテレビモニターにて訪問者の顔を確認することができます。
室内設備
システムキッチンが備え付けられています。 お風呂とトイレは別です。お風呂には、追い焚き機能が備わっています。 トイレは、温水洗浄便座機能付きになります。 女性に嬉しい設備の独立した洗面化粧台があります。 洗濯に便利な設備として、室内洗濯機置場があり、室内物干機で室内干しがしやすい環境になります。浴室乾燥機も設置されているので、梅雨時の生乾き臭も比較的防ぐことができます。
居室状況
お部屋の床は、フローリングとなっており、エアコンが設置されています。 収納スペースとして、通常よりも収納力の高いウォークインクローゼット、玄関にはシューズボックスがあります。
建物設備共用部分
居室外の専有スペースとして、洗濯物を干すなどの用途として利用できるバルコニーがあります。 建物の共用スペースに、いざという時の防犯カメラや、急な外出や不在がちのご家庭の荷物受け取りに便利な宅配ボックスが設置されています。
周辺施設
この物件の学区は、吹田第六小学校区・第三中学校区です。近くには、徒歩17分(1322m)でドラッグストアが、徒歩5分(363m)で銀行があります。
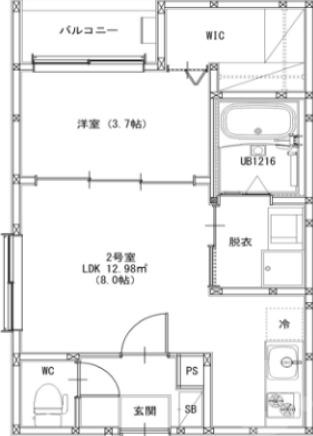
清和園町の完工年月(2025年11月)築の賃貸アパート ***号室の間取り
間取り:1LDK
間取詳細:1LDK(LDK8・洋3.7)
専有面積:30.95㎡
方位:北
部屋位置:角部屋
清和園町の完工年月(2025年11月)築の賃貸アパート ***号室の設備
キッチン
システムキッチン
バス・トイレ
バス・トイレ別
追い焚き
浴室乾燥機
温水洗浄便座
独立洗面台
玄関
TVモニタ付インターホン
オートロック
宅配ボックス
収納
ウォークインクローゼット
シューズボックス
バルコニー
バルコニー
室内設備
エアコン
フローリング
室内洗濯機置場
室内物干機
位置・立地
2階以上
角部屋
建物設備
防犯カメラ
ライフステージ
一人暮らしに人気の設備
カップルに人気の設備
家族に人気の設備
夫婦に人気の設備
三世代で人気の設備
こだわり
セキュリティ対策重視
雨の日でも洗濯したい
室内で洗濯物を乾かしたい
洋室で暮らしたい
趣味
服やおしゃれが好き
清和園町の完工年月(2025年11月)築の賃貸アパート ***号室の賃貸契約情報
毎月支払う |
家賃7.7万円/月共益費4,000円/月 |
|---|---|
初期費用 |
敷金-礼金1ヶ月 (7.7万円)保証金-敷引き償却金- |
更新料 |
0.5ヶ月 |
鍵交換費用 |
- |
室内清掃費用 |
49,500円 |
町内会費 |
300円 |
エアコン分解清掃 |
16,500円 |
IOT設定費用 |
11,000円 |
駐車場料金 |
- |
損保・ |
借家賠付きの火災保険にご加入いただきます。 |
保証会社 |
加入要 保証会社:シノケンコミュニケーションズ 保証会社利用料:【初回保証料】連帯保証人有の場合:30,000円、連帯保証人無の場合:50,000円 年間保証料12,000円(滞納回数3回以上の場合30,000円) |
契約期間 |
2年 |
入居可能日 |
2025年12月上旬 |
フリーレント期間 |
- |
取引形態 |
仲介 |
備考 |
お部屋探しはクラスモJR吹田駅前店で |
清和園町の完工年月(2025年11月)築の賃貸アパート ***号室の建物情報
建物名称 |
清和園町の完工年月(2025年11月)築の賃貸アパート |
|---|---|
最寄駅 |
|
所在地 |
大阪府吹田市清和園町 |
階層 |
2階部分(地上3階建) |
構造 |
木造 |
築年数 |
新築 |
駐車場 |
- |
小学校学区 |
吹田第六小学校 |
中学校学区 |
第三中学校 |
- 学区データについて
- ※学区データは必ずしも正確とは限りません。詳細に関しては最寄店舗または各自治体の教育委員会に必ずご確認ください。
無料この物件に問い合わせ
- 清和園町の完工年月(2025年11月)築の賃貸アパート ***号室

-
7.7万円
(共益費
4,000円)
- 敷
- -
- 礼
- 1ヶ月
- 保
- -
- 償
- -
清和園町の完工年月(2025年11月)築の賃貸アパート ***号室の物件のお問い合わせ先・取り扱い店舗
クラスモ FCJR吹田駅前店
- アクセス
-
東海道本線(JR西日本)「吹田駅」徒歩2分
阪急千里線「吹田駅」徒歩13分
阪急千里線「豊津駅」徒歩23分
- 住所
- 〒564-0027 大阪府吹田市朝日町2番 さんくす2番館138号室
- 営業時間
- 10:00~19:00
- 定休日
- 水曜日
- 営業エリア
- 吹田市・摂津市・茨木市 ・東淀川区・淀川区・西淀川区・北区・福島区・中央区
- 取引態様
- 賃貸仲介業・物件売買業・FC店














