片山町の完工年月(1988年8月)築の賃貸一戸建て ***号室(3階/3LDK)の賃貸物件(賃貸一戸建て)
大阪府吹田市にある片山町の完工年月(1988年8月)築の賃貸一戸建て ***号室はシステムキッチン、独立洗面台、シャワー付洗面化粧台、フローリング、最上階などが特徴です。最寄り駅の東海道本線(JR西日本)吹田駅から徒歩10分です。片山町の完工年月(1988年8月)築の賃貸一戸建て ***号室の詳細はクラスモ FCJR吹田駅前店までお気軽にお問い合わせください!
情報更新日:
次回更新予定日:
※次回更新予定日について:お店側では順次空室確認を行っていますが、次回更新予定日までに空室確認が行えない場合には、この物件情報は自動的に削除されます。
片山町の完工年月(1988年8月)築の賃貸一戸建て ***号室の賃貸物件部屋概要
家賃 |
11万円
初期費用を |
|---|---|
共益費 |
-
入居可能時期 |
敷金/礼金 |
- / 2ヶ月 |
保証金/ |
- / - |
最寄駅 |
|
所在地 |
大阪府吹田市片山町 |
部屋番号 |
***号室 |
間取り |
3LDK(LDK0・洋0・洋0・洋0) |
専有面積 |
73.00㎡ |
築年数 |
1988年8月(築38年) |
階数 |
3階部分(地上3階建) |
方位・位置 |
西 / その他 |
物件種別 |
賃貸一戸建て |
構造 |
RC |
駐車場 |
無 |
小学校学区 |
片山小学校 |
中学校学区 |
片山中学校 |
他の空き部屋 |
ー |
- 学区データについて
- ※学区データは必ずしも正確とは限りません。詳細に関しては最寄店舗または各自治体の教育委員会に必ずご確認ください。
片山町の完工年月(1988年8月)築の賃貸一戸建て ***号室の特徴
契約条件
敷金が無料なため、初期費用が比較的安くなる傾向にあります。
セキュリティ
来客時には居室内のテレビモニターにて訪問者の顔を確認することができます。
室内設備
システムキッチンには、ガスコンロが備え付けられています。 トイレは、温水洗浄便座機能付きになります。 女性に嬉しい設備のシャワーの付いている洗面化粧台があります。
居室状況
お部屋の床は、全居室フローリングとなっており、エアコンが設置されています。
建物設備共用部分
居室外の専有スペースとして、洗濯物を干すなどの用途として利用できるバルコニーがあります。
周辺施設
この物件の学区は、片山小学校区・片山中学校区です。近くには、徒歩12分(941m)でドラッグストアがあります。
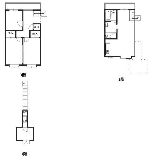
片山町の完工年月(1988年8月)築の賃貸一戸建て ***号室の間取り
間取り:3LDK
間取詳細:3LDK(LDK0・洋0・洋0・洋0)
専有面積:73.00㎡
方位:西
部屋位置:その他
片山町の完工年月(1988年8月)築の賃貸一戸建て ***号室の設備
キッチン
システムキッチン
ガスコンロ
バス・トイレ
バス・トイレ別
温水洗浄便座
独立洗面台
シャワー付洗面化粧台
玄関
TVモニタ付インターホン
バルコニー
バルコニー
室内設備
エアコン
フローリング
全居室フローリング
位置・立地
2階以上
最上階
インフラ
都市ガス
入居条件
即入居可
ライフステージ
一人暮らしに人気の設備
カップルに人気の設備
家族に人気の設備
夫婦に人気の設備
三世代で人気の設備
こだわり
洋室で暮らしたい
片山町の完工年月(1988年8月)築の賃貸一戸建て ***号室の賃貸契約情報
毎月支払う |
家賃11万円/月共益費- |
|---|---|
初期費用 |
敷金-礼金2ヶ月 (22万円)保証金-敷引き償却金- |
更新料 |
- |
鍵交換費用 |
- |
室内清掃費用 |
55,000円 |
駐車場料金 |
無 |
損保・ |
借家賠付きの火災保険にご加入いただきます。 |
保証会社 |
|
契約期間 |
2年 |
入居可能日 |
即入居可 |
フリーレント期間 |
- |
取引形態 |
仲介 |
備考 |
お部屋探しはクラスモJR吹田駅前店で新婚様・カップル様 大歓迎・応援中医療従事者様 大歓迎・応援中新社会人様 大歓迎・応援中 |
片山町の完工年月(1988年8月)築の賃貸一戸建て ***号室の建物情報
建物名称 |
片山町の完工年月(1988年8月)築の賃貸一戸建て |
|---|---|
最寄駅 |
|
所在地 |
大阪府吹田市片山町 |
階層 |
3階部分(地上3階建) |
構造 |
RC |
築年数 |
1988年8月(築38年) |
駐車場 |
無 |
小学校学区 |
片山小学校 |
中学校学区 |
片山中学校 |
- 学区データについて
- ※学区データは必ずしも正確とは限りません。詳細に関しては最寄店舗または各自治体の教育委員会に必ずご確認ください。
無料この物件に問い合わせ
- 片山町の完工年月(1988年8月)築の賃貸一戸建て ***号室

-
11万円
(共益費
-)
- 敷
- -
- 礼
- 2ヶ月
- 保
- -
- 償
- -
片山町の完工年月(1988年8月)築の賃貸一戸建て ***号室の物件のお問い合わせ先・取り扱い店舗
クラスモ FCJR吹田駅前店
- アクセス
-
東海道本線(JR西日本)「吹田駅」徒歩2分
阪急千里線「吹田駅」徒歩13分
阪急千里線「豊津駅」徒歩23分
- 住所
- 〒564-0027 大阪府吹田市朝日町2番 さんくす2番館138号室
- 営業時間
- 10:00~19:00
- 定休日
- 水曜日
- 営業エリア
- 吹田市・摂津市・茨木市 ・東淀川区・淀川区・西淀川区・北区・福島区・中央区
- 取引態様
- 賃貸仲介業・物件売買業・FC店


































