ワーフときわ台 0405号室(4階/1DK)の賃貸物件(賃貸マンション)
東京都板橋区にあるワーフときわ台 0405号室はガスコンロ、ガスコンロ二口以上、エアコン、2階以上、都市ガスなどが特徴です。最寄り駅の東武東上線ときわ台駅から徒歩3分です。ワーフときわ台 0405号室の詳細はハウスコム 練馬店までお気軽にお問い合わせください!
情報更新日:
次回更新予定日:
※次回更新予定日について:お店側では順次空室確認を行っていますが、次回更新予定日までに空室確認が行えない場合には、この物件情報は自動的に削除されます。
ワーフときわ台 0405号室の賃貸物件部屋概要
家賃 |
14.4万円
初期費用を |
|---|---|
共益費 |
15,000円
入居可能時期 |
敷金/礼金 |
1ヶ月 / 1ヶ月 |
保証金/ |
- / - |
最寄駅 |
|
所在地 |
東京都板橋区南常盤台 |
部屋番号 |
0405号室 |
間取り |
1DK(DK7・洋5.7) |
専有面積 |
36.10㎡ |
築年数 |
2025年3月 |
階数 |
4階部分(地上5階建) |
方位・位置 |
北東 / その他 |
物件種別 |
賃貸マンション |
構造 |
RC |
駐車場 |
- |
小学校学区 |
常盤台小学校 |
中学校学区 |
上板橋第一中学校 |
他の空き部屋 |
0201号室 ***号室 0401号室 0403号室 |
- 学区データについて
- ※学区データは必ずしも正確とは限りません。詳細に関しては最寄店舗または各自治体の教育委員会に必ずご確認ください。
ワーフときわ台 0405号室の特徴
契約条件
ペットの飼育もご相談ください。
セキュリティ
この物件の建物には、オートロックや宅配ボックスが設置されております。
室内設備
システムキッチンには、2つ以上のガスコンロが備え付けられています。 トイレは、温水洗浄便座機能付きになります。 女性に嬉しい設備の独立した洗面化粧台があります。 洗濯に便利な設備として、室内洗濯機置場があります。浴室乾燥機も設置されているので、梅雨時の生乾き臭も比較的防ぐことができます。
居室状況
お部屋の床は、フローリングとなっており、エアコンが設置されています。 インターネットも無料で入居後すぐ生活が始められます。 収納スペースとして、基本的な居室にクローゼットがあります。
建物設備共用部分
建物の共用スペースに、日々の出入に便利なエレベーターや、急な外出や不在がちのご家庭の荷物受け取りに便利な宅配ボックスが設置されています。 駐輪場が利用できます。
周辺施設
この物件の学区は、常盤台小学校区・上板橋第一中学校区です。
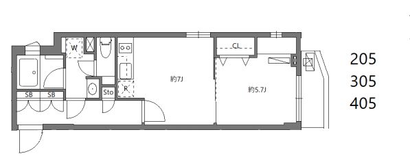
ワーフときわ台 0405号室の間取り
間取り:1DK
間取詳細:1DK(DK7・洋5.7)
専有面積:36.10㎡
方位:北東
部屋位置:その他
ワーフときわ台 0405号室の設備
キッチン
システムキッチン
ガスコンロ
ガスコンロ二口以上
バス・トイレ
バス・トイレ別
浴室乾燥機
温水洗浄便座
独立洗面台
玄関
オートロック
宅配ボックス
収納
クローゼット
室内設備
エアコン
フローリング
室内洗濯機置場
位置・立地
2階以上
インフラ
インターネット可
都市ガス
建物設備
エレベーター
駐輪場
入居条件
ペット可・相談
ライフステージ
一人暮らしに人気の設備
カップルに人気の設備
家族に人気の設備
夫婦に人気の設備
三世代で人気の設備
こだわり
雨の日でも洗濯したい
洋室で暮らしたい
趣味
オークション・通販が好き
お得な条件
インターネット無料
ワーフときわ台 0405号室の賃貸契約情報
毎月支払う |
家賃14.4万円/月共益費15,000円/月 |
|---|---|
初期費用 |
敷金1ヶ月 (14.4万円)礼金1ヶ月 (14.4万円)保証金-敷引き償却金- |
更新料 |
144,000円 |
鍵交換費用 |
38,500円 |
室内清掃費用 |
- |
プレミアデスク(税込/2年) |
16,500円 |
駐車場料金 |
- |
損保・ |
借家賠付きの火災保険にご加入いただきます。 |
保証会社 |
加入要 保証会社:エポスカード 保証会社利用料:※エポス ルームIDからの審査になります。 【ルームID】月額総賃料の50%/月次保証料、月額総賃料の1.5%/1年毎10,000円 【アーク賃貸保証】月額総賃料の40%/次年度以降10,000円 |
契約期間 |
2年 |
入居可能日 |
相談 |
フリーレント期間 |
- |
取引形態 |
一般媒介 |
備考 |
- |
ワーフときわ台 0405号室の建物情報
建物名称 |
ワーフときわ台 |
|---|---|
最寄駅 |
|
所在地 |
東京都板橋区南常盤台 |
階層 |
4階部分(地上5階建) |
構造 |
RC |
築年数 |
2025年3月 |
駐車場 |
- |
小学校学区 |
常盤台小学校 |
中学校学区 |
上板橋第一中学校 |
- 学区データについて
- ※学区データは必ずしも正確とは限りません。詳細に関しては最寄店舗または各自治体の教育委員会に必ずご確認ください。
無料この物件に問い合わせ
- ワーフときわ台 0405号室

-
14.4万円
(共益費
15,000円)
- 敷
- 1ヶ月
- 礼
- 1ヶ月
- 保
- -
- 償
- -
ワーフときわ台 0405号室の物件のお問い合わせ先・取り扱い店舗
ハウスコム 練馬店
- アクセス
-
西武池袋線・豊島線「練馬駅」南口徒歩1分
都営大江戸線「練馬駅」A2出口徒歩1分
- 住所
- 〒176-0001 東京都練馬区練馬1丁目2−9 K&Iビル 1階
- 営業時間
- 10:00~18:00
- 定休日
- なし(年末年始休業(12月25日~1月3日))
- 営業エリア
- 練馬区、中野区、杉並区、板橋区、豊島区、西東京市、和光市、朝霞市、新座市お探しとあればどこでもお探し致します。
- 取引態様
- 賃貸仲介業
































