メゾンドヴィレ恵比寿 1003号室(10階/1DK)の賃貸物件(賃貸マンション)
東京都渋谷区にあるメゾンドヴィレ恵比寿 1003号室はシューズボックス、最上階、インターネット可、BS、分譲賃貸などが特徴です。最寄り駅の山手線恵比寿駅から徒歩7分です。メゾンドヴィレ恵比寿 1003号室の詳細はハウスコム 五反田店までお気軽にお問い合わせください!
情報更新日:
次回更新予定日:
※次回更新予定日について:お店側では順次空室確認を行っていますが、次回更新予定日までに空室確認が行えない場合には、この物件情報は自動的に削除されます。
メゾンドヴィレ恵比寿 1003号室の賃貸物件部屋概要
家賃 |
14万円
初期費用を |
|---|---|
共益費 |
10,000円
入居可能時期 |
敷金/礼金 |
1ヶ月 / 1ヶ月 |
保証金/ |
- / - |
最寄駅 |
|
所在地 |
東京都渋谷区恵比寿 |
部屋番号 |
1003号室 |
間取り |
1DK(洋8・DK4) |
専有面積 |
33.54㎡ |
築年数 |
2001年2月(築25年) |
階数 |
10階部分(地上10階建) |
方位・位置 |
南西 / その他 |
物件種別 |
賃貸マンション |
構造 |
SRC |
駐車場 |
- |
小学校学区 |
加計塚小学校 |
中学校学区 |
広尾中学校 |
他の空き部屋 |
ー |
- 学区データについて
- ※学区データは必ずしも正確とは限りません。詳細に関しては最寄店舗または各自治体の教育委員会に必ずご確認ください。
メゾンドヴィレ恵比寿 1003号室の特徴
契約条件
この物件は、2人入居もご契約できます。
セキュリティ
この物件の建物には、オートロックや宅配ボックスが設置されており、来客時には居室内のテレビモニターにて訪問者の顔を確認することができます。
室内設備
システムキッチンには、IHコンロが備え付けられています。 女性に嬉しい設備の独立した洗面化粧台があります。
居室状況
お部屋の床は、フローリングとなっており、エアコンが設置されています。 収納スペースとして、基本的な居室にクローゼットを設置、玄関にはシューズボックスがあります。
建物設備共用部分
居室外の専有スペースとして、洗濯物を干すなどの用途として利用できるバルコニーがあります。 建物の共用スペースに、日々の出入に便利なエレベーターや、急な外出や不在がちのご家庭の荷物受け取りに便利な宅配ボックスが設置されています。 駐輪場が利用できます。
周辺施設
この物件の学区は、加計塚小学校区・広尾中学校区です。
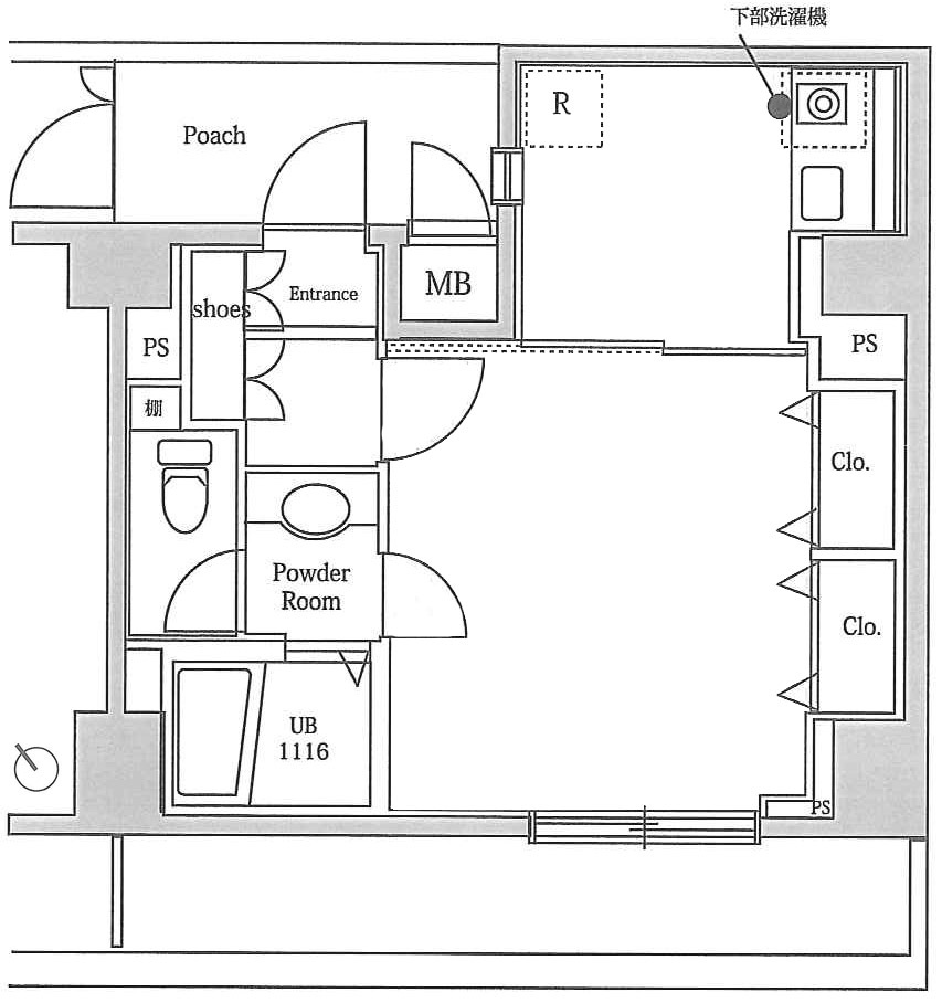
メゾンドヴィレ恵比寿 1003号室の間取り
間取り:1DK
間取詳細:1DK(洋8・DK4)
専有面積:33.54㎡
方位:南西
部屋位置:その他
メゾンドヴィレ恵比寿 1003号室の設備
キッチン
システムキッチン
IHコンロ
バス・トイレ
バス・トイレ別
独立洗面台
玄関
TVモニタ付インターホン
オートロック
宅配ボックス
収納
クローゼット
シューズボックス
バルコニー
バルコニー
ルーフバルコニー
室内設備
エアコン
フローリング
デザイナーズ
位置・立地
2階以上
最上階
インフラ
インターネット可
BS
CS
都市ガス
建物設備
エレベーター
駐輪場
分譲賃貸
入居条件
2人入居可
ライフステージ
一人暮らしに人気の設備
カップルに人気の設備
家族に人気の設備
夫婦に人気の設備
三世代で人気の設備
こだわり
外で子どもと遊びたい
身だしなみに気をつかいたい
洋室で暮らしたい
趣味
ガーデニングが好き
メゾンドヴィレ恵比寿 1003号室の賃貸契約情報
毎月支払う |
家賃14万円/月共益費10,000円/月 |
|---|---|
初期費用 |
敷金1ヶ月 (14万円)礼金1ヶ月 (14万円)保証金-敷引き償却金- |
更新料 |
140,000円 |
鍵交換費用 |
38,500円 |
室内清掃費用 |
- |
プレミアデスク(税込/2年) |
22,000円 |
駐車場料金 |
- |
損保・ |
借家賠付きの火災保険にご加入いただきます。 |
保証会社 |
加入要 保証会社:エポスカード 保証会社利用料:※エポス ルームIDからの審査になります。 【ルームID】月額総賃料の50%/月次保証料、月額総賃料の1.5% 【ナップ】月額総賃料の50%/年間保証料10,000円/引落手数料550円(税込) |
契約期間 |
2年 |
入居可能日 |
相談 |
フリーレント期間 |
- |
取引形態 |
一般媒介 |
備考 |
- |
メゾンドヴィレ恵比寿 1003号室の建物情報
建物名称 |
メゾンドヴィレ恵比寿 |
|---|---|
最寄駅 |
|
所在地 |
東京都渋谷区恵比寿 |
階層 |
10階部分(地上10階建) |
構造 |
SRC |
築年数 |
2001年2月(築25年) |
駐車場 |
- |
小学校学区 |
加計塚小学校 |
中学校学区 |
広尾中学校 |
- 学区データについて
- ※学区データは必ずしも正確とは限りません。詳細に関しては最寄店舗または各自治体の教育委員会に必ずご確認ください。
無料この物件に問い合わせ
- メゾンドヴィレ恵比寿 1003号室

-
14万円
(共益費
10,000円)
- 敷
- 1ヶ月
- 礼
- 1ヶ月
- 保
- -
- 償
- -
メゾンドヴィレ恵比寿 1003号室の物件のお問い合わせ先・取り扱い店舗
ハウスコム 五反田店
- アクセス
-
山手線「五反田駅」東口徒歩1分
都営浅草線「五反田駅」A6出口より徒歩1分
- 住所
- 〒141-0022 東京都品川区東五反田1丁目12−12 落合ビル 2F
- 営業時間
- 10:00~18:00
- 定休日
- なし(年末年始は休業)
- 営業エリア
- 品川区,大田区,港区,目黒区
- 取引態様
- 賃貸仲介業






































