ルフォンプログレ門前仲町マークス 1102号室(11階/1DK)の賃貸物件(賃貸マンション)
東京都江東区にあるルフォンプログレ門前仲町マークス 1102号室は温水洗浄便座、TVモニタ付インターホン、エアコン、フローリング、2階以上などが特徴です。最寄り駅の東京メトロ 東西線門前仲町駅から徒歩6分です。ルフォンプログレ門前仲町マークス 1102号室の詳細はハウスコム 押上店までお気軽にお問い合わせください!
情報更新日:
次回更新予定日:
※次回更新予定日について:お店側では順次空室確認を行っていますが、次回更新予定日までに空室確認が行えない場合には、この物件情報は自動的に削除されます。
ルフォンプログレ門前仲町マークス 1102号室の賃貸物件部屋概要
家賃 |
14.7万円
初期費用を |
|---|---|
共益費 |
15,000円
入居可能時期 |
敷金/礼金 |
1ヶ月 / 1ヶ月 |
保証金/ |
- / - |
最寄駅 |
|
所在地 |
東京都江東区深川 |
部屋番号 |
1102号室 |
間取り |
1DK(DK5.4・洋4.5) |
専有面積 |
25.23㎡ |
築年数 |
2021年6月(築5年) |
階数 |
11階部分(地上13階建) |
方位・位置 |
西 / その他 |
物件種別 |
賃貸マンション |
構造 |
RC |
駐車場 |
無 |
小学校学区 |
数矢小学校 |
中学校学区 |
深川第二中学校 |
他の空き部屋 |
0204号室 0703号室 1202号室 |
- 学区データについて
- ※学区データは必ずしも正確とは限りません。詳細に関しては最寄店舗または各自治体の教育委員会に必ずご確認ください。
ルフォンプログレ門前仲町マークス 1102号室の特徴
セキュリティ
この物件の建物には、オートロックや防犯カメラが設置されており、来客時には居室内のテレビモニターにて訪問者の顔を確認することができます。
室内設備
トイレは、温水洗浄便座機能付きになります。 洗濯に便利な設備として、室内洗濯機置場があります。
居室状況
お部屋の床は、フローリングとなっており、エアコンが設置されています。 インターネットも無料で入居後すぐ生活が始められます。
建物設備共用部分
建物の共用スペースに、日々の出入に便利なエレベーターや、いざという時の防犯カメラが設置されています。 駐輪場、バイク置き場が利用できます。
周辺施設
この物件の学区は、数矢小学校区・深川第二中学校区です。
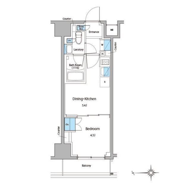
ルフォンプログレ門前仲町マークス 1102号室の間取り
間取り:1DK
間取詳細:1DK(DK5.4・洋4.5)
専有面積:25.23㎡
方位:西
部屋位置:その他
ルフォンプログレ門前仲町マークス 1102号室の設備
バス・トイレ
バス・トイレ別
温水洗浄便座
玄関
TVモニタ付インターホン
オートロック
室内設備
エアコン
フローリング
室内洗濯機置場
位置・立地
2階以上
建物設備
エレベーター
防犯カメラ
駐輪場
バイク置き場
ライフステージ
一人暮らしに人気の設備
カップルに人気の設備
家族に人気の設備
夫婦に人気の設備
三世代で人気の設備
こだわり
セキュリティ対策重視
雨の日でも洗濯したい
洋室で暮らしたい
お得な条件
インターネット無料
ルフォンプログレ門前仲町マークス 1102号室の賃貸契約情報
毎月支払う |
家賃14.7万円/月共益費15,000円/月 |
|---|---|
初期費用 |
敷金1ヶ月 (14.7万円)礼金1ヶ月 (14.7万円)保証金-敷引き償却金- |
更新料 |
147,000円 |
鍵交換費用 |
- |
室内清掃費用 |
- |
鍵交換代 |
33,000円 |
駐車場料金 |
無 |
損保・ |
借家賠付きの火災保険にご加入いただきます。 |
保証会社 |
加入要 保証会社利用料:レジデンシャルパートナーズ 保証料:賃料等の50%(最低2万)、月額手数料:賃料等の1%(更新料無) |
契約期間 |
2年 |
入居可能日 |
即入居可 |
フリーレント期間 |
- |
取引形態 |
一般媒介 |
備考 |
清掃費:38500円(退去時請求).エアコン清掃費:11000円(退去時請求) |
ルフォンプログレ門前仲町マークス 1102号室の建物情報
建物名称 |
ルフォンプログレ門前仲町マークス |
|---|---|
最寄駅 |
|
所在地 |
東京都江東区深川 |
階層 |
11階部分(地上13階建) |
構造 |
RC |
築年数 |
2021年6月(築5年) |
駐車場 |
無 |
小学校学区 |
数矢小学校 |
中学校学区 |
深川第二中学校 |
- 学区データについて
- ※学区データは必ずしも正確とは限りません。詳細に関しては最寄店舗または各自治体の教育委員会に必ずご確認ください。
無料この物件に問い合わせ
- ルフォンプログレ門前仲町マークス 1102号室

-
14.7万円
(共益費
15,000円)
- 敷
- 1ヶ月
- 礼
- 1ヶ月
- 保
- -
- 償
- -
ルフォンプログレ門前仲町マークス 1102号室の物件のお問い合わせ先・取り扱い店舗
ハウスコム 押上店
- アクセス
-
東京メトロ 半蔵門線「押上駅」B1出口徒歩1分
- 住所
- 〒130-0002 東京都墨田区業平4丁目16−2 三橋ビル 1F
- 営業時間
- 10:00~18:00
- 定休日
- 水曜日
- 営業エリア
- 墨田区・江東区・中央区・台東区・江戸川区・葛飾区・足立区・荒川区
- 取引態様
- 賃貸仲介業


































