レオパレスクレール 112号室(1階/1K)の賃貸物件(賃貸アパート)
埼玉県朝霞市にあるレオパレスクレール 112号室はバス・トイレ別、TVモニタ付インターホン、ロフト付、1階、即入居可などが特徴です。最寄り駅の東武東上線朝霞駅からバスで15分、膝折から徒歩1分です。レオパレスクレール 112号室の詳細はハウスコム ひばりヶ丘店までお気軽にお問い合わせください!
情報更新日:
次回更新予定日:
※次回更新予定日について:お店側では順次空室確認を行っていますが、次回更新予定日までに空室確認が行えない場合には、この物件情報は自動的に削除されます。
レオパレスクレール 112号室の賃貸物件部屋概要
家賃 |
5.7万円
初期費用を |
|---|---|
共益費 |
5,000円
入居可能時期 |
敷金/礼金 |
- / 57,000円 |
保証金/ |
- / - |
最寄駅 |
|
所在地 |
埼玉県朝霞市膝折町 |
部屋番号 |
112号室 |
間取り |
1K |
専有面積 |
19.87㎡ |
築年数 |
2007年3月(築19年) |
階数 |
1階部分(地上2階建) |
方位・位置 |
ー / その他 |
物件種別 |
賃貸アパート |
構造 |
軽量鉄骨 |
駐車場 |
無 |
小学校学区 |
朝霞第四小学校 |
中学校学区 |
朝霞第一中学校 |
他の空き部屋 |
101号室 104号室 105号室 ***号室 |
- 学区データについて
- ※学区データは必ずしも正確とは限りません。詳細に関しては最寄店舗または各自治体の教育委員会に必ずご確認ください。
レオパレスクレール 112号室の特徴
契約条件
敷金が無料なため、初期費用が比較的安くなる傾向にあり、更新料が無料なので、長年お得に住み続けることができます。
セキュリティ
この物件の建物には、宅配ボックスが設置されており、来客時には居室内のテレビモニターにて訪問者の顔を確認することができます。
室内設備
電気コンロが備え付けられています。 トイレは、温水洗浄便座機能付きになります。 洗濯に便利な設備として、室内洗濯機置場があります。
居室状況
居室には、ロフトが設置されており大規模な収納スペースやセパレートされた寝室として活用できます。 エアコンが設置されています。
建物設備共用部分
建物の共用スペースに、急な外出や不在がちのご家庭の荷物受け取りに便利な宅配ボックスが設置されています。
周辺施設
この物件の学区は、朝霞第四小学校区・朝霞第一中学校区です。
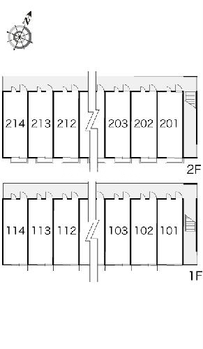
レオパレスクレール 112号室の間取り
間取り:1K
間取詳細:1K
専有面積:19.87㎡
方位:ー
部屋位置:その他
レオパレスクレール 112号室の設備
キッチン
電気コンロ
バス・トイレ
バス・トイレ別
温水洗浄便座
玄関
TVモニタ付インターホン
宅配ボックス
室内設備
エアコン
室内洗濯機置場
ロフト付
位置・立地
1階
インフラ
インターネット可
入居条件
即入居可
ライフステージ
一人暮らしに人気の設備
カップルに人気の設備
家族に人気の設備
夫婦に人気の設備
三世代で人気の設備
トレンド
ミニマリスト
こだわり
雨の日でも洗濯したい
寝るためだけの部屋
お得な条件
更新料無料
レオパレスクレール 112号室の賃貸契約情報
毎月支払う |
家賃5.7万円/月共益費5,000円/月 |
|---|---|
初期費用 |
敷金-礼金57,000円保証金-敷引き償却金- |
更新料 |
- |
鍵交換費用 |
16,500円 |
室内清掃費用 |
41,800円 |
抗菌施工(任意) |
23,760円 |
駐車場料金 |
無 |
損保・ |
借家賠付きの火災保険にご加入いただきます。 |
保証会社 |
加入要 保証会社利用料:保証料:64190円(契約内容により100~120%で変動有)※記載金額は120%の場合 |
契約期間 |
- |
入居可能日 |
即入居可 |
フリーレント期間 |
- |
取引形態 |
一般媒介 |
備考 |
- |
レオパレスクレール 112号室の建物情報
建物名称 |
レオパレスクレール |
|---|---|
最寄駅 |
|
所在地 |
埼玉県朝霞市膝折町 |
階層 |
1階部分(地上2階建) |
構造 |
軽量鉄骨 |
築年数 |
2007年3月(築19年) |
駐車場 |
無 |
小学校学区 |
朝霞第四小学校 |
中学校学区 |
朝霞第一中学校 |
- 学区データについて
- ※学区データは必ずしも正確とは限りません。詳細に関しては最寄店舗または各自治体の教育委員会に必ずご確認ください。
無料この物件に問い合わせ
- レオパレスクレール 112号室

-
5.7万円
(共益費
5,000円)
- 敷
- -
- 礼
- 57,000円
- 保
- -
- 償
- -
レオパレスクレール 112号室の物件のお問い合わせ先・取り扱い店舗
ハウスコム ひばりヶ丘店
- アクセス
-
西武池袋線・豊島線「ひばりヶ丘駅」徒歩2分
- 住所
- 〒188-0001 東京都西東京市谷戸町3-27-9 JCビルⅡ1階
- 営業時間
- 10:00~18:00
- 定休日
- 水曜日(2025年12月25日~2026年1月3日)
- 営業エリア
- 西東京市・東久留米市・清瀬市・小平市・東村山市・小金井市・武蔵野市・練馬区・中野区・新座市・所沢市・朝霞市・和光市
- 取引態様
- 賃貸仲介業



























