MQuarto福生 303号室(3階/1K)の賃貸物件(賃貸アパート)
東京都福生市にあるMQuarto福生 303号室はガスコンロ二口以上、TVモニタ付インターホン、ルーフバルコニー、最上階、プロパンガスなどが特徴です。最寄り駅の八高線東福生駅から徒歩15分です。MQuarto福生 303号室の詳細はハウスコム 立川南口店までお気軽にお問い合わせください!
情報更新日:
次回更新予定日:
※次回更新予定日について:お店側では順次空室確認を行っていますが、次回更新予定日までに空室確認が行えない場合には、この物件情報は自動的に削除されます。
MQuarto福生 303号室の賃貸物件部屋概要
家賃 |
6.2万円
初期費用を |
|---|---|
共益費 |
5,000円
入居可能時期 |
敷金/礼金 |
- / - |
保証金/ |
- / - |
最寄駅 |
|
所在地 |
東京都福生市武蔵野台 |
部屋番号 |
303号室 |
間取り |
1K(洋7.8) |
専有面積 |
23.30㎡ |
築年数 |
2025年9月 |
階数 |
3階部分(地上3階建) |
方位・位置 |
北 / その他 |
物件種別 |
賃貸アパート |
構造 |
木造 |
駐車場 |
無 |
小学校学区 |
福生第六小学校 |
中学校学区 |
福生第二中学校 |
他の空き部屋 |
101号室 106号室 201号室 205号室 301号室 302号室 305号室 |
- 学区データについて
- ※学区データは必ずしも正確とは限りません。詳細に関しては最寄店舗または各自治体の教育委員会に必ずご確認ください。
MQuarto福生 303号室の特徴
-
一人暮らしに人気の設備

-
カップルに人気の設備

-
家族に人気の設備

-
夫婦に人気の設備

-
三世代で人気の設備

-
セキュリティ対策重視

-
外で子どもと遊びたい

-
雨の日でも洗濯したい

-
洋室で暮らしたい

-
服やおしゃれが好き

-
オークション・通販が好き

-
ガーデニングが好き

契約条件
ご契約時に保証人は不要です。 敷金と礼金が無料なため、初期費用が比較的安くなる傾向にあります。
セキュリティ
この物件の建物には、オートロックや防犯カメラや宅配ボックスが設置されており、来客時には居室内のテレビモニターにて訪問者の顔を確認することができます。
室内設備
システムキッチンには、2つ以上のガスコンロが備え付けられています。 お風呂とトイレは別です。お風呂には、追い焚き機能が備わっています。 トイレは、温水洗浄便座機能付きになります。 女性に嬉しい設備のシャワーの付いている洗面化粧台があります。 洗濯に便利な設備として、室内洗濯機置場があります。浴室乾燥機も設置されているので、梅雨時の生乾き臭も比較的防ぐことができます。
居室状況
お部屋の床は、フローリングとなっており、エアコンが設置されています。 インターネットも無料で入居後すぐ生活が始められます。 収納スペースとして、通常よりも収納力の高いウォークインクローゼット、玄関にはシューズボックスがあります。
建物設備共用部分
居室外の専有スペースとして、洗濯物を干すなどの用途として利用できるバルコニーがあります。 建物の共用スペースに、いざという時の防犯カメラや、急な外出や不在がちのご家庭の荷物受け取りに便利な宅配ボックスが設置されています。
周辺施設
この物件の学区は、福生第六小学校区・福生第二中学校区です。
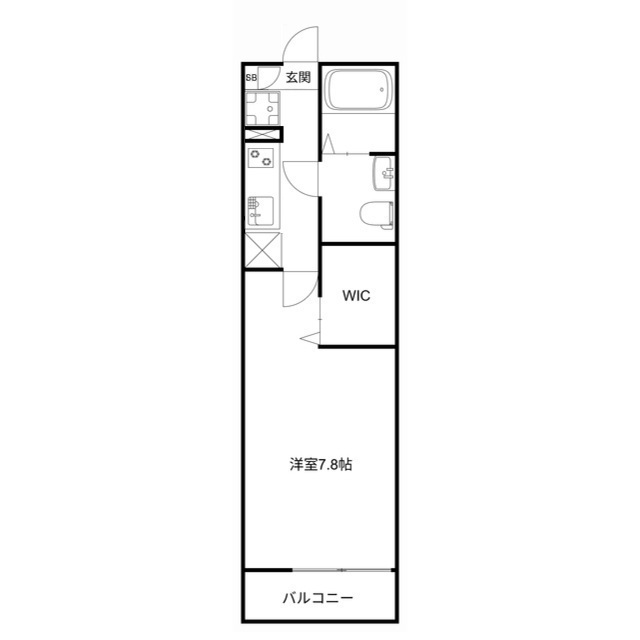
MQuarto福生 303号室の間取り
間取り:1K
間取詳細:1K(洋7.8)
専有面積:23.30㎡
方位:北
部屋位置:その他
MQuarto福生 303号室の設備
キッチン
システムキッチン
ガスコンロ
ガスコンロ二口以上
バス・トイレ
バス・トイレ別
追い焚き
浴室乾燥機
温水洗浄便座
独立洗面台
シャワー付洗面化粧台
玄関
TVモニタ付インターホン
オートロック
宅配ボックス
収納
ウォークインクローゼット
シューズボックス
バルコニー
バルコニー
ルーフバルコニー
室内設備
エアコン
フローリング
室内洗濯機置場
位置・立地
2階以上
最上階
インフラ
プロパンガス
建物設備
防犯カメラ
入居条件
オンライン相談可
オンライン内見可
保証人不要
即入居可
ライフステージ
一人暮らしに人気の設備
カップルに人気の設備
家族に人気の設備
夫婦に人気の設備
三世代で人気の設備
こだわり
セキュリティ対策重視
外で子どもと遊びたい
雨の日でも洗濯したい
洋室で暮らしたい
趣味
服やおしゃれが好き
オークション・通販が好き
ガーデニングが好き
お得な条件
フリーレント
インターネット無料
MQuarto福生 303号室の賃貸契約情報
毎月支払う |
家賃6.2万円/月共益費5,000円/月 |
|---|---|
初期費用 |
敷金-礼金-保証金-敷引き償却金- |
更新料 |
62,000円 |
鍵交換費用 |
- |
室内清掃費用 |
- |
駐車場料金 |
無 |
損保・ |
借家賠付きの火災保険にご加入いただきます。 |
保証会社 |
加入要 保証会社:エポスカード 保証会社利用料:①初回保証料:総賃料60% ②年間保証料10,000円 ③月次手数料:総賃料の1%~1,440円※①②③変更あり |
契約期間 |
2年 |
入居可能日 |
即入居可 |
フリーレント期間 |
1ヶ月 |
取引形態 |
一般媒介 |
備考 |
短期解約違約金あり(2年未満:月額総賃料の1ヵ月分 、1年未満:月額総賃料の2ヵ月分) 退去時にクリーニング費用 借主実費負担 安心トラブルサポート16500円 |
MQuarto福生 303号室の建物情報
建物名称 |
MQuarto福生 |
|---|---|
最寄駅 |
|
所在地 |
東京都福生市武蔵野台 |
階層 |
3階部分(地上3階建) |
構造 |
木造 |
築年数 |
2025年9月 |
駐車場 |
無 |
小学校学区 |
福生第六小学校 |
中学校学区 |
福生第二中学校 |
- 学区データについて
- ※学区データは必ずしも正確とは限りません。詳細に関しては最寄店舗または各自治体の教育委員会に必ずご確認ください。
無料この物件に問い合わせ
- MQuarto福生 303号室

-
6.2万円
(共益費
5,000円)
- 敷
- -
- 礼
- -
- 保
- -
- 償
- -
MQuarto福生 303号室の物件のお問い合わせ先・取り扱い店舗
ハウスコム 立川南口店
- アクセス
-
中央本線(JR東日本)「立川駅」南口徒歩1分
- 住所
- 〒190-0023 東京都立川市柴崎町3丁目6−1 立川Nビル 1階
- 営業時間
- 10:00~18:00
- 定休日
- なし(年末年始は休業)
- 営業エリア
- 立川市・日野市・昭島市・国立市・国分寺市・東大和市・武蔵村山市・福生市・あきる野市・羽村市・青梅市・西多摩郡
- 取引態様
- 賃貸仲介業
























