コンフォリア・リヴ板橋 0604号室(6階/1DK)の賃貸物件(賃貸マンション)
東京都板橋区にあるコンフォリア・リヴ板橋 0604号室はTVモニタ付インターホン、エレベーター、防犯カメラ、駐輪場、バイク置き場などが特徴です。最寄り駅の都営三田線新板橋駅から徒歩1分です。コンフォリア・リヴ板橋 0604号室の詳細はハウスコム 和光店までお気軽にお問い合わせください!
情報更新日:
次回更新予定日:
※次回更新予定日について:お店側では順次空室確認を行っていますが、次回更新予定日までに空室確認が行えない場合には、この物件情報は自動的に削除されます。
コンフォリア・リヴ板橋 0604号室の賃貸物件部屋概要
家賃 |
12.7万円
初期費用を |
|---|---|
共益費 |
8,000円
入居可能時期 |
敷金/礼金 |
1ヶ月 / - |
保証金/ |
- / - |
最寄駅 |
|
所在地 |
東京都板橋区板橋 |
部屋番号 |
0604号室 |
間取り |
1DK(DK6.8・洋4.3) |
専有面積 |
25.30㎡ |
築年数 |
2024年9月(築2年) |
階数 |
6階部分(地上14階建) |
方位・位置 |
北東 / その他 |
物件種別 |
賃貸マンション |
構造 |
RC |
駐車場 |
無 |
小学校学区 |
板橋第四小学校 |
中学校学区 |
板橋第五中学校 |
他の空き部屋 |
0403号室 0506号室 ***号室 0801号室 0905号室 1001号室 1003号室 1008号室 1201号室 1403号室 |
- 学区データについて
- ※学区データは必ずしも正確とは限りません。詳細に関しては最寄店舗または各自治体の教育委員会に必ずご確認ください。
コンフォリア・リヴ板橋 0604号室の特徴
-
一人暮らしに人気の設備

-
カップルに人気の設備

-
家族に人気の設備

-
夫婦に人気の設備

-
三世代で人気の設備

-
セキュリティ対策重視

-
タイパ重視

-
雨の日でも洗濯したい

-
洋室で暮らしたい

-
オークション・通販が好き

契約条件
ペットの飼育もご相談ください。 礼金が無料なため、初期費用が比較的安くなる傾向にあります。
セキュリティ
この物件の建物には、オートロックや防犯カメラや宅配ボックスが設置されており、来客時には居室内のテレビモニターにて訪問者の顔を確認することができます。
室内設備
お風呂とトイレは別です。お風呂には、追い焚き機能が備わっています。 トイレは、温水洗浄便座機能付きになります。 女性に嬉しい設備の独立した洗面化粧台があります。 洗濯に便利な設備として、室内洗濯機置場があります。浴室乾燥機も設置されているので、梅雨時の生乾き臭も比較的防ぐことができます。
居室状況
お部屋の床は、フローリングとなっており、エアコンが設置されています。 インターネットも無料で入居後すぐ生活が始められます。
建物設備共用部分
建物の共用スペースに、日々の出入に便利なエレベーターや、いざという時の防犯カメラや、急な外出や不在がちのご家庭の荷物受け取りに便利な宅配ボックスや、居室内を常に清潔に保てる24時間利用可能なゴミ捨て置き場が設置されています。 駐輪場、バイク置き場が利用できます。
周辺施設
この物件の学区は、板橋第四小学校区・板橋第五中学校区です。
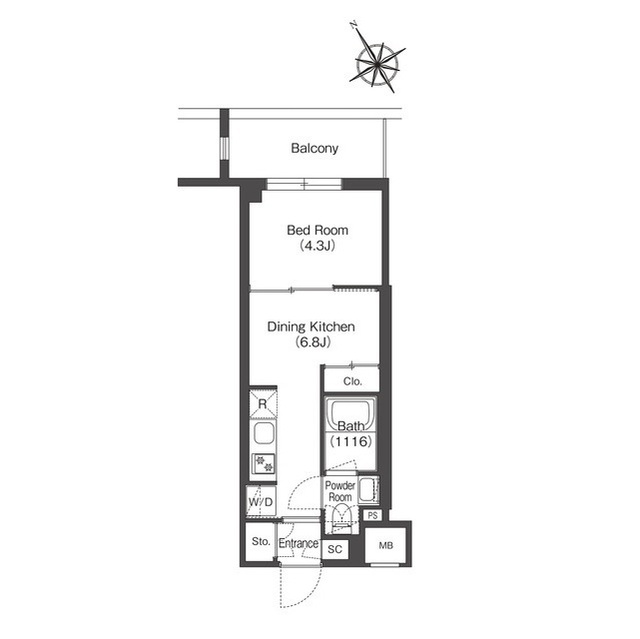
コンフォリア・リヴ板橋 0604号室の間取り
間取り:1DK
間取詳細:1DK(DK6.8・洋4.3)
専有面積:25.30㎡
方位:北東
部屋位置:その他
コンフォリア・リヴ板橋 0604号室の設備
バス・トイレ
バス・トイレ別
追い焚き
浴室乾燥機
温水洗浄便座
独立洗面台
玄関
TVモニタ付インターホン
オートロック
宅配ボックス
室内設備
エアコン
フローリング
室内洗濯機置場
位置・立地
2階以上
建物設備
エレベーター
防犯カメラ
24時間ゴミ出しOK
駐輪場
バイク置き場
入居条件
ペット可・相談
ライフステージ
一人暮らしに人気の設備
カップルに人気の設備
家族に人気の設備
夫婦に人気の設備
三世代で人気の設備
こだわり
セキュリティ対策重視
タイパ重視
雨の日でも洗濯したい
洋室で暮らしたい
趣味
オークション・通販が好き
お得な条件
インターネット無料
コンフォリア・リヴ板橋 0604号室の賃貸契約情報
毎月支払う |
家賃12.7万円/月共益費8,000円/月 |
|---|---|
初期費用 |
敷金1ヶ月 (12.7万円)礼金-保証金-敷引き償却金- |
更新料 |
127,000円 |
鍵交換費用 |
- |
室内清掃費用 |
- |
鍵交換代 |
33,000円 |
駐車場料金 |
無 |
損保・ |
借家賠付きの火災保険にご加入いただきます。 |
保証会社 |
加入要 保証会社利用料:エポスカード(RP) 保証料:賃料等の50%(最低2万)、月額保証料:賃料等の1%(更新料無) |
契約期間 |
2年 |
入居可能日 |
2026年01月下旬 |
フリーレント期間 |
- |
取引形態 |
一般媒介 |
備考 |
清掃費:38500円(退去時請求).エアコン清掃費:11000円(退去時請求) |
コンフォリア・リヴ板橋 0604号室の建物情報
建物名称 |
コンフォリア・リヴ板橋 |
|---|---|
最寄駅 |
|
所在地 |
東京都板橋区板橋 |
階層 |
6階部分(地上14階建) |
構造 |
RC |
築年数 |
2024年9月(築2年) |
駐車場 |
無 |
小学校学区 |
板橋第四小学校 |
中学校学区 |
板橋第五中学校 |
- 学区データについて
- ※学区データは必ずしも正確とは限りません。詳細に関しては最寄店舗または各自治体の教育委員会に必ずご確認ください。
無料この物件に問い合わせ
- コンフォリア・リヴ板橋 0604号室

-
12.7万円
(共益費
8,000円)
- 敷
- 1ヶ月
- 礼
- -
- 保
- -
- 償
- -
コンフォリア・リヴ板橋 0604号室の物件のお問い合わせ先・取り扱い店舗
ハウスコム 和光店
- アクセス
-
東武東上線「和光市駅」南口徒歩1分
- 住所
- 〒351-0114 埼玉県和光市本町6−8 大澤ビル 1階
- 営業時間
- 10:00~18:00
- 定休日
- 水曜日
- 営業エリア
- 和光市、朝霞市、新座市、志木市、富士見市、ふじみ野市、板橋区、練馬区
- 取引態様
- 賃貸仲介業























