ウインズコート城北パーク 0808号室(8階/1K)の賃貸物件(賃貸マンション)
大阪府大阪市旭区にあるウインズコート城北パーク 0808号室はガスコンロ、シューズボックス、2階以上、インターネット可、バイク置き場などが特徴です。最寄り駅のおおさか東線城北公園通駅から徒歩4分です。ウインズコート城北パーク 0808号室の詳細はミニミニ FC天六店までお気軽にお問い合わせください!
情報更新日:
次回更新予定日:
※次回更新予定日について:お店側では順次空室確認を行っていますが、次回更新予定日までに空室確認が行えない場合には、この物件情報は自動的に削除されます。
ウインズコート城北パーク 0808号室の賃貸物件部屋概要
家賃 |
6.35万円
初期費用を |
|---|---|
共益費 |
8,000円
入居可能時期 |
敷金/礼金 |
- / 71,500円 |
保証金/ |
- / - |
最寄駅 |
|
所在地 |
大阪府大阪市旭区赤川 |
部屋番号 |
0808号室 |
間取り |
1K(洋6) |
専有面積 |
22.36㎡ |
築年数 |
2023年3月(築3年) |
階数 |
8階部分(地上9階建) |
方位・位置 |
北西 / その他 |
物件種別 |
賃貸マンション |
構造 |
RC |
駐車場 |
- |
小学校学区 |
城北小学校 |
中学校学区 |
大宮中学校 |
他の空き部屋 |
***号室 ***号室 0304号室 ***号室 ***号室 0502号室 0606号室 ***号室 |
- 学区データについて
- ※学区データは必ずしも正確とは限りません。詳細に関しては最寄店舗または各自治体の教育委員会に必ずご確認ください。
ウインズコート城北パーク 0808号室の特徴
-
一人暮らしに人気の設備

-
カップルに人気の設備

-
家族に人気の設備

-
夫婦に人気の設備

-
三世代で人気の設備

-
セキュリティ対策重視

-
外で子どもと遊びたい

-
雨の日でも洗濯したい

-
オークション・通販が好き

-
ガーデニングが好き

契約条件
敷金が無料なため、初期費用が比較的安くなる傾向にあり、更新料が無料なので、長年お得に住み続けることができます。
セキュリティ
この物件の建物には、オートロックや防犯カメラや宅配ボックスが設置されており、来客時には居室内のテレビモニターにて訪問者の顔を確認することができます。
室内設備
システムキッチンには、2つ以上のガスコンロが備え付けられています。 トイレは、温水洗浄便座機能付きになります。 女性に嬉しい設備の独立した洗面化粧台があります。 洗濯に便利な設備として、室内洗濯機置場があります。浴室乾燥機も設置されているので、梅雨時の生乾き臭も比較的防ぐことができます。
居室状況
エアコンが設置されています。 インターネットも無料で入居後すぐ生活が始められます。 収納スペースとして、基本的な居室にクローゼットを設置、玄関にはシューズボックスがあります。
建物設備共用部分
居室外の専有スペースとして、洗濯物を干すなどの用途として利用できるバルコニーがあります。 建物の共用スペースに、日々の出入に便利なエレベーターや、いざという時の防犯カメラや、急な外出や不在がちのご家庭の荷物受け取りに便利な宅配ボックスが設置されています。 駐輪場、バイク置き場が利用できます。
周辺施設
この物件の学区は、城北小学校区・大宮中学校区です。
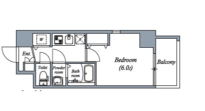
ウインズコート城北パーク 0808号室の間取り
間取り:1K
間取詳細:1K(洋6)
専有面積:22.36㎡
方位:北西
部屋位置:その他
ウインズコート城北パーク 0808号室の設備
キッチン
システムキッチン
ガスコンロ
ガスコンロ二口以上
バス・トイレ
バス・トイレ別
浴室乾燥機
温水洗浄便座
独立洗面台
玄関
TVモニタ付インターホン
オートロック
宅配ボックス
収納
クローゼット
シューズボックス
バルコニー
バルコニー
ルーフバルコニー
室内設備
エアコン
室内洗濯機置場
位置・立地
2階以上
インフラ
インターネット可
BS
CS
都市ガス
建物設備
エレベーター
防犯カメラ
駐輪場
バイク置き場
入居条件
即入居可
ライフステージ
一人暮らしに人気の設備
カップルに人気の設備
家族に人気の設備
夫婦に人気の設備
三世代で人気の設備
こだわり
セキュリティ対策重視
外で子どもと遊びたい
雨の日でも洗濯したい
趣味
オークション・通販が好き
ガーデニングが好き
お得な条件
更新料無料
インターネット無料
ウインズコート城北パーク 0808号室の賃貸契約情報
毎月支払う |
家賃6.35万円/月共益費8,000円/月 |
|---|---|
初期費用 |
敷金-礼金71,500円保証金-敷引き償却金- |
更新料 |
- |
鍵交換費用 |
- |
室内清掃費用 |
- |
契約時ルームクリーニング代(不課税) |
33,000円 |
カギ代 |
30,800円 |
スマサポコンシェル入会金 |
5,500円 |
駐車場料金 |
- |
損保・ |
借家賠付きの火災保険にご加入いただきます。 |
保証会社 |
加入要 保証会社利用料:スマサポ保証 ※大手法人相談可 |
契約期間 |
1年 |
入居可能日 |
即入居可 |
フリーレント期間 |
- |
取引形態 |
一般媒介 |
備考 |
- |
ウインズコート城北パーク 0808号室の建物情報
建物名称 |
ウインズコート城北パーク |
|---|---|
最寄駅 |
|
所在地 |
大阪府大阪市旭区赤川 |
階層 |
8階部分(地上9階建) |
構造 |
RC |
築年数 |
2023年3月(築3年) |
駐車場 |
- |
小学校学区 |
城北小学校 |
中学校学区 |
大宮中学校 |
- 学区データについて
- ※学区データは必ずしも正確とは限りません。詳細に関しては最寄店舗または各自治体の教育委員会に必ずご確認ください。
無料この物件に問い合わせ
- ウインズコート城北パーク 0808号室

-
6.35万円
(共益費
8,000円)
- 敷
- -
- 礼
- 71,500円
- 保
- -
- 償
- -
ウインズコート城北パーク 0808号室の物件のお問い合わせ先・取り扱い店舗
ミニミニ FC天六店
- アクセス
-
大阪メトロ 谷町線「天神橋筋六丁目駅」徒歩1分
大阪メトロ 堺筋線「天神橋筋六丁目駅」徒歩1分
阪急千里線「天神橋筋六丁目駅」徒歩1分
- 住所
- 〒531-0064 大阪府大阪市北区国分寺2-1-14 ACOM天六ビル1F
- 営業時間
- 10:00~18:00
- 定休日
- なし
- 営業エリア
- 大阪市北区,大阪市都島区,大阪市旭区,大阪市城東区,大阪市淀川区,大阪市中央区,大阪市福島区,大阪市西区,大阪市東淀川区、守口市
- 取引態様
- 賃貸仲介業



















