松ヶ丘中町戸建 号室(6DK)の賃貸物件(賃貸一戸建て)
大阪府河内長野市にある松ヶ丘中町戸建 号室はTVモニタ付インターホン、クローゼット、シューズボックス、ペット可・相談、即入居可などが特徴です。最寄り駅の南海高野線滝谷駅から徒歩11分です。松ヶ丘中町戸建 号室の詳細はハウスコム FC北野田店までお気軽にお問い合わせください!
情報更新日:
次回更新予定日:
※次回更新予定日について:お店側では順次空室確認を行っていますが、次回更新予定日までに空室確認が行えない場合には、この物件情報は自動的に削除されます。
松ヶ丘中町戸建 号室の賃貸物件部屋概要
家賃 |
7万円
初期費用を |
|---|---|
共益費 |
-
入居可能時期 |
敷金/礼金 |
- / - |
保証金/ |
- / - |
最寄駅 |
|
所在地 |
大阪府河内長野市松ケ丘中町 |
部屋番号 |
号室 |
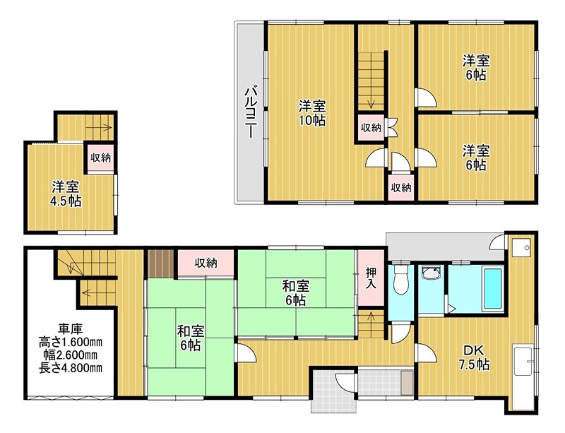
間取り |
6DK |
専有面積 |
113.10㎡ |
築年数 |
1968年3月(築58年) |
階数 |
地上2階建 |
方位・位置 |
ー / その他 |
物件種別 |
賃貸一戸建て |
構造 |
木造 |
駐車場 |
空有 賃料に含む |
小学校学区 |
楠小学校 |
中学校学区 |
千代田中学校 |
他の空き部屋 |
ー |
- 学区データについて
- ※学区データは必ずしも正確とは限りません。詳細に関しては最寄店舗または各自治体の教育委員会に必ずご確認ください。
松ヶ丘中町戸建 号室の特徴
契約条件
ペットの飼育もご相談ください。 敷金と礼金が無料なため、初期費用が比較的安くなる傾向にあります。 お支払いは、初期費用がクレジットカードにて決済できます。
セキュリティ
来客時には居室内のテレビモニターにて訪問者の顔を確認することができます。
居室状況
お部屋の床は、フローリングとなっています。収納スペースとして、基本的な居室にクローゼットを設置、玄関にはシューズボックスがあります。
建物設備共用部分
居室外の専有スペースとして、洗濯物を干すなどの用途として利用できるバルコニーがあります。 駐車場があり、無料で利用することができます。
周辺施設
この物件の学区は、楠小学校区・千代田中学校区です。近くには、徒歩11分(864m)でドラッグストアが、徒歩5分(387m)で河内長野松ケ丘郵便局があります。
松ヶ丘中町戸建 号室の間取り
間取り:6DK
間取詳細:6DK
専有面積:113.10㎡
方位:ー
部屋位置:その他
松ヶ丘中町戸建 号室の設備
バス・トイレ
バス・トイレ別
玄関
TVモニタ付インターホン
収納
クローゼット
シューズボックス
バルコニー
バルコニー
室内設備
フローリング
入居条件
ペット可・相談
即入居可
ライフステージ
一人暮らしに人気の設備
カップルに人気の設備
家族に人気の設備
夫婦に人気の設備
三世代で人気の設備
こだわり
洋室で暮らしたい
お得な条件
駐車場無料
初期費用カード決済可
松ヶ丘中町戸建 号室の賃貸契約情報
毎月支払う |
家賃7万円/月共益費- |
|---|---|
初期費用 |
敷金-礼金-保証金-敷引き償却金- |
更新料 |
- |
鍵交換費用 |
- |
室内清掃費用 |
- |
消臭・抗菌施工 |
30,800円 |
リロレント24 |
19,800円 |
駐車場料金 |
空有 賃料に含む |
損保・ |
借家賠付きの火災保険にご加入いただきます。 |
保証会社 |
加入要 保証会社:日本セーフティー 保証会社利用料:初回:家賃総額の100% 更新料:1.2万円/1年間 |
契約期間 |
2年 |
入居可能日 |
即入居可 |
フリーレント期間 |
- |
取引形態 |
仲介 |
備考 |
- |
松ヶ丘中町戸建 号室の建物情報
建物名称 |
松ヶ丘中町戸建 |
|---|---|
最寄駅 |
|
所在地 |
大阪府河内長野市松ケ丘中町 |
階層 |
地上2階建 |
構造 |
木造 |
築年数 |
1968年3月(築58年) |
駐車場 |
空有 賃料に含む |
小学校学区 |
楠小学校 |
中学校学区 |
千代田中学校 |
- 学区データについて
- ※学区データは必ずしも正確とは限りません。詳細に関しては最寄店舗または各自治体の教育委員会に必ずご確認ください。
無料この物件に問い合わせ
- 松ヶ丘中町戸建 号室

-
7万円
(共益費
-)
- 敷
- -
- 礼
- -
- 保
- -
- 償
- -
松ヶ丘中町戸建 号室の物件のお問い合わせ先・取り扱い店舗
ハウスコム FC北野田店
- アクセス
-
南海高野線「北野田駅」徒歩3分
南海高野線「狭山駅」徒歩16分
南海高野線「萩原天神駅」徒歩27分
- 住所
- 〒599-8123 大阪府堺市東区北野田1084 ベルヒル北野田119
- 営業時間
- 10:00~18:30
- 定休日
- 水曜日(夏季休暇・年末年始)
- 営業エリア
- 天王寺区・平野区・住吉区・東住吉区・浪速区・生野区 ・西成区・阿倍野区・堺市中区・北区・南区・堺区・東区・美原区・西区 大阪狭山市・富田林市・松原市・河内長野市
- 取引態様
- 賃貸仲介業・FC店
































