千里山東の完工年月(1986年8月)築の賃貸マンション ***号室(2階/1R)の賃貸物件(賃貸マンション)
大阪府吹田市にある千里山東の完工年月(1986年8月)築の賃貸マンション ***号室はTVモニタ付インターホン、バルコニー、エアコン、フローリング、照明器具付などが特徴です。最寄り駅の阪急千里線関大前駅から徒歩8分です。千里山東の完工年月(1986年8月)築の賃貸マンション ***号室の詳細はクラスモ FCJR吹田駅前店までお気軽にお問い合わせください!
情報更新日:
次回更新予定日:
※次回更新予定日について:お店側では順次空室確認を行っていますが、次回更新予定日までに空室確認が行えない場合には、この物件情報は自動的に削除されます。
千里山東の完工年月(1986年8月)築の賃貸マンション ***号室の賃貸物件部屋概要
家賃 |
4万円
初期費用を |
|---|---|
共益費 |
3,000円
入居可能時期 |
敷金/礼金 |
- / - |
保証金/ |
- / - |
最寄駅 |
|
所在地 |
大阪府吹田市千里山東 |
部屋番号 |
***号室 |
間取り |
1R(洋6) |
専有面積 |
18.90㎡ |
築年数 |
1986年8月(築40年) |
階数 |
2階部分(地上3階建) |
方位・位置 |
西 / 角部屋 |
物件種別 |
賃貸マンション |
構造 |
RC |
駐車場 |
無 |
小学校学区 |
千里第二小学校 |
中学校学区 |
第一中学校 |
他の空き部屋 |
ー |
- 学区データについて
- ※学区データは必ずしも正確とは限りません。詳細に関しては最寄店舗または各自治体の教育委員会に必ずご確認ください。
千里山東の完工年月(1986年8月)築の賃貸マンション ***号室の特徴
契約条件
敷金と礼金が無料なため、初期費用が比較的安くなる傾向にあります。
セキュリティ
来客時には居室内のテレビモニターにて訪問者の顔を確認することができます。
室内設備
IHコンロが備え付けられています。
居室状況
お部屋の床は、フローリングとなっており、エアコンが設置されています。 照明器具が備え付けられており、インターネットも無料で入居後すぐ生活が始められます。
建物設備共用部分
居室外の専有スペースとして、洗濯物を干すなどの用途として利用できるバルコニーがあります。 駐輪場、バイク置き場が利用できます。
周辺施設
この物件の学区は、千里第二小学校区・第一中学校区です。近くには、徒歩9分(719m)でドラッグストアが、徒歩10分(781m)で銀行があります。
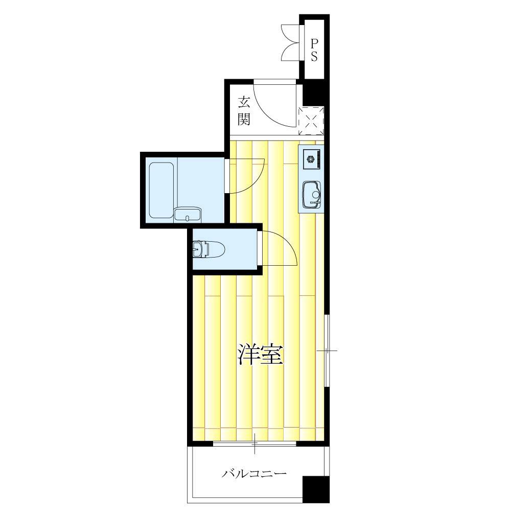
千里山東の完工年月(1986年8月)築の賃貸マンション ***号室の間取り
間取り:1R
間取詳細:1R(洋6)
専有面積:18.90㎡
方位:西
部屋位置:角部屋
千里山東の完工年月(1986年8月)築の賃貸マンション ***号室の設備
キッチン
IHコンロ
バス・トイレ
バス・トイレ別
玄関
TVモニタ付インターホン
バルコニー
バルコニー
室内設備
エアコン
フローリング
照明器具付
位置・立地
2階以上
角部屋
インフラ
インターネット可
CATV
オール電化
建物設備
駐輪場
バイク置き場
入居条件
即入居可
ライフステージ
一人暮らしに人気の設備
カップルに人気の設備
家族に人気の設備
夫婦に人気の設備
三世代で人気の設備
こだわり
洋室で暮らしたい
お得な条件
インターネット無料
千里山東の完工年月(1986年8月)築の賃貸マンション ***号室の賃貸契約情報
毎月支払う |
家賃4万円/月共益費3,000円/月 |
|---|---|
初期費用 |
敷金-礼金-保証金-敷引き償却金- |
更新料 |
- |
鍵交換費用 |
13,200円 |
室内清掃費用 |
33,000円 |
引落事務手数料 |
550円 |
駐車場料金 |
無 |
損保・ |
借家賠付きの火災保険にご加入いただきます。 |
保証会社 |
加入要 保証会社:その他 保証会社利用料:初回保証料:総賃料の50% 更新料:10,000円/年 |
契約期間 |
2年 |
入居可能日 |
即入居可 |
フリーレント期間 |
- |
取引形態 |
仲介 |
備考 |
新婚様・カップル様 大歓迎・応援中医療従事者様 大歓迎・応援中新社会人様 大歓迎・応援中関西大学・大和大学・大阪学院大学・大阪人間科学大学・大阪成蹊大学新入学生、在校生 大歓迎 |
千里山東の完工年月(1986年8月)築の賃貸マンション ***号室の建物情報
建物名称 |
千里山東の完工年月(1986年8月)築の賃貸マンション |
|---|---|
最寄駅 |
|
所在地 |
大阪府吹田市千里山東 |
階層 |
2階部分(地上3階建) |
構造 |
RC |
築年数 |
1986年8月(築40年) |
駐車場 |
無 |
小学校学区 |
千里第二小学校 |
中学校学区 |
第一中学校 |
- 学区データについて
- ※学区データは必ずしも正確とは限りません。詳細に関しては最寄店舗または各自治体の教育委員会に必ずご確認ください。
無料この物件に問い合わせ
- 千里山東の完工年月(1986年8月)築の賃貸マンション ***号室

-
4万円
(共益費
3,000円)
- 敷
- -
- 礼
- -
- 保
- -
- 償
- -
千里山東の完工年月(1986年8月)築の賃貸マンション ***号室の物件のお問い合わせ先・取り扱い店舗
クラスモ FCJR吹田駅前店
- アクセス
-
東海道本線(JR西日本)「吹田駅」徒歩2分
阪急千里線「吹田駅」徒歩13分
阪急千里線「豊津駅」徒歩23分
- 住所
- 〒564-0027 大阪府吹田市朝日町2番 さんくす2番館138号室
- 営業時間
- 10:00~19:00
- 定休日
- 水曜日
- 営業エリア
- 吹田市・摂津市・茨木市 ・東淀川区・淀川区・西淀川区・北区・福島区・中央区
- 取引態様
- 賃貸仲介業・物件売買業・FC店



































