トーシンフェニックス南阿佐ヶ谷弐番館 301号室(1K)の賃貸物件(賃貸マンション)
東京都杉並区にあるトーシンフェニックス南阿佐ヶ谷弐番館 301号室はガスコンロ二口以上、TVモニタ付インターホン、オートロック、フローリング、都市ガスなどが特徴です。最寄り駅の東京メトロ 丸ノ内線南阿佐ケ谷駅から徒歩7分です。トーシンフェニックス南阿佐ヶ谷弐番館 301号室の詳細はハウスコム 三鷹店までお気軽にお問い合わせください!
情報更新日:
次回更新予定日:
※次回更新予定日について:お店側では順次空室確認を行っていますが、次回更新予定日までに空室確認が行えない場合には、この物件情報は自動的に削除されます。
トーシンフェニックス南阿佐ヶ谷弐番館 301号室の賃貸物件部屋概要
家賃 |
7.5万円
初期費用を |
|---|---|
共益費 |
7,000円
入居可能時期 |
敷金/礼金 |
- / 75,000円 |
保証金/ |
82,000円 / - |
最寄駅 |
|
所在地 |
東京都杉並区梅里 |
部屋番号 |
301号室 |
間取り |
1K |
専有面積 |
18.94㎡ |
築年数 |
2005年5月(築21年) |
階数 |
地上9階建 |
方位・位置 |
西 / 角部屋 |
物件種別 |
賃貸マンション |
構造 |
RC |
駐車場 |
- |
小学校学区 |
堀之内小学校 |
中学校学区 |
松ノ木中学校 |
他の空き部屋 |
301号室 |
- 学区データについて
- ※学区データは必ずしも正確とは限りません。詳細に関しては最寄店舗または各自治体の教育委員会に必ずご確認ください。
トーシンフェニックス南阿佐ヶ谷弐番館 301号室の特徴
契約条件
敷金が無料なため、初期費用が比較的安くなる傾向にあり、更新料が無料なので、長年お得に住み続けることができます。
セキュリティ
この物件の建物には、オートロックや防犯カメラや宅配ボックスが設置されており、来客時には居室内のテレビモニターにて訪問者の顔を確認することができます。
室内設備
システムキッチンには、2つ以上のガスコンロが備え付けられています。 洗濯に便利な設備として、室内洗濯機置場があります。
居室状況
お部屋の床は、フローリングとなっており、エアコンが設置されています。 収納スペースとして、玄関にはシューズボックスがあります。
建物設備共用部分
居室外の専有スペースとして、洗濯物を干すなどの用途として利用できるバルコニーがあります。 建物の共用スペースに、日々の出入に便利なエレベーターや、いざという時の防犯カメラや、急な外出や不在がちのご家庭の荷物受け取りに便利な宅配ボックスが設置されています。 駐輪場、バイク置き場が利用できます。
周辺施設
この物件の学区は、堀之内小学校区・松ノ木中学校区です。
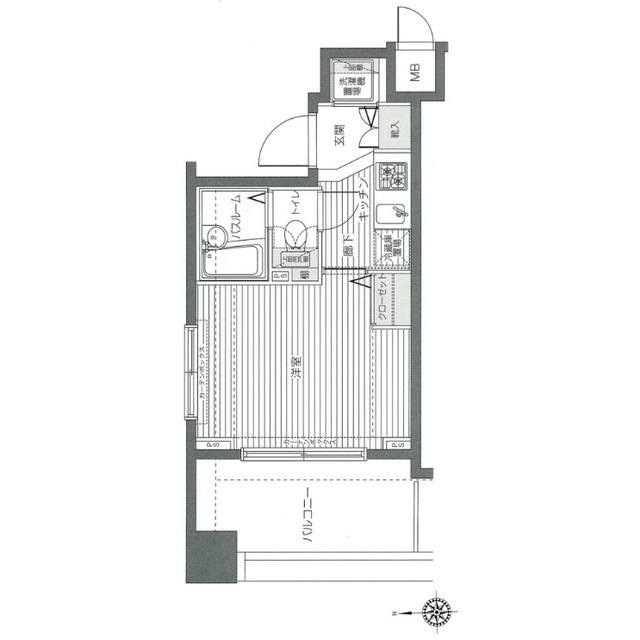
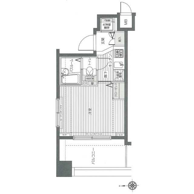
トーシンフェニックス南阿佐ヶ谷弐番館 301号室の間取り
間取り:1K
間取詳細:1K
専有面積:18.94㎡
方位:西
部屋位置:角部屋
トーシンフェニックス南阿佐ヶ谷弐番館 301号室の設備
キッチン
システムキッチン
ガスコンロ
ガスコンロ二口以上
バス・トイレ
バス・トイレ別
玄関
TVモニタ付インターホン
オートロック
宅配ボックス
収納
シューズボックス
バルコニー
バルコニー
ルーフバルコニー
室内設備
エアコン
フローリング
室内洗濯機置場
位置・立地
角部屋
インフラ
インターネット可
都市ガス
建物設備
エレベーター
防犯カメラ
駐輪場
バイク置き場
分譲賃貸
ライフステージ
一人暮らしに人気の設備
カップルに人気の設備
家族に人気の設備
夫婦に人気の設備
三世代で人気の設備
こだわり
外で子どもと遊びたい
雨の日でも洗濯したい
洋室で暮らしたい
趣味
ガーデニングが好き
お得な条件
更新料無料
トーシンフェニックス南阿佐ヶ谷弐番館 301号室の賃貸契約情報
毎月支払う |
家賃7.5万円/月共益費7,000円/月 |
|---|---|
初期費用 |
敷金-礼金75,000円保証金82,000円敷引き償却金- |
更新料 |
- |
鍵交換費用 |
- |
室内清掃費用 |
- |
駐車場料金 |
- |
損保・ |
借家賠付きの火災保険にご加入いただきます。 |
保証会社 |
|
契約期間 |
- |
入居可能日 |
2026年02月上旬 |
フリーレント期間 |
- |
取引形態 |
一般媒介 |
備考 |
- |
トーシンフェニックス南阿佐ヶ谷弐番館 301号室の建物情報
建物名称 |
トーシンフェニックス南阿佐ヶ谷弐番館 |
|---|---|
最寄駅 |
|
所在地 |
東京都杉並区梅里 |
階層 |
地上9階建 |
構造 |
RC |
築年数 |
2005年5月(築21年) |
駐車場 |
- |
小学校学区 |
堀之内小学校 |
中学校学区 |
松ノ木中学校 |
- 学区データについて
- ※学区データは必ずしも正確とは限りません。詳細に関しては最寄店舗または各自治体の教育委員会に必ずご確認ください。
無料この物件に問い合わせ
- トーシンフェニックス南阿佐ヶ谷弐番館 301号室

-
7.5万円
(共益費
7,000円)
- 敷
- -
- 礼
- 75,000円
- 保
- 82,000円
- 償
- -
トーシンフェニックス南阿佐ヶ谷弐番館 301号室の物件のお問い合わせ先・取り扱い店舗
ハウスコム 三鷹店
- アクセス
-
中央本線(JR東日本)「三鷹駅」南口徒歩1分
- 住所
- 〒181-0013 東京都三鷹市下連雀3丁目45−2 麻沼ビル 1階
- 営業時間
- 10:00~18:00
- 定休日
- なし
- 営業エリア
- 三鷹市、武蔵野市、小金井市、杉並区、調布市、西東京市、練馬区、世田谷区
- 取引態様
- 賃貸仲介業














