BPRレジデンス東日暮里 0502号室(5階/1DK)の賃貸物件(賃貸マンション)
東京都荒川区にあるBPRレジデンス東日暮里 0502号室は2階以上、防犯カメラ、24時間ゴミ出しOK、駐輪場、即入居可などが特徴です。最寄り駅の東京メトロ 日比谷線三ノ輪駅から徒歩9分です。BPRレジデンス東日暮里 0502号室の詳細はハウスコム 王子店までお気軽にお問い合わせください!
情報更新日:
次回更新予定日:
※次回更新予定日について:お店側では順次空室確認を行っていますが、次回更新予定日までに空室確認が行えない場合には、この物件情報は自動的に削除されます。
BPRレジデンス東日暮里 0502号室の賃貸物件部屋概要
家賃 |
11.8万円
初期費用を |
|---|---|
共益費 |
15,000円
入居可能時期 |
敷金/礼金 |
1ヶ月 / - |
保証金/ |
- / - |
最寄駅 |
|
所在地 |
東京都荒川区東日暮里 |
部屋番号 |
0502号室 |
間取り |
1DK(DK6・洋4.3) |
専有面積 |
25.52㎡ |
築年数 |
新築 |
階数 |
5階部分(地上10階建) |
方位・位置 |
西 / その他 |
物件種別 |
賃貸マンション |
構造 |
RC |
駐車場 |
無 |
小学校学区 |
第三日暮里小学校 |
中学校学区 |
諏訪台中学校 |
他の空き部屋 |
0204号室 0301号室 0304号室 0402号室 0403号室 0501号室 0503号室 0601号室 0604号室 0704号室 1004号室 204号室 301号室 304号室 604号室 704号室 802号室 |
- 学区データについて
- ※学区データは必ずしも正確とは限りません。詳細に関しては最寄店舗または各自治体の教育委員会に必ずご確認ください。
BPRレジデンス東日暮里 0502号室の特徴
契約条件
礼金が無料なため、初期費用が比較的安くなる傾向にあります。
セキュリティ
この物件の建物には、オートロックや防犯カメラや宅配ボックスが設置されております。
室内設備
お風呂とトイレは別です。お風呂には、追い焚き機能が備わっています。 トイレは、温水洗浄便座機能付きになります。 女性に嬉しい設備の独立した洗面化粧台があります。 洗濯に便利な設備として、室内洗濯機置場があります。浴室乾燥機も設置されているので、梅雨時の生乾き臭も比較的防ぐことができます。
居室状況
エアコンが設置されています。 インターネットも無料で入居後すぐ生活が始められます。
建物設備共用部分
建物の共用スペースに、いざという時の防犯カメラや、急な外出や不在がちのご家庭の荷物受け取りに便利な宅配ボックスや、居室内を常に清潔に保てる24時間利用可能なゴミ捨て置き場が設置されています。 駐輪場が利用できます。
周辺施設
この物件の学区は、第三日暮里小学校区・諏訪台中学校区です。
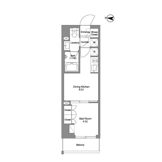
BPRレジデンス東日暮里 0502号室の間取り
間取り:1DK
間取詳細:1DK(DK6・洋4.3)
専有面積:25.52㎡
方位:西
部屋位置:その他
BPRレジデンス東日暮里 0502号室の設備
バス・トイレ
バス・トイレ別
追い焚き
浴室乾燥機
温水洗浄便座
独立洗面台
玄関
オートロック
宅配ボックス
室内設備
エアコン
室内洗濯機置場
位置・立地
2階以上
建物設備
防犯カメラ
24時間ゴミ出しOK
駐輪場
入居条件
即入居可
ライフステージ
一人暮らしに人気の設備
カップルに人気の設備
家族に人気の設備
夫婦に人気の設備
三世代で人気の設備
こだわり
タイパ重視
雨の日でも洗濯したい
趣味
オークション・通販が好き
お得な条件
インターネット無料
BPRレジデンス東日暮里 0502号室の賃貸契約情報
毎月支払う |
家賃11.8万円/月共益費15,000円/月 |
|---|---|
初期費用 |
敷金1ヶ月 (11.8万円)礼金-保証金-敷引き償却金- |
更新料 |
118,000円 |
鍵交換費用 |
- |
室内清掃費用 |
- |
駐車場料金 |
無 |
損保・ |
借家賠付きの火災保険にご加入いただきます。 |
保証会社 |
加入要 保証会社利用料:エポスカード(RP) 保証料:賃料等の50%(最低2万)、月額保証料:賃料等の1%(更新料無) |
契約期間 |
2年 |
入居可能日 |
即入居可 |
フリーレント期間 |
- |
取引形態 |
一般媒介 |
備考 |
清掃費:38500円(退去時請求).エアコン清掃費:11000円(退去時請求) |
BPRレジデンス東日暮里 0502号室の建物情報
建物名称 |
BPRレジデンス東日暮里 |
|---|---|
最寄駅 |
|
所在地 |
東京都荒川区東日暮里 |
階層 |
5階部分(地上10階建) |
構造 |
RC |
築年数 |
新築 |
駐車場 |
無 |
小学校学区 |
第三日暮里小学校 |
中学校学区 |
諏訪台中学校 |
- 学区データについて
- ※学区データは必ずしも正確とは限りません。詳細に関しては最寄店舗または各自治体の教育委員会に必ずご確認ください。
無料この物件に問い合わせ
- BPRレジデンス東日暮里 0502号室

-
11.8万円
(共益費
15,000円)
- 敷
- 1ヶ月
- 礼
- -
- 保
- -
- 償
- -
BPRレジデンス東日暮里 0502号室の物件のお問い合わせ先・取り扱い店舗
ハウスコム 王子店
- アクセス
-
京浜東北・根岸線「王子駅」北口・中央口徒歩1分
- 住所
- 〒114-0002 東京都北区王子1丁目5−2 テング第四 1階
- 営業時間
- 10:00~18:00
- 定休日
- 水曜日(年末年始は休業)
- 営業エリア
- 北区,文京区,荒川区,足立区,板橋区,豊島区,川口市
- 取引態様
- 賃貸仲介業




























