メインステージ浮間舟渡 203号室(2階/2K)の賃貸物件(賃貸マンション)
東京都板橋区にあるメインステージ浮間舟渡 203号室はバルコニー、エアコン、室内洗濯機置場、都市ガス、24時間ゴミ出しOKなどが特徴です。最寄り駅の埼京線浮間舟渡駅から徒歩9分です。メインステージ浮間舟渡 203号室の詳細はハウスコム 川口店までお気軽にお問い合わせください!
情報更新日:
次回更新予定日:
※次回更新予定日について:お店側では順次空室確認を行っていますが、次回更新予定日までに空室確認が行えない場合には、この物件情報は自動的に削除されます。
メインステージ浮間舟渡 203号室の賃貸物件部屋概要
家賃 |
10.15万円
初期費用を |
|---|---|
共益費 |
15,000円
入居可能時期 |
敷金/礼金 |
- / 1ヶ月 |
保証金/ |
- / - |
最寄駅 |
|
所在地 |
東京都板橋区舟渡 |
部屋番号 |
203号室 |
間取り |
2K(洋2.8・洋5) |
専有面積 |
25.57㎡ |
築年数 |
新築 |
階数 |
2階部分(地上7階建) |
方位・位置 |
北 / その他 |
物件種別 |
賃貸マンション |
構造 |
RC |
駐車場 |
- |
小学校学区 |
舟渡小学校 |
中学校学区 |
志村第五中学校 |
他の空き部屋 |
101号室 102号室 201号室 202号室 204号室 205号室 206号室 301号室 302号室 303号室 304号室 305号室 306号室 401号室 402号室 403号室 404号室 405号室 406号室 501号室 502号室 503号室 504号室 505号室 506号室 602号室 603号室 604号室 605号室 704号室 |
- 学区データについて
- ※学区データは必ずしも正確とは限りません。詳細に関しては最寄店舗または各自治体の教育委員会に必ずご確認ください。
メインステージ浮間舟渡 203号室の特徴
契約条件
ペットの飼育もご相談ください。 敷金が無料なため、初期費用が比較的安くなる傾向にあります。
セキュリティ
この物件の建物には、オートロックや防犯カメラや宅配ボックスが設置されております。
室内設備
システムキッチンが備え付けられています。 トイレは、温水洗浄便座機能付きになります。 洗濯に便利な設備として、室内洗濯機置場があります。
居室状況
エアコンが設置されています。 照明器具が備え付けられており、インターネットも無料で入居後すぐ生活が始められます。 収納スペースとして、基本的な居室にクローゼットを設置、玄関にはシューズボックスがあります。
建物設備共用部分
居室外の専有スペースとして、洗濯物を干すなどの用途として利用できるバルコニーがあります。 建物の共用スペースに、日々の出入に便利なエレベーターや、いざという時の防犯カメラや、急な外出や不在がちのご家庭の荷物受け取りに便利な宅配ボックスや、居室内を常に清潔に保てる24時間利用可能なゴミ捨て置き場が設置されています。
周辺施設
この物件の学区は、舟渡小学校区・志村第五中学校区です。
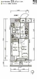
メインステージ浮間舟渡 203号室の間取り
間取り:2K
間取詳細:2K(洋2.8・洋5)
専有面積:25.57㎡
方位:北
部屋位置:その他
メインステージ浮間舟渡 203号室の設備
キッチン
システムキッチン
バス・トイレ
バス・トイレ別
温水洗浄便座
玄関
オートロック
宅配ボックス
収納
クローゼット
シューズボックス
バルコニー
バルコニー
ルーフバルコニー
室内設備
エアコン
室内洗濯機置場
照明器具付
位置・立地
2階以上
インフラ
都市ガス
建物設備
エレベーター
防犯カメラ
24時間ゴミ出しOK
入居条件
ペット可・相談
即入居可
ライフステージ
一人暮らしに人気の設備
カップルに人気の設備
家族に人気の設備
夫婦に人気の設備
三世代で人気の設備
こだわり
外で子どもと遊びたい
雨の日でも洗濯したい
趣味
オークション・通販が好き
ガーデニングが好き
お得な条件
インターネット無料
メインステージ浮間舟渡 203号室の賃貸契約情報
毎月支払う |
家賃10.15万円/月共益費15,000円/月 |
|---|---|
初期費用 |
敷金-礼金1ヶ月 (10.15万円)保証金-敷引き償却金- |
更新料 |
152,250円 |
鍵交換費用 |
- |
室内清掃費用 |
- |
退去時鍵交換費用(契約時請求) |
29,700円 |
AMLクラブサポート費用(契約時請求) |
16,500円 |
ルームクリーニング費用(退去時請求) |
49,500円 |
駐車場料金 |
- |
損保・ |
借家賠付きの火災保険にご加入いただきます。 |
保証会社 |
加入要 保証会社利用料:賃料と管理費の50%~ |
契約期間 |
2年 |
入居可能日 |
即入居可 |
フリーレント期間 |
- |
取引形態 |
一般媒介 |
備考 |
- |
メインステージ浮間舟渡 203号室の建物情報
建物名称 |
メインステージ浮間舟渡 |
|---|---|
最寄駅 |
|
所在地 |
東京都板橋区舟渡 |
階層 |
2階部分(地上7階建) |
構造 |
RC |
築年数 |
新築 |
駐車場 |
- |
小学校学区 |
舟渡小学校 |
中学校学区 |
志村第五中学校 |
- 学区データについて
- ※学区データは必ずしも正確とは限りません。詳細に関しては最寄店舗または各自治体の教育委員会に必ずご確認ください。
無料この物件に問い合わせ
- メインステージ浮間舟渡 203号室

-
10.15万円
(共益費
15,000円)
- 敷
- -
- 礼
- 1ヶ月
- 保
- -
- 償
- -
メインステージ浮間舟渡 203号室の物件のお問い合わせ先・取り扱い店舗
ハウスコム 川口店
- アクセス
-
京浜東北・根岸線「川口駅」東口徒歩1分
- 住所
- 〒332-0017 埼玉県川口市栄町3丁目5−1 高梨ビル 3F
- 営業時間
- 10:00~18:00
- 定休日
- なし(年末年始休業)
- 営業エリア
- 川口市・戸田市・蕨市・さいたま市・東京都北区
- 取引態様
- 賃貸仲介業




















