森田ビル ***号室(3階/2LDK)の賃貸物件(賃貸マンション)
大阪府大阪市東成区にある森田ビル ***号室はクローゼット、バルコニー、フローリング、照明器具付、2人入居可などが特徴です。最寄り駅の大阪メトロ 中央線森ノ宮駅から徒歩4分です。森田ビル ***号室の詳細はハウスコム FC森ノ宮駅前店までお気軽にお問い合わせください!
情報更新日:
次回更新予定日:
※次回更新予定日について:お店側では順次空室確認を行っていますが、次回更新予定日までに空室確認が行えない場合には、この物件情報は自動的に削除されます。
森田ビル ***号室の賃貸物件部屋概要
家賃 |
9万円
初期費用を |
|---|---|
共益費 |
-
入居可能時期 |
敷金/礼金 |
200,000円 / - |
保証金/ |
- / 100,000円 |
最寄駅 |
|
所在地 |
大阪府大阪市東成区中道 |
部屋番号 |
***号室 |
間取り |
2LDK(LDK14・和6・和6) |
専有面積 |
56.20㎡ |
築年数 |
1980年1月(築46年) |
階数 |
3階部分(地上5階建) |
方位・位置 |
南 / その他 |
物件種別 |
賃貸マンション |
構造 |
鉄骨造 |
駐車場 |
近隣 19,800円 |
小学校学区 |
北中道小学校 |
中学校学区 |
玉津中学校 |
他の空き部屋 |
ー |
- 学区データについて
- ※学区データは必ずしも正確とは限りません。詳細に関しては最寄店舗または各自治体の教育委員会に必ずご確認ください。
森田ビル ***号室の特徴
契約条件
この物件は、2人入居もご契約できます。 礼金が無料なため、初期費用が比較的安くなる傾向にあります。 お支払いは、初期費用がクレジットカードにて決済できます。
セキュリティ
この物件の建物には、オートロックや防犯カメラが設置されております。
室内設備
システムキッチンには、ガスコンロが設置されており、キッチン設備として食洗機が備え付けられています。 トイレは、温水洗浄便座機能付きになります。 女性に嬉しい設備のシャワーの付いている洗面化粧台があります。 洗濯に便利な設備として、室内洗濯機置場があります。
居室状況
居室には、和室の居室もあり、子育てやリラックススペースとしての利用もできます。 お部屋の床は、フローリングとなっています。照明器具が備え付けられており、入居後すぐ生活が始められます。 収納スペースとして、基本的な居室にクローゼットを設置、玄関にはシューズボックスがあります。
建物設備共用部分
居室外の専有スペースとして、洗濯物を干すなどの用途として利用できるバルコニーがあります。 建物の共用スペースに、いざという時の防犯カメラや、居室内を常に清潔に保てる24時間利用可能なゴミ捨て置き場が設置されています。
周辺施設
この物件の学区は、北中道小学校区・玉津中学校区です。近くには、徒歩2分(152m)でドラッグストアが、徒歩4分(246m)で公園が、徒歩2分(150m)で銀行があります。
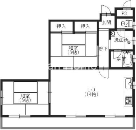
森田ビル ***号室の間取り
間取り:2LDK
間取詳細:2LDK(LDK14・和6・和6)
専有面積:56.20㎡
方位:南
部屋位置:その他
森田ビル ***号室の設備
キッチン
システムキッチン
ガスコンロ
食洗機
バス・トイレ
バス・トイレ別
温水洗浄便座
独立洗面台
シャワー付洗面化粧台
玄関
オートロック
収納
クローゼット
シューズボックス
バルコニー
バルコニー
室内設備
フローリング
室内洗濯機置場
照明器具付
和室あり
位置・立地
2階以上
南向き
インフラ
インターネット可
CATV
都市ガス
建物設備
防犯カメラ
24時間ゴミ出しOK
24時間換気システム
入居条件
2人入居可
オンライン相談可
オンライン内見可
即入居可
ライフステージ
一人暮らしに人気の設備
カップルに人気の設備
家族に人気の設備
夫婦に人気の設備
三世代で人気の設備
こだわり
雨の日でも洗濯したい
洋室で暮らしたい
自炊が多めなあなたに
お得な条件
初期費用カード決済可
森田ビル ***号室の賃貸契約情報
毎月支払う |
家賃9万円/月共益費- |
|---|---|
初期費用 |
敷金200,000円礼金-保証金-敷引き償却金100,000円 |
更新料 |
- |
鍵交換費用 |
- |
室内清掃費用 |
- |
駐車場料金 |
近隣 19,800円 |
損保・ |
借家賠付きの火災保険にご加入いただきます。 |
保証会社 |
加入要 保証会社:保証会社 保証会社利用料:初回契約時:50% |
契約期間 |
2年 |
入居可能日 |
即入居可 |
フリーレント期間 |
- |
取引形態 |
仲介 |
備考 |
インターネット掲載物件に関わらず、大阪市内全域のお部屋探しが可能となっております!複数の業者にお問い合わせすることなく弊社にて正確な最新の空室状況をご確認させていただきます♪初期費用分割決算も可能となっており、ご都合に合わせて支払い回数も選べます!現地で待ち合わせ、営業時間外のご案内、保証人なし、法人契約、初期費用等その他何でもご相談下さい!インターネットに掲載していない非公開物件ご用意してます! |
森田ビル ***号室の建物情報
建物名称 |
森田ビル |
|---|---|
最寄駅 |
|
所在地 |
大阪府大阪市東成区中道 |
階層 |
3階部分(地上5階建) |
構造 |
鉄骨造 |
築年数 |
1980年1月(築46年) |
駐車場 |
近隣 19,800円 |
小学校学区 |
北中道小学校 |
中学校学区 |
玉津中学校 |
- 学区データについて
- ※学区データは必ずしも正確とは限りません。詳細に関しては最寄店舗または各自治体の教育委員会に必ずご確認ください。
無料この物件に問い合わせ
- 森田ビル ***号室

-
9万円
(共益費
-)
- 敷
- 200,000円
- 礼
- -
- 保
- -
- 償
- 100,000円
森田ビル ***号室の物件のお問い合わせ先・取り扱い店舗
ハウスコム FC森ノ宮駅前店
- アクセス
-
大阪環状線「森ノ宮駅」徒歩1分
大阪メトロ 中央線「森ノ宮駅」徒歩4分
大阪環状線「玉造駅」徒歩12分
- 住所
- 〒540-0003 大阪府大阪市中央区森ノ宮中央1丁目2‐21
- 営業時間
- 10:00~19:00
- 定休日
- なし(年末年始を除く)
- 営業エリア
- 大阪市全域 都島区・福島区・此花区・西区・港区・大正区・天王寺区・浪速区 ・西淀川区・東淀川区・東成区・生野区・旭区・城東区 ・阿倍野区・住吉区・東住吉区・西成区・淀川区 ・鶴見区・住之江区・平野区・北区・中央区
- 取引態様
- 賃貸仲介業・FC店

















