Amavel大森 103号室(1階/1K)の賃貸物件(賃貸マンション)
東京都大田区にあるAmavel大森 103号室はガスコンロ二口以上、温水洗浄便座、シャワー付洗面化粧台、TVモニタ付インターホン、オンライン相談可などが特徴です。最寄り駅の京浜東北・根岸線大森駅から徒歩11分です。Amavel大森 103号室の詳細はハウスコム 蒲田店までお気軽にお問い合わせください!
情報更新日:
次回更新予定日:
※次回更新予定日について:お店側では順次空室確認を行っていますが、次回更新予定日までに空室確認が行えない場合には、この物件情報は自動的に削除されます。
Amavel大森 103号室の賃貸物件部屋概要
家賃 |
6.6万円
初期費用を |
|---|---|
共益費 |
10,000円
入居可能時期 |
敷金/礼金 |
1ヶ月 / 1ヶ月 |
保証金/ |
- / - |
最寄駅 |
|
所在地 |
東京都大田区大森北 |
部屋番号 |
103号室 |
間取り |
1K |
専有面積 |
20.77㎡ |
築年数 |
2009年7月(築17年) |
階数 |
1階部分(地上7階建) |
方位・位置 |
西 / その他 |
物件種別 |
賃貸マンション |
構造 |
RC |
駐車場 |
- |
小学校学区 |
開桜小学校 |
中学校学区 |
大森第二中学校 |
他の空き部屋 |
303号室 |
- 学区データについて
- ※学区データは必ずしも正確とは限りません。詳細に関しては最寄店舗または各自治体の教育委員会に必ずご確認ください。
Amavel大森 103号室の特徴
契約条件
更新料が無料なので、長年お得に住み続けることができます。
セキュリティ
この物件の建物には、オートロックが設置されており、来客時には居室内のテレビモニターにて訪問者の顔を確認することができます。
室内設備
2つ以上のガスコンロが備え付けられています。 トイレは、温水洗浄便座機能付きになります。 女性に嬉しい設備のシャワーの付いている洗面化粧台があります。 洗濯に便利な設備として、室内洗濯機置場があります。
居室状況
お部屋の床は、フローリングとなっており、エアコンが設置されています。 収納スペースとして、基本的な居室にクローゼットがあります。
周辺施設
この物件の学区は、開桜小学校区・大森第二中学校区です。
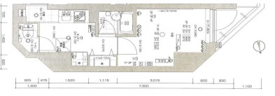
Amavel大森 103号室の間取り
間取り:1K
間取詳細:1K
専有面積:20.77㎡
方位:西
部屋位置:その他
Amavel大森 103号室の設備
キッチン
ガスコンロ
ガスコンロ二口以上
バス・トイレ
バス・トイレ別
温水洗浄便座
独立洗面台
シャワー付洗面化粧台
玄関
TVモニタ付インターホン
オートロック
収納
クローゼット
室内設備
エアコン
フローリング
室内洗濯機置場
位置・立地
1階
インフラ
インターネット可
都市ガス
建物設備
分譲賃貸
入居条件
オンライン相談可
オンライン内見可
即入居可
ライフステージ
一人暮らしに人気の設備
カップルに人気の設備
家族に人気の設備
夫婦に人気の設備
三世代で人気の設備
こだわり
身だしなみに気をつかいたい
雨の日でも洗濯したい
洋室で暮らしたい
お得な条件
更新料無料
Amavel大森 103号室の賃貸契約情報
毎月支払う |
家賃6.6万円/月共益費10,000円/月 |
|---|---|
初期費用 |
敷金1ヶ月 (6.6万円)礼金1ヶ月 (6.6万円)保証金-敷引き償却金- |
更新料 |
- |
鍵交換費用 |
- |
室内清掃費用 |
- |
駐車場料金 |
- |
損保・ |
借家賠付きの火災保険にご加入いただきます。 |
保証会社 |
加入要 保証会社利用料:月額総額の①50% ②100% 保証会社更新料:①15,000円 ②22,000円 |
契約期間 |
- |
入居可能日 |
即入居可 |
フリーレント期間 |
- |
取引形態 |
一般媒介 |
備考 |
契約開始日から1年未満に解約申し入れの場合は1ヶ月分賃料及び管理費相当額の短期解約違約金が発生いたします。 |
Amavel大森 103号室の建物情報
建物名称 |
Amavel大森 |
|---|---|
最寄駅 |
|
所在地 |
東京都大田区大森北 |
階層 |
1階部分(地上7階建) |
構造 |
RC |
築年数 |
2009年7月(築17年) |
駐車場 |
- |
小学校学区 |
開桜小学校 |
中学校学区 |
大森第二中学校 |
- 学区データについて
- ※学区データは必ずしも正確とは限りません。詳細に関しては最寄店舗または各自治体の教育委員会に必ずご確認ください。
無料この物件に問い合わせ
- Amavel大森 103号室

-
6.6万円
(共益費
10,000円)
- 敷
- 1ヶ月
- 礼
- 1ヶ月
- 保
- -
- 償
- -
Amavel大森 103号室の物件のお問い合わせ先・取り扱い店舗
ハウスコム 蒲田店
- アクセス
-
京浜東北・根岸線「蒲田駅」西口徒歩1分
- 住所
- 〒144-0051 東京都大田区西蒲田7丁目5−8 コパンビル 1階
- 営業時間
- 10:00~18:00
- 定休日
- なし
- 営業エリア
- 大田区、品川区、川崎市
- 取引態様
- 賃貸仲介業

















