オーパスホームズ大泉学園Ⅰ 0602号室(6階/1LDK)の賃貸物件(賃貸マンション)
東京都練馬区にあるオーパスホームズ大泉学園Ⅰ 0602号室はガスコンロ二口以上、オートロック、宅配ボックス、防犯カメラ、オンライン相談可などが特徴です。最寄り駅の西武池袋線・豊島線大泉学園駅から徒歩4分です。オーパスホームズ大泉学園Ⅰ 0602号室の詳細はハウスコム ひばりヶ丘店までお気軽にお問い合わせください!
情報更新日:
次回更新予定日:
※次回更新予定日について:お店側では順次空室確認を行っていますが、次回更新予定日までに空室確認が行えない場合には、この物件情報は自動的に削除されます。
オーパスホームズ大泉学園Ⅰ 0602号室の賃貸物件部屋概要
家賃 |
16.8万円
初期費用を |
|---|---|
共益費 |
9,000円
入居可能時期 |
敷金/礼金 |
- / - |
保証金/ |
- / - |
最寄駅 |
|
所在地 |
東京都練馬区東大泉 |
部屋番号 |
0602号室 |
間取り |
1LDK(LDK10・洋5.1) |
専有面積 |
41.04㎡ |
築年数 |
2023年9月(築3年) |
階数 |
6階部分(地上14階建) |
方位・位置 |
南西 / その他 |
物件種別 |
賃貸マンション |
構造 |
RC |
駐車場 |
- |
小学校学区 |
大泉小学校 |
中学校学区 |
大泉中学校 |
他の空き部屋 |
0401号室 0603号室 0801号室 0901号室 1002号室 1101号室 |
- 学区データについて
- ※学区データは必ずしも正確とは限りません。詳細に関しては最寄店舗または各自治体の教育委員会に必ずご確認ください。
オーパスホームズ大泉学園Ⅰ 0602号室の特徴
-
一人暮らしに人気の設備

-
カップルに人気の設備

-
家族に人気の設備

-
夫婦に人気の設備

-
三世代で人気の設備

-
セキュリティ対策重視

-
外で子どもと遊びたい

-
雨の日でも洗濯したい

-
洋室で暮らしたい

-
服やおしゃれが好き

-
ガーデニングが好き

契約条件
この物件は、2人入居もご契約できます。 ペットの飼育もご相談ください。 敷金と礼金が無料なため、初期費用が比較的安くなる傾向にあります。
セキュリティ
この物件の建物には、オートロックや防犯カメラや宅配ボックスが設置されており、来客時には居室内のテレビモニターにて訪問者の顔を確認することができます。
室内設備
システムキッチンには、2つ以上のガスコンロが備え付けられています。 お風呂とトイレは別です。お風呂には、追い焚き機能が備わっています。 トイレは、温水洗浄便座機能付きになります。 女性に嬉しい設備の独立した洗面化粧台があります。 洗濯に便利な設備として、室内洗濯機置場があります。浴室乾燥機も設置されているので、梅雨時の生乾き臭も比較的防ぐことができます。
居室状況
お部屋の床は、フローリングとなっており、エアコンが設置されています。 照明器具が備え付けられており、入居後すぐ生活が始められます。 収納スペースとして、基本的な居室にクローゼットを設置、通常よりも収納力の高いウォークインクローゼット、玄関にはシューズボックスがあります。
建物設備共用部分
居室外の専有スペースとして、洗濯物を干すなどの用途として利用できるバルコニーがあります。 建物の共用スペースに、日々の出入に便利なエレベーターや、いざという時の防犯カメラや、急な外出や不在がちのご家庭の荷物受け取りに便利な宅配ボックスが設置されています。 駐輪場、バイク置き場が利用できます。
周辺施設
この物件の学区は、大泉小学校区・大泉中学校区です。
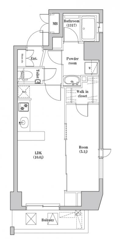
オーパスホームズ大泉学園Ⅰ 0602号室の間取り
間取り:1LDK
間取詳細:1LDK(LDK10・洋5.1)
専有面積:41.04㎡
方位:南西
部屋位置:その他
オーパスホームズ大泉学園Ⅰ 0602号室の設備
キッチン
システムキッチン
ガスコンロ
ガスコンロ二口以上
バス・トイレ
バス・トイレ別
追い焚き
浴室乾燥機
温水洗浄便座
独立洗面台
玄関
TVモニタ付インターホン
オートロック
宅配ボックス
収納
クローゼット
ウォークインクローゼット
シューズボックス
バルコニー
バルコニー
ルーフバルコニー
室内設備
エアコン
フローリング
室内洗濯機置場
照明器具付
位置・立地
2階以上
インフラ
インターネット可
BS
CS
都市ガス
建物設備
エレベーター
防犯カメラ
駐輪場
バイク置き場
入居条件
ペット可・相談
2人入居可
オンライン相談可
オンライン内見可
ライフステージ
一人暮らしに人気の設備
カップルに人気の設備
家族に人気の設備
夫婦に人気の設備
三世代で人気の設備
こだわり
セキュリティ対策重視
外で子どもと遊びたい
雨の日でも洗濯したい
洋室で暮らしたい
趣味
服やおしゃれが好き
ガーデニングが好き
オーパスホームズ大泉学園Ⅰ 0602号室の賃貸契約情報
毎月支払う |
家賃16.8万円/月共益費9,000円/月 |
|---|---|
初期費用 |
敷金-礼金-保証金-敷引き償却金- |
更新料 |
168,000円 |
鍵交換費用 |
27,500円 |
室内清掃費用 |
- |
カギ代 |
27,500円 |
退去時RC代 |
55,000円 |
駐車場料金 |
- |
損保・ |
借家賠付きの火災保険にご加入いただきます。 |
保証会社 |
加入要 保証会社:エポスカード 保証会社利用料:初回:40%、月次:無、更新:10000円/1年 or 14000円/1年 |
契約期間 |
2年 |
入居可能日 |
即入居可 |
フリーレント期間 |
- |
取引形態 |
一般媒介 |
備考 |
ペット飼育時敷金1か月追加、犬猫いずれか1匹(成長時体長50㎝以下、10キロ以下) |
オーパスホームズ大泉学園Ⅰ 0602号室の建物情報
建物名称 |
オーパスホームズ大泉学園Ⅰ |
|---|---|
最寄駅 |
|
所在地 |
東京都練馬区東大泉 |
階層 |
6階部分(地上14階建) |
構造 |
RC |
築年数 |
2023年9月(築3年) |
駐車場 |
- |
小学校学区 |
大泉小学校 |
中学校学区 |
大泉中学校 |
- 学区データについて
- ※学区データは必ずしも正確とは限りません。詳細に関しては最寄店舗または各自治体の教育委員会に必ずご確認ください。
無料この物件に問い合わせ
- オーパスホームズ大泉学園Ⅰ 0602号室

-
16.8万円
(共益費
9,000円)
- 敷
- -
- 礼
- -
- 保
- -
- 償
- -
オーパスホームズ大泉学園Ⅰ 0602号室の物件のお問い合わせ先・取り扱い店舗
ハウスコム ひばりヶ丘店
- アクセス
-
西武池袋線・豊島線「ひばりヶ丘駅」徒歩2分
- 住所
- 〒188-0001 東京都西東京市谷戸町3-27-9 JCビルⅡ1階
- 営業時間
- 10:00~18:00
- 定休日
- 水曜日
- 営業エリア
- 西東京市・東久留米市・清瀬市・小平市・東村山市・小金井市・武蔵野市・練馬区・中野区・新座市・所沢市・朝霞市・和光市
- 取引態様
- 賃貸仲介業
























