イーストフォレスト 102号室(1階/1LDK)の賃貸物件(賃貸アパート)
埼玉県所沢市にあるイーストフォレスト 102号室はバルコニー、南向き、インターネット可、LGBTフレンドリー、オンライン相談可などが特徴です。最寄り駅の武蔵野線東所沢駅から徒歩8分です。イーストフォレスト 102号室の詳細はハウスコム 所沢店までお気軽にお問い合わせください!
情報更新日:
次回更新予定日:
※次回更新予定日について:お店側では順次空室確認を行っていますが、次回更新予定日までに空室確認が行えない場合には、この物件情報は自動的に削除されます。
イーストフォレスト 102号室の賃貸物件部屋概要
家賃 |
7.8万円
初期費用を |
|---|---|
共益費 |
3,500円
入居可能時期 |
敷金/礼金 |
- / - |
保証金/ |
- / - |
最寄駅 |
|
所在地 |
埼玉県所沢市東所沢和田 |
部屋番号 |
102号室 |
間取り |
1LDK(洋6.7・LDK10.5・他5.5) |
専有面積 |
37.10㎡ |
築年数 |
2005年9月(築21年) |
階数 |
1階部分(地上2階建) |
方位・位置 |
南 / その他 |
物件種別 |
賃貸アパート |
構造 |
木造 |
駐車場 |
9,592円 |
小学校学区 |
和田小学校 |
中学校学区 |
安松中学校 |
他の空き部屋 |
ー |
- 学区データについて
- ※学区データは必ずしも正確とは限りません。詳細に関しては最寄店舗または各自治体の教育委員会に必ずご確認ください。
イーストフォレスト 102号室の特徴
-
一人暮らしに人気の設備

-
カップルに人気の設備

-
家族に人気の設備

-
夫婦に人気の設備

-
三世代で人気の設備

-
外で子どもと遊びたい

-
雨の日でも洗濯したい

-
洋室で暮らしたい

-
緑のある環境が好き

-
ガーデニングが好き

-
家庭菜園が好き

契約条件
この物件は、外国籍の方もご相談の上、2人入居もご契約できます。 敷金と礼金が無料なため、初期費用が比較的安くなる傾向にあります。
セキュリティ
来客時には居室内のテレビモニターにて訪問者の顔を確認することができます。
室内設備
システムキッチンが備え付けられています。 お風呂とトイレは別です。お風呂には、追い焚き機能が備わっています。 女性に嬉しい設備の独立した洗面化粧台があります。 洗濯に便利な設備として、室内洗濯機置場があります。
居室状況
居室には、ロフトが設置されており大規模な収納スペースやセパレートされた寝室として活用できます。 お部屋の床は、フローリングとなっており、エアコンが設置されています。 照明器具が備え付けられており、入居後すぐ生活が始められます。 収納スペースとして、基本的な居室にクローゼットを設置、玄関にはシューズボックスがあります。
建物設備共用部分
居室外の専有スペースとして、洗濯物を干すなどの用途として利用できるバルコニーがあります。 駐輪場が利用できます。
周辺施設
この物件の学区は、和田小学校区・安松中学校区です。
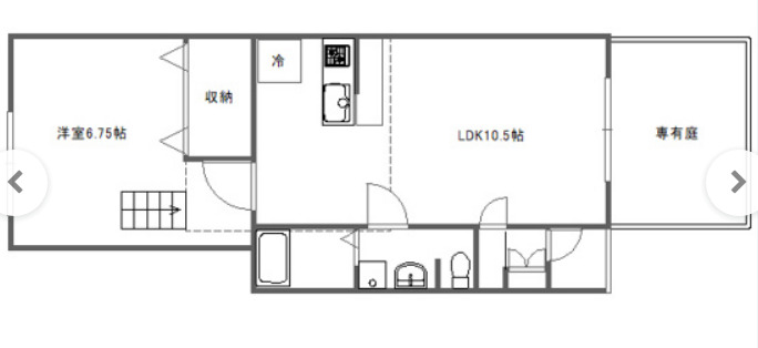
イーストフォレスト 102号室の間取り
間取り:1LDK
間取詳細:1LDK(洋6.7・LDK10.5・他5.5)
専有面積:37.10㎡
方位:南
部屋位置:その他
イーストフォレスト 102号室の設備
キッチン
システムキッチン
バス・トイレ
バス・トイレ別
追い焚き
独立洗面台
玄関
TVモニタ付インターホン
収納
クローゼット
シューズボックス
バルコニー
バルコニー
ルーフバルコニー
専用庭付
室内設備
エアコン
フローリング
室内洗濯機置場
ロフト付
照明器具付
位置・立地
1階
南向き
インフラ
インターネット可
CATV
建物設備
駐輪場
入居条件
2人入居可
外国人可・相談
LGBTフレンドリー
オンライン相談可
オンライン内見可
ライフステージ
一人暮らしに人気の設備
カップルに人気の設備
家族に人気の設備
夫婦に人気の設備
三世代で人気の設備
こだわり
外で子どもと遊びたい
雨の日でも洗濯したい
洋室で暮らしたい
趣味
緑のある環境が好き
ガーデニングが好き
家庭菜園が好き
イーストフォレスト 102号室の賃貸契約情報
毎月支払う |
家賃7.8万円/月共益費3,500円/月 |
|---|---|
初期費用 |
敷金-礼金-保証金-敷引き償却金- |
更新料 |
78,000円 |
鍵交換費用 |
19,800円 |
室内清掃費用 |
- |
駐車場料金 |
9,592円 |
損保・ |
借家賠付きの火災保険にご加入いただきます。 |
保証会社 |
加入要 保証会社利用料:初回保証料40%(最低保証料15,000円)、年間保証料15,000円 |
契約期間 |
2年 |
入居可能日 |
相談 |
フリーレント期間 |
- |
取引形態 |
一般媒介 |
備考 |
- |
イーストフォレスト 102号室の建物情報
建物名称 |
イーストフォレスト |
|---|---|
最寄駅 |
|
所在地 |
埼玉県所沢市東所沢和田 |
階層 |
1階部分(地上2階建) |
構造 |
木造 |
築年数 |
2005年9月(築21年) |
駐車場 |
9,592円 |
小学校学区 |
和田小学校 |
中学校学区 |
安松中学校 |
- 学区データについて
- ※学区データは必ずしも正確とは限りません。詳細に関しては最寄店舗または各自治体の教育委員会に必ずご確認ください。
無料この物件に問い合わせ
- イーストフォレスト 102号室

-
7.8万円
(共益費
3,500円)
- 敷
- -
- 礼
- -
- 保
- -
- 償
- -
イーストフォレスト 102号室の物件のお問い合わせ先・取り扱い店舗
ハウスコム 所沢店
- アクセス
-
西武池袋線・豊島線「所沢駅」東口徒歩2分
- 住所
- 〒359-0037 埼玉県所沢市くすのき台1丁目10−6 毛利ビル 2階
- 営業時間
- 10:00~18:00
- 定休日
- なし
- 営業エリア
- 所沢市,入間市,狭山市,飯能市,日高市,東村山市,清瀬市,東大和市,新座市,西東京市,その他隣接近郊エリア
- 取引態様
- 賃貸仲介業


























