芝浦の完工年月(1991年9月)築の賃貸マンション ***号室(12階/2LDK)の賃貸物件(賃貸マンション)
東京都港区にある芝浦の完工年月(1991年9月)築の賃貸マンション ***号室はシステムキッチン、宅配ボックス、防犯カメラ、駐輪場、バイク置き場などが特徴です。最寄り駅の山手線田町駅から徒歩12分です。芝浦の完工年月(1991年9月)築の賃貸マンション ***号室の詳細はハウスコム 五反田店までお気軽にお問い合わせください!
情報更新日:
次回更新予定日:
※次回更新予定日について:お店側では順次空室確認を行っていますが、次回更新予定日までに空室確認が行えない場合には、この物件情報は自動的に削除されます。
芝浦の完工年月(1991年9月)築の賃貸マンション ***号室の賃貸物件部屋概要
家賃 |
24.9万円
初期費用を |
|---|---|
共益費 |
15,000円
入居可能時期 |
敷金/礼金 |
1ヶ月 / 1ヶ月 |
保証金/ |
- / - |
最寄駅 |
|
所在地 |
東京都港区芝浦 |
部屋番号 |
***号室 |
間取り |
2LDK |
専有面積 |
53.06㎡ |
築年数 |
1991年9月(築35年) |
階数 |
12階部分(地上15階地下2階建) |
方位・位置 |
東 / その他 |
物件種別 |
賃貸マンション |
構造 |
SRC |
駐車場 |
- |
小学校学区 |
芝浦小学校 |
中学校学区 |
港南中学校 |
他の空き部屋 |
***号室 ***号室 ***号室 |
- 学区データについて
- ※学区データは必ずしも正確とは限りません。詳細に関しては最寄店舗または各自治体の教育委員会に必ずご確認ください。
芝浦の完工年月(1991年9月)築の賃貸マンション ***号室の特徴
セキュリティ
この物件の建物には、オートロックや防犯カメラや宅配ボックスが設置されており、来客時には居室内のテレビモニターにて訪問者の顔を確認することができます。
室内設備
システムキッチンが備え付けられています。
居室状況
エアコンが設置されています。 収納スペースとして、基本的な居室にクローゼットがあります。
建物設備共用部分
建物の共用スペースに、日々の出入に便利なエレベーターや、いざという時の防犯カメラや、急な外出や不在がちのご家庭の荷物受け取りに便利な宅配ボックスや、居室内を常に清潔に保てる24時間利用可能なゴミ捨て置き場が設置されています。 駐輪場、バイク置き場が利用できます。
周辺施設
この物件の学区は、芝浦小学校区・港南中学校区です。
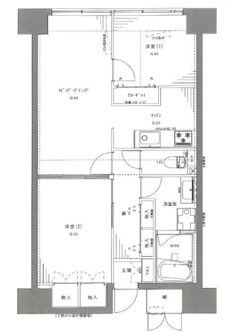
芝浦の完工年月(1991年9月)築の賃貸マンション ***号室の間取り
間取り:2LDK
間取詳細:2LDK
専有面積:53.06㎡
方位:東
部屋位置:その他
芝浦の完工年月(1991年9月)築の賃貸マンション ***号室の設備
キッチン
システムキッチン
バス・トイレ
バス・トイレ別
玄関
TVモニタ付インターホン
オートロック
宅配ボックス
収納
クローゼット
室内設備
エアコン
位置・立地
2階以上
インフラ
BS
建物設備
エレベーター
防犯カメラ
24時間ゴミ出しOK
駐輪場
バイク置き場
ライフステージ
一人暮らしに人気の設備
カップルに人気の設備
家族に人気の設備
夫婦に人気の設備
三世代で人気の設備
こだわり
セキュリティ対策重視
芝浦の完工年月(1991年9月)築の賃貸マンション ***号室の賃貸契約情報
毎月支払う |
家賃24.9万円/月共益費15,000円/月 |
|---|---|
初期費用 |
敷金1ヶ月 (24.9万円)礼金1ヶ月 (24.9万円)保証金-敷引き償却金- |
更新料 |
249,000円 |
鍵交換費用 |
22,000円 |
室内清掃費用 |
- |
入居者限定会員サービス/2年 |
11,000円 |
駐車場料金 |
- |
損保・ |
借家賠付きの火災保険にご加入いただきます。 |
保証会社 |
加入要 保証会社利用料:【IRS③】IUCレジデンシャルサポート |
契約期間 |
2年 |
入居可能日 |
2025年12月下旬 |
フリーレント期間 |
- |
取引形態 |
一般媒介 |
備考 |
- |
芝浦の完工年月(1991年9月)築の賃貸マンション ***号室の建物情報
建物名称 |
芝浦の完工年月(1991年9月)築の賃貸マンション |
|---|---|
最寄駅 |
|
所在地 |
東京都港区芝浦 |
階層 |
12階部分(地上15階地下2階建) |
構造 |
SRC |
築年数 |
1991年9月(築35年) |
駐車場 |
- |
小学校学区 |
芝浦小学校 |
中学校学区 |
港南中学校 |
- 学区データについて
- ※学区データは必ずしも正確とは限りません。詳細に関しては最寄店舗または各自治体の教育委員会に必ずご確認ください。
無料この物件に問い合わせ
- 芝浦の完工年月(1991年9月)築の賃貸マンション ***号室

-
24.9万円
(共益費
15,000円)
- 敷
- 1ヶ月
- 礼
- 1ヶ月
- 保
- -
- 償
- -
芝浦の完工年月(1991年9月)築の賃貸マンション ***号室の物件のお問い合わせ先・取り扱い店舗
ハウスコム 五反田店
- アクセス
-
山手線「五反田駅」東口徒歩1分
都営浅草線「五反田駅」A6出口より徒歩1分
- 住所
- 〒141-0022 東京都品川区東五反田1丁目12−12 落合ビル 2F
- 営業時間
- 10:00~18:00
- 定休日
- なし(年末年始は休業)
- 営業エリア
- 品川区,大田区,港区,目黒区
- 取引態様
- 賃貸仲介業

































