アート樟葉III ***号室(2階/1LDK)の賃貸物件(賃貸アパート)
大阪府枚方市にあるアート樟葉III ***号室はバス・トイレ別、TVモニタ付インターホン、オートロック、角部屋、保証人不要などが特徴です。最寄り駅の京阪本線樟葉駅から徒歩14分です。アート樟葉III ***号室の詳細はハウスコム FC枚方駅前店までお気軽にお問い合わせください!
情報更新日:
次回更新予定日:
※次回更新予定日について:お店側では順次空室確認を行っていますが、次回更新予定日までに空室確認が行えない場合には、この物件情報は自動的に削除されます。
アート樟葉III ***号室の賃貸物件部屋概要
家賃 |
7.5万円
初期費用を |
|---|---|
共益費 |
6,000円
入居可能時期 |
敷金/礼金 |
- / - |
保証金/ |
- / - |
最寄駅 |
|
所在地 |
大阪府枚方市樋之上町 |
部屋番号 |
***号室 |
間取り |
1LDK |
専有面積 |
37.00㎡ |
築年数 |
新築 |
階数 |
2階部分(地上3階建) |
方位・位置 |
東 / 角部屋 |
物件種別 |
賃貸アパート |
構造 |
木造 |
駐車場 |
空無し |
小学校学区 |
樟葉西小学校 |
中学校学区 |
楠葉西中学校 |
他の空き部屋 |
***号室 ***号室 ***号室 |
- 学区データについて
- ※学区データは必ずしも正確とは限りません。詳細に関しては最寄店舗または各自治体の教育委員会に必ずご確認ください。
アート樟葉III ***号室の特徴
契約条件
この物件は、2人入居もご契約できます。 また、ご契約時に保証人は不要です。 敷金と礼金が無料なため、初期費用が比較的安くなる傾向にあります。
セキュリティ
この物件の建物には、オートロックや防犯カメラが設置されており、来客時には居室内のテレビモニターにて訪問者の顔を確認することができます。
室内設備
システムキッチンには、IHコンロが備え付けられています。 お風呂とトイレは別です。お風呂には、追い焚き機能が備わっています。 トイレは、温水洗浄便座機能付きになります。 女性に嬉しい設備のシャワーの付いている洗面化粧台があります。 洗濯に便利な設備として、室内洗濯機置場があります。浴室乾燥機も設置されているので、梅雨時の生乾き臭も比較的防ぐことができます。
居室状況
エアコンが設置されています。 インターネットも無料で入居後すぐ生活が始められます。 収納スペースとして、玄関にはシューズボックスがあります。
建物設備共用部分
居室外の専有スペースとして、洗濯物を干すなどの用途として利用できるバルコニーがあります。 建物の共用スペースに、いざという時の防犯カメラが設置されています。 駐輪場が利用できます。
周辺施設
この物件の学区は、樟葉西小学校区・楠葉西中学校区です。
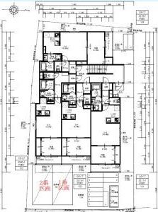
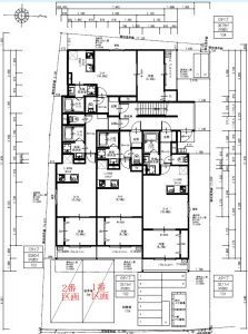
アート樟葉III ***号室の間取り
間取り:1LDK
間取詳細:1LDK
専有面積:37.00㎡
方位:東
部屋位置:角部屋
アート樟葉III ***号室の設備
キッチン
システムキッチン
カウンターキッチン
IHコンロ
バス・トイレ
バス・トイレ別
追い焚き
浴室乾燥機
温水洗浄便座
独立洗面台
シャワー付洗面化粧台
玄関
TVモニタ付インターホン
オートロック
収納
シューズボックス
バルコニー
バルコニー
室内設備
エアコン
室内洗濯機置場
位置・立地
2階以上
角部屋
インフラ
CATV
都市ガス
建物設備
防犯カメラ
駐輪場
入居条件
2人入居可
保証人不要
即入居可
ライフステージ
一人暮らしに人気の設備
カップルに人気の設備
家族に人気の設備
夫婦に人気の設備
三世代で人気の設備
こだわり
セキュリティ対策重視
雨の日でも洗濯したい
趣味
推し活グッズを飾りたい
お得な条件
インターネット無料
アート樟葉III ***号室の賃貸契約情報
毎月支払う |
家賃7.5万円/月共益費6,000円/月 |
|---|---|
初期費用 |
敷金-礼金-保証金-敷引き償却金- |
更新料 |
- |
鍵交換費用 |
- |
室内清掃費用 |
- |
契約事務手数料 契約時 |
22,000円 |
室内清掃費用 退去時 |
38,500円 |
鍵交換費用 |
33,000円 |
駐車場料金 |
空無し |
損保・ |
借家賠付きの火災保険にご加入いただきます。 |
保証会社 |
加入要 保証会社利用料:アーク賃貸保証 アーク賃貸保証 初回保証料:総賃料の50% 月額330円(引落し手数料) 年間保証料10,000円 |
契約期間 |
2年 |
入居可能日 |
即入居可 |
フリーレント期間 |
- |
取引形態 |
仲介 |
備考 |
築1年未満/1LDK 魅力的な物件はこちら。便利な冷房/給湯/インターホン/CATV/エアコンと素敵な設備も豊富です。防犯カメラで安心して生活できます。ネット無料/駐輪場利用料(月額330円)/バイク置場利用料(月額3,300円)/生活安心サポート費用(月額550円) |
アート樟葉III ***号室の建物情報
建物名称 |
アート樟葉III |
|---|---|
最寄駅 |
|
所在地 |
大阪府枚方市樋之上町 |
階層 |
2階部分(地上3階建) |
構造 |
木造 |
築年数 |
新築 |
駐車場 |
空無し |
小学校学区 |
樟葉西小学校 |
中学校学区 |
楠葉西中学校 |
- 学区データについて
- ※学区データは必ずしも正確とは限りません。詳細に関しては最寄店舗または各自治体の教育委員会に必ずご確認ください。
無料この物件に問い合わせ
- アート樟葉III ***号室

-
7.5万円
(共益費
6,000円)
- 敷
- -
- 礼
- -
- 保
- -
- 償
- -
アート樟葉III ***号室の物件のお問い合わせ先・取り扱い店舗
ハウスコム FC枚方駅前店
- アクセス
-
京阪本線「枚方市駅」徒歩1分
京阪交野線「枚方市駅」徒歩1分
- 住所
- 〒573-0031 大阪府枚方市岡本町1-3
- 営業時間
- 09:30~19:00
- 定休日
- 木曜日(1月から3月は無休)
- 営業エリア
- 枚方市、寝屋川市
- 取引態様
- 賃貸仲介業・FC店





































