コンフォールⅠ 102号室(1階/1LDK)の賃貸物件(賃貸アパート)
神奈川県厚木市にあるコンフォールⅠ 102号室はバス・トイレ別、追い焚き、シューズボックス、角部屋、プロパンガスなどが特徴です。最寄り駅の小田急小田原線本厚木駅からバスで8分、黄金原から徒歩6分です。コンフォールⅠ 102号室の詳細はハウスコム 本厚木店までお気軽にお問い合わせください!
情報更新日:
次回更新予定日:
※次回更新予定日について:お店側では順次空室確認を行っていますが、次回更新予定日までに空室確認が行えない場合には、この物件情報は自動的に削除されます。
コンフォールⅠ 102号室の賃貸物件部屋概要
家賃 |
7万円
初期費用を |
|---|---|
共益費 |
4,000円
入居可能時期 |
敷金/礼金 |
- / 30,000円 |
保証金/ |
- / - |
最寄駅 |
|
所在地 |
神奈川県厚木市緑ケ丘 |
部屋番号 |
102号室 |
間取り |
1LDK(洋6・LDK10.5) |
専有面積 |
42.11㎡ |
築年数 |
2007年6月(築19年) |
階数 |
1階部分(地上2階建) |
方位・位置 |
東 / 角部屋 |
物件種別 |
賃貸アパート |
構造 |
軽量鉄骨 |
駐車場 |
5,500円 |
小学校学区 |
緑ケ丘小学校 |
中学校学区 |
林中学校 |
他の空き部屋 |
ー |
- 学区データについて
- ※学区データは必ずしも正確とは限りません。詳細に関しては最寄店舗または各自治体の教育委員会に必ずご確認ください。
コンフォールⅠ 102号室の特徴
-
一人暮らしに人気の設備

-
カップルに人気の設備

-
家族に人気の設備

-
夫婦に人気の設備

-
三世代で人気の設備

-
収納重視

-
雨の日でも洗濯したい

-
洋室で暮らしたい

-
持ち物をスッキリ隠す収納部屋

-
寝るためだけの部屋

-
服やおしゃれが好き

-
推し活グッズを飾りたい

契約条件
この物件は、2人入居もご契約できます。 また、ご契約時に保証人は不要です。 敷金が無料なため、初期費用が比較的安くなる傾向にあります。
セキュリティ
この物件の建物には、宅配ボックスが設置されており、来客時には居室内のテレビモニターにて訪問者の顔を確認することができます。
室内設備
カウンターキッチンには、ガスコンロが備え付けられています。 お風呂とトイレは別です。お風呂には、追い焚き機能が備わっています。 トイレは、温水洗浄便座機能付きになります。 女性に嬉しい設備のシャワーの付いている洗面化粧台があります。 洗濯に便利な設備として、室内洗濯機置場があります。
居室状況
お部屋の床は、フローリングとなっており、エアコンが設置されています。 収納スペースとして、基本的な居室にクローゼットを設置、通常よりも収納力の高いウォークインクローゼット、玄関にはシューズボックス、また、床下収納といったあれば嬉しい用途別収納があります。
建物設備共用部分
建物の共用スペースに、急な外出や不在がちのご家庭の荷物受け取りに便利な宅配ボックスが設置されています。 平面駐車場があります。駐輪場が利用できます。
周辺施設
この物件の学区は、緑ケ丘小学校区・林中学校区です。近くには、徒歩12分(933m)でガスト厚木白山店があります。
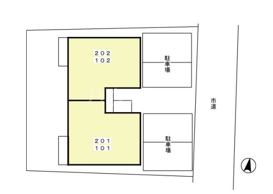
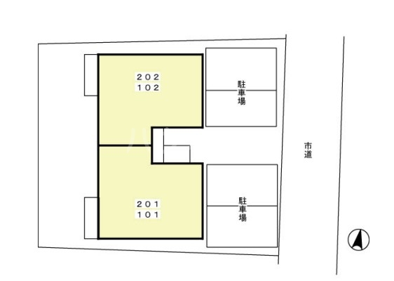
コンフォールⅠ 102号室の間取り
間取り:1LDK
間取詳細:1LDK(洋6・LDK10.5)
専有面積:42.11㎡
方位:東
部屋位置:角部屋
コンフォールⅠ 102号室の設備
キッチン
カウンターキッチン
ガスコンロ
バス・トイレ
バス・トイレ別
追い焚き
温水洗浄便座
独立洗面台
シャワー付洗面化粧台
玄関
TVモニタ付インターホン
宅配ボックス
収納
クローゼット
ウォークインクローゼット
シューズボックス
床下収納
全居室収納
室内設備
エアコン
フローリング
室内洗濯機置場
位置・立地
1階
角部屋
インフラ
インターネット可
BS
プロパンガス
建物設備
駐車場
平面駐車場
駐輪場
入居条件
2人入居可
オンライン相談可
オンライン内見可
保証人不要
ライフステージ
一人暮らしに人気の設備
カップルに人気の設備
家族に人気の設備
夫婦に人気の設備
三世代で人気の設備
こだわり
収納重視
雨の日でも洗濯したい
洋室で暮らしたい
持ち物をスッキリ隠す収納部屋
寝るためだけの部屋
趣味
服やおしゃれが好き
推し活グッズを飾りたい
コンフォールⅠ 102号室の賃貸契約情報
毎月支払う |
家賃7万円/月共益費4,000円/月 |
|---|---|
初期費用 |
敷金-礼金30,000円保証金-敷引き償却金- |
更新料 |
70,000円 |
鍵交換費用 |
- |
室内清掃費用 |
60,500円 |
その他費用契約金 |
16,500円 |
駐車場料金 |
5,500円 |
損保・ |
借家賠付きの火災保険にご加入いただきます。 |
保証会社 |
加入要 保証会社利用料:初回保証料35000円、月額保証料賃料等総額の1%+800円/月(その他商品あり) |
契約期間 |
2年 |
入居可能日 |
即入居可 |
フリーレント期間 |
- |
取引形態 |
一般媒介 |
備考 |
クリーニング代:60500円 カードキー発行料:16500円 |
コンフォールⅠ 102号室の建物情報
建物名称 |
コンフォールⅠ |
|---|---|
最寄駅 |
|
所在地 |
神奈川県厚木市緑ケ丘 |
階層 |
1階部分(地上2階建) |
構造 |
軽量鉄骨 |
築年数 |
2007年6月(築19年) |
駐車場 |
5,500円 |
小学校学区 |
緑ケ丘小学校 |
中学校学区 |
林中学校 |
- 学区データについて
- ※学区データは必ずしも正確とは限りません。詳細に関しては最寄店舗または各自治体の教育委員会に必ずご確認ください。
無料この物件に問い合わせ
- コンフォールⅠ 102号室

-
7万円
(共益費
4,000円)
- 敷
- -
- 礼
- 30,000円
- 保
- -
- 償
- -
コンフォールⅠ 102号室の物件のお問い合わせ先・取り扱い店舗
ハウスコム 本厚木店
- アクセス
-
小田急小田原線「本厚木駅」北口徒歩3分
- 住所
- 〒243-0018 神奈川県厚木市中町3丁目12−14 中町ビル
- 営業時間
- 10:00~18:00
- 定休日
- なし
- 営業エリア
- 厚木市、伊勢原市、海老名市、愛川町、座間市、寒川町
- 取引態様
- 賃貸仲介業

















