金町BASE 205号室(2階/1R)の賃貸物件(賃貸アパート)
東京都葛飾区にある金町BASE 205号室はガスコンロ、シャワー付洗面化粧台、ロフト付、最上階、防犯カメラなどが特徴です。最寄り駅の常磐線各駅停車(千代田線直通)金町駅から徒歩10分です。金町BASE 205号室の詳細はハウスコム 松戸店までお気軽にお問い合わせください!
情報更新日:
次回更新予定日:
※次回更新予定日について:お店側では順次空室確認を行っていますが、次回更新予定日までに空室確認が行えない場合には、この物件情報は自動的に削除されます。
金町BASE 205号室の賃貸物件部屋概要
家賃 |
6.8万円
初期費用を |
|---|---|
共益費 |
4,000円
入居可能時期 |
敷金/礼金 |
- / 1ヶ月 |
保証金/ |
- / - |
最寄駅 |
|
所在地 |
東京都葛飾区東金町 |
部屋番号 |
205号室 |
間取り |
1R |
専有面積 |
14.41㎡ |
築年数 |
新築 |
階数 |
2階部分(地上2階建) |
方位・位置 |
北 / その他 |
物件種別 |
賃貸アパート |
構造 |
木造 |
駐車場 |
無 |
小学校学区 |
半田小学校 |
中学校学区 |
東金町中学校 |
他の空き部屋 |
102号室 103号室 105号室 202号室 203号室 |
- 学区データについて
- ※学区データは必ずしも正確とは限りません。詳細に関しては最寄店舗または各自治体の教育委員会に必ずご確認ください。
金町BASE 205号室の特徴
契約条件
ご契約時に保証人は不要です。 敷金が無料なため、初期費用が比較的安くなる傾向にあります。
セキュリティ
この物件の建物には、防犯カメラや宅配ボックスが設置されており、来客時には居室内のテレビモニターにて訪問者の顔を確認することができます。
室内設備
ガスコンロが備え付けられています。 トイレは、温水洗浄便座機能付きになります。 女性に嬉しい設備のシャワーの付いている洗面化粧台があります。 洗濯に便利な設備として、室内洗濯機置場があります。
居室状況
居室には、ロフトが設置されており大規模な収納スペースやセパレートされた寝室として活用できます。 お部屋の床は、フローリングとなっており、エアコンが設置されています。 インターネットも無料で入居後すぐ生活が始められます。 収納スペースとして、玄関にはシューズボックスがあります。
建物設備共用部分
建物の共用スペースに、いざという時の防犯カメラや、急な外出や不在がちのご家庭の荷物受け取りに便利な宅配ボックスが設置されています。
周辺施設
この物件の学区は、半田小学校区・東金町中学校区です。
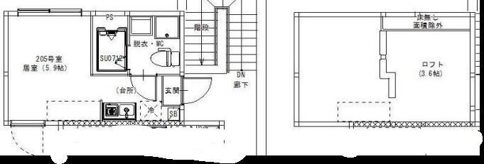
金町BASE 205号室の間取り
間取り:1R
間取詳細:1R
専有面積:14.41㎡
方位:北
部屋位置:その他
金町BASE 205号室の設備
キッチン
ガスコンロ
バス・トイレ
バス・トイレ別
温水洗浄便座
独立洗面台
シャワー付洗面化粧台
玄関
TVモニタ付インターホン
宅配ボックス
収納
シューズボックス
室内設備
エアコン
フローリング
室内洗濯機置場
ロフト付
位置・立地
2階以上
最上階
インフラ
インターネット可
プロパンガス
建物設備
防犯カメラ
入居条件
オンライン相談可
オンライン内見可
保証人不要
ライフステージ
一人暮らしに人気の設備
カップルに人気の設備
家族に人気の設備
夫婦に人気の設備
三世代で人気の設備
トレンド
ミニマリスト
こだわり
雨の日でも洗濯したい
洋室で暮らしたい
趣味
オークション・通販が好き
お得な条件
インターネット無料
金町BASE 205号室の賃貸契約情報
毎月支払う |
家賃6.8万円/月共益費4,000円/月 |
|---|---|
初期費用 |
敷金-礼金1ヶ月 (6.8万円)保証金-敷引き償却金- |
更新料 |
102,000円 |
鍵交換費用 |
- |
室内清掃費用 |
38,500円 |
インターネット開通費 |
16,500円 |
24時間サポート |
19,800円 |
除菌消臭費 |
19,800円 |
駐車場料金 |
無 |
損保・ |
借家賠付きの火災保険にご加入いただきます。 |
保証会社 |
加入要 保証会社利用料:初回保証料:30%~50% |
契約期間 |
2年 |
入居可能日 |
2026年01月 |
フリーレント期間 |
- |
取引形態 |
一般媒介 |
備考 |
短期解約違約金有 エアコンクリーニング費13200円 |
金町BASE 205号室の建物情報
建物名称 |
金町BASE |
|---|---|
最寄駅 |
|
所在地 |
東京都葛飾区東金町 |
階層 |
2階部分(地上2階建) |
構造 |
木造 |
築年数 |
新築 |
駐車場 |
無 |
小学校学区 |
半田小学校 |
中学校学区 |
東金町中学校 |
- 学区データについて
- ※学区データは必ずしも正確とは限りません。詳細に関しては最寄店舗または各自治体の教育委員会に必ずご確認ください。
無料この物件に問い合わせ
- 金町BASE 205号室

-
6.8万円
(共益費
4,000円)
- 敷
- -
- 礼
- 1ヶ月
- 保
- -
- 償
- -
金町BASE 205号室の物件のお問い合わせ先・取り扱い店舗
ハウスコム 松戸店
- アクセス
-
常磐線「松戸駅」西口徒歩1分
- 住所
- 〒271-0091 千葉県松戸市本町2−3 平野第1ビル 3階
- 営業時間
- 10:00~18:00
- 定休日
- なし
- 営業エリア
- 松戸市、鎌ヶ谷市、柏市、野田市、三郷市、八潮市、流山市
- 取引態様
- 賃貸仲介業



































