エタニティ 204号室(1階/1K)の賃貸物件(賃貸マンション)
東京都中野区にあるエタニティ 204号室はガスコンロ二口以上、バス・トイレ別、TVモニタ付インターホン、エアコン、1階などが特徴です。最寄り駅の都営大江戸線中井駅から徒歩6分です。エタニティ 204号室の詳細はハウスコム 高田馬場店までお気軽にお問い合わせください!
情報更新日:
次回更新予定日:
※次回更新予定日について:お店側では順次空室確認を行っていますが、次回更新予定日までに空室確認が行えない場合には、この物件情報は自動的に削除されます。
エタニティ 204号室の賃貸物件部屋概要
家賃 |
7.3万円
初期費用を |
|---|---|
共益費 |
7,000円
入居可能時期 |
敷金/礼金 |
1ヶ月 / 1ヶ月 |
保証金/ |
- / - |
最寄駅 |
|
所在地 |
東京都中野区上高田 |
部屋番号 |
204号室 |
間取り |
1K(洋5.9・K2) |
専有面積 |
18.45㎡ |
築年数 |
2007年6月(築19年) |
階数 |
1階部分(地上2階地下1階建) |
方位・位置 |
南西 / その他 |
物件種別 |
賃貸マンション |
構造 |
RC |
駐車場 |
- |
小学校学区 |
令和小学校 |
中学校学区 |
第五中学校 |
他の空き部屋 |
102号室 |
- 学区データについて
- ※学区データは必ずしも正確とは限りません。詳細に関しては最寄店舗または各自治体の教育委員会に必ずご確認ください。
エタニティ 204号室の特徴
セキュリティ
この物件の建物には、オートロックが設置されており、来客時には居室内のテレビモニターにて訪問者の顔を確認することができます。
室内設備
システムキッチンには、2つ以上のガスコンロが備え付けられています。 洗濯に便利な設備として、室内洗濯機置場があります。
居室状況
お部屋の床は、フローリングとなっており、エアコンが設置されています。 収納スペースとして、基本的な居室にクローゼットを設置、玄関にはシューズボックスがあります。
建物設備共用部分
居室外の専有スペースとして、洗濯物を干すなどの用途として利用できるバルコニーがあります。 駐輪場が利用できます。
周辺施設
この物件の学区は、令和小学校区・第五中学校区です。
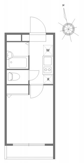
エタニティ 204号室の間取り
間取り:1K
間取詳細:1K(洋5.9・K2)
専有面積:18.45㎡
方位:南西
部屋位置:その他
エタニティ 204号室の設備
キッチン
システムキッチン
ガスコンロ
ガスコンロ二口以上
バス・トイレ
バス・トイレ別
玄関
TVモニタ付インターホン
オートロック
収納
クローゼット
シューズボックス
バルコニー
バルコニー
ルーフバルコニー
室内設備
エアコン
フローリング
室内洗濯機置場
位置・立地
1階
インフラ
インターネット可
CATV
都市ガス
建物設備
駐輪場
ライフステージ
一人暮らしに人気の設備
カップルに人気の設備
家族に人気の設備
夫婦に人気の設備
三世代で人気の設備
こだわり
外で子どもと遊びたい
雨の日でも洗濯したい
洋室で暮らしたい
趣味
ガーデニングが好き
エタニティ 204号室の賃貸契約情報
毎月支払う |
家賃7.3万円/月共益費7,000円/月 |
|---|---|
初期費用 |
敷金1ヶ月 (7.3万円)礼金1ヶ月 (7.3万円)保証金-敷引き償却金- |
更新料 |
73,000円 |
鍵交換費用 |
22,000円 |
室内清掃費用 |
- |
プレミアデスク(税込/2年) |
16,500円 |
駐車場料金 |
- |
損保・ |
借家賠付きの火災保険にご加入いただきます。 |
保証会社 |
加入要 保証会社:エポスカード 保証会社利用料:※エポス ルームIDからの審査になります。 【ルームID】月額総賃料の50%/月次保証料、月額総賃料の1.5%/1年毎10,000円 【アーク賃貸保証】月額総賃料の40%/次年度以降10,000円 |
契約期間 |
2年 |
入居可能日 |
相談 |
フリーレント期間 |
- |
取引形態 |
一般媒介 |
備考 |
- |
エタニティ 204号室の建物情報
建物名称 |
エタニティ |
|---|---|
最寄駅 |
|
所在地 |
東京都中野区上高田 |
階層 |
1階部分(地上2階地下1階建) |
構造 |
RC |
築年数 |
2007年6月(築19年) |
駐車場 |
- |
小学校学区 |
令和小学校 |
中学校学区 |
第五中学校 |
- 学区データについて
- ※学区データは必ずしも正確とは限りません。詳細に関しては最寄店舗または各自治体の教育委員会に必ずご確認ください。
無料この物件に問い合わせ
- エタニティ 204号室

-
7.3万円
(共益費
7,000円)
- 敷
- 1ヶ月
- 礼
- 1ヶ月
- 保
- -
- 償
- -
エタニティ 204号室の物件のお問い合わせ先・取り扱い店舗
ハウスコム 高田馬場店
- アクセス
-
山手線「高田馬場駅」徒歩5分
- 住所
- 〒169-0075 東京都新宿区高田馬場1-17-18 マルシメビル1階
- 営業時間
- 10:00~18:00
- 定休日
- 水曜日
- 営業エリア
- 新宿区 豊島区 杉並区 中野区 文京区
- 取引態様
- 賃貸仲介業

























