山田東の完工年月(2003年12月)築の賃貸マンション ***号室(8階/3LDK)の賃貸物件(賃貸マンション)
大阪府吹田市にある山田東の完工年月(2003年12月)築の賃貸マンション ***号室はバス・トイレ別、独立洗面台、バルコニー、エレベーター、分譲賃貸などが特徴です。最寄り駅の大阪モノレール 本線万博記念公園駅から徒歩10分です。山田東の完工年月(2003年12月)築の賃貸マンション ***号室の詳細はクラスモ FCJR吹田駅前店までお気軽にお問い合わせください!
情報更新日:
次回更新予定日:
※次回更新予定日について:お店側では順次空室確認を行っていますが、次回更新予定日までに空室確認が行えない場合には、この物件情報は自動的に削除されます。
山田東の完工年月(2003年12月)築の賃貸マンション ***号室の賃貸物件部屋概要
家賃 |
13.3万円
初期費用を |
|---|---|
共益費 |
8,000円
入居可能時期 |
敷金/礼金 |
130,000円 / 300,000円 |
保証金/ |
- / - |
最寄駅 |
|
所在地 |
大阪府吹田市山田東 |
部屋番号 |
***号室 |
間取り |
3LDK(LD10.3・K3.5・洋5.5・洋6.5・和6) |
専有面積 |
73.34㎡ |
築年数 |
2003年12月(築22年) |
階数 |
8階部分(地上13階建) |
方位・位置 |
東 / その他 |
物件種別 |
賃貸マンション |
構造 |
RC |
駐車場 |
15,000円 |
小学校学区 |
山田第一小学校 |
中学校学区 |
山田東中学校 |
他の空き部屋 |
***号室 ***号室 ***号室 |
- 学区データについて
- ※学区データは必ずしも正確とは限りません。詳細に関しては最寄店舗または各自治体の教育委員会に必ずご確認ください。
山田東の完工年月(2003年12月)築の賃貸マンション ***号室の特徴
-
一人暮らしに人気の設備

-
カップルに人気の設備

-
家族に人気の設備

-
夫婦に人気の設備

-
三世代で人気の設備

-
身だしなみに気をつかいたい

-
雨の日でも洗濯したい

-
洋室で暮らしたい

-
自炊が多めなあなたに

-
服やおしゃれが好き

契約条件
この物件は、2人入居もご契約できます。
セキュリティ
この物件の建物には、防犯カメラや宅配ボックスが設置されており、来客時には居室内のテレビモニターにて訪問者の顔を確認することができます。
室内設備
システムキッチンには、キッチン設備として食洗機が備え付けられています。 お風呂とトイレは別です。お風呂には、追い焚き機能が備わっています。 トイレは、温水洗浄便座機能付きになります。 女性に嬉しい設備の独立した洗面化粧台があります。 洗濯に便利な設備として、室内洗濯機置場があります。浴室乾燥機も設置されているので、梅雨時の生乾き臭も比較的防ぐことができます。
居室状況
居室には、和室の居室もあり、子育てやリラックススペースとしての利用もできます。 お部屋の床は、フローリングとなっており、エアコンと一部床下暖房が設置されています。 収納スペースとして、基本的な居室にクローゼットを設置、通常よりも収納力の高いウォークインクローゼットがあります。
建物設備共用部分
居室外の専有スペースとして、洗濯物を干すなどの用途として利用できるバルコニーがあります。 建物の共用スペースに、日々の出入に便利なエレベーターや、いざという時の防犯カメラや、急な外出や不在がちのご家庭の荷物受け取りに便利な宅配ボックスが設置されています。 駐輪場が利用できます。
周辺施設
この物件の学区は、山田第一小学校区・山田東中学校区です。近くには、徒歩9分(643m)でドラッグストアが、徒歩8分(583m)で銀行があります。
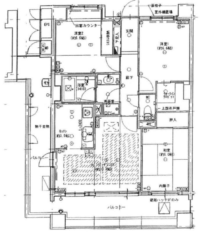
山田東の完工年月(2003年12月)築の賃貸マンション ***号室の間取り
間取り:3LDK
間取詳細:3LDK(LD10.3・K3.5・洋5.5・洋6.5・和6)
専有面積:73.34㎡
方位:東
部屋位置:その他
山田東の完工年月(2003年12月)築の賃貸マンション ***号室の設備
キッチン
システムキッチン
食洗機
バス・トイレ
バス・トイレ別
追い焚き
浴室乾燥機
温水洗浄便座
独立洗面台
玄関
TVモニタ付インターホン
宅配ボックス
収納
クローゼット
ウォークインクローゼット
バルコニー
バルコニー
室内設備
エアコン
フローリング
床下暖房
室内洗濯機置場
和室あり
位置・立地
2階以上
インフラ
インターネット可
BS
建物設備
エレベーター
防犯カメラ
駐輪場
分譲賃貸
入居条件
2人入居可
即入居可
ライフステージ
一人暮らしに人気の設備
カップルに人気の設備
家族に人気の設備
夫婦に人気の設備
三世代で人気の設備
こだわり
身だしなみに気をつかいたい
雨の日でも洗濯したい
洋室で暮らしたい
自炊が多めなあなたに
趣味
服やおしゃれが好き
山田東の完工年月(2003年12月)築の賃貸マンション ***号室の賃貸契約情報
毎月支払う |
家賃13.3万円/月共益費8,000円/月 |
|---|---|
初期費用 |
敷金130,000円礼金300,000円保証金-敷引き償却金- |
更新料 |
- |
鍵交換費用 |
22,000円 |
室内清掃費用 |
- |
駐車場料金 |
15,000円 |
損保・ |
借家賠付きの火災保険にご加入いただきます。 |
保証会社 |
加入要 保証会社:全保連 保証会社利用料:初回保証料:総賃料の50% 更新料:10,000円/年 |
契約期間 |
2年 |
入居可能日 |
即入居可 |
フリーレント期間 |
- |
取引形態 |
仲介 |
備考 |
新婚様・カップル様 大歓迎・応援中医療従事者様 大歓迎・応援中新社会人様 大歓迎・応援中お部屋探しはクラスモJR吹田駅前店で |
山田東の完工年月(2003年12月)築の賃貸マンション ***号室の建物情報
建物名称 |
山田東の完工年月(2003年12月)築の賃貸マンション |
|---|---|
最寄駅 |
|
所在地 |
大阪府吹田市山田東 |
階層 |
8階部分(地上13階建) |
構造 |
RC |
築年数 |
2003年12月(築22年) |
駐車場 |
15,000円 |
小学校学区 |
山田第一小学校 |
中学校学区 |
山田東中学校 |
- 学区データについて
- ※学区データは必ずしも正確とは限りません。詳細に関しては最寄店舗または各自治体の教育委員会に必ずご確認ください。
無料この物件に問い合わせ
- 山田東の完工年月(2003年12月)築の賃貸マンション ***号室

-
13.3万円
(共益費
8,000円)
- 敷
- 130,000円
- 礼
- 300,000円
- 保
- -
- 償
- -
山田東の完工年月(2003年12月)築の賃貸マンション ***号室の物件のお問い合わせ先・取り扱い店舗
クラスモ FCJR吹田駅前店
- アクセス
-
東海道本線(JR西日本)「吹田駅」徒歩2分
阪急千里線「吹田駅」徒歩13分
阪急千里線「豊津駅」徒歩23分
- 住所
- 〒564-0027 大阪府吹田市朝日町2番 さんくす2番館138号室
- 営業時間
- 10:00~19:00
- 定休日
- 水曜日
- 営業エリア
- 吹田市・摂津市・茨木市 ・東淀川区・淀川区・西淀川区・北区・福島区・中央区
- 取引態様
- 賃貸仲介業・物件売買業・FC店





























