グランパーク東京ノース 203号室(2階/1K)の賃貸物件(賃貸マンション)
東京都板橋区にあるグランパーク東京ノース 203号室はクローゼット、エアコン、フローリング、CATV、都市ガスなどが特徴です。最寄り駅の都営三田線蓮根駅から徒歩6分です。グランパーク東京ノース 203号室の詳細はハウスコム 和光店までお気軽にお問い合わせください!
情報更新日:
次回更新予定日:
※次回更新予定日について:お店側では順次空室確認を行っていますが、次回更新予定日までに空室確認が行えない場合には、この物件情報は自動的に削除されます。
グランパーク東京ノース 203号室の賃貸物件部屋概要
家賃 |
8.5万円
初期費用を |
|---|---|
共益費 |
15,000円
入居可能時期 |
敷金/礼金 |
- / 1ヶ月 |
保証金/ |
- / - |
最寄駅 |
|
所在地 |
東京都板橋区坂下 |
部屋番号 |
203号室 |
間取り |
1K(洋8.7) |
専有面積 |
25.35㎡ |
築年数 |
2015年2月(築11年) |
階数 |
2階部分(地上4階建) |
方位・位置 |
東 / その他 |
物件種別 |
賃貸マンション |
構造 |
RC |
駐車場 |
無 |
小学校学区 |
蓮根小学校 |
中学校学区 |
志村第五中学校 |
他の空き部屋 |
ー |
- 学区データについて
- ※学区データは必ずしも正確とは限りません。詳細に関しては最寄店舗または各自治体の教育委員会に必ずご確認ください。
グランパーク東京ノース 203号室の特徴
契約条件
この物件は、2人入居もご契約できます。 ペットの飼育もご相談ください。 敷金が無料なため、初期費用が比較的安くなる傾向にあります。
セキュリティ
この物件の建物には、オートロックや宅配ボックスが設置されております。
室内設備
システムキッチンには、2つ以上のガスコンロが備え付けられています。 トイレは、温水洗浄便座機能付きになります。 女性に嬉しい設備のシャワーの付いている洗面化粧台があります。 洗濯に便利な設備として、室内洗濯機置場があります。浴室乾燥機も設置されているので、梅雨時の生乾き臭も比較的防ぐことができます。
居室状況
お部屋の床は、フローリングとなっており、エアコンが設置されています。 収納スペースとして、基本的な居室にクローゼットがあります。
建物設備共用部分
居室外の専有スペースとして、洗濯物を干すなどの用途として利用できるバルコニーがあります。 建物の共用スペースに、日々の出入に便利なエレベーターや、急な外出や不在がちのご家庭の荷物受け取りに便利な宅配ボックスが設置されています。
周辺施設
この物件の学区は、蓮根小学校区・志村第五中学校区です。
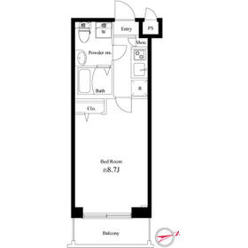
グランパーク東京ノース 203号室の間取り
間取り:1K
間取詳細:1K(洋8.7)
専有面積:25.35㎡
方位:東
部屋位置:その他
グランパーク東京ノース 203号室の設備
キッチン
システムキッチン
ガスコンロ
ガスコンロ二口以上
バス・トイレ
バス・トイレ別
浴室乾燥機
温水洗浄便座
独立洗面台
シャワー付洗面化粧台
玄関
オートロック
宅配ボックス
収納
クローゼット
バルコニー
バルコニー
ルーフバルコニー
室内設備
エアコン
フローリング
室内洗濯機置場
位置・立地
2階以上
インフラ
インターネット可
CATV
BS
都市ガス
建物設備
エレベーター
入居条件
ペット可・相談
2人入居可
ライフステージ
一人暮らしに人気の設備
カップルに人気の設備
家族に人気の設備
夫婦に人気の設備
三世代で人気の設備
こだわり
外で子どもと遊びたい
雨の日でも洗濯したい
洋室で暮らしたい
趣味
ガーデニングが好き
グランパーク東京ノース 203号室の賃貸契約情報
毎月支払う |
家賃8.5万円/月共益費15,000円/月 |
|---|---|
初期費用 |
敷金-礼金1ヶ月 (8.5万円)保証金-敷引き償却金- |
更新料 |
127,500円 |
鍵交換費用 |
- |
室内清掃費用 |
- |
駐車場料金 |
無 |
損保・ |
借家賠付きの火災保険にご加入いただきます。 |
保証会社 |
加入要 保証会社利用料:エムぞう君 初回保証料55%~ ※最低保証料55,000円 年間:11,000円 |
契約期間 |
2年 |
入居可能日 |
2026年02月 |
フリーレント期間 |
- |
取引形態 |
一般媒介 |
備考 |
- |
グランパーク東京ノース 203号室の建物情報
建物名称 |
グランパーク東京ノース |
|---|---|
最寄駅 |
|
所在地 |
東京都板橋区坂下 |
階層 |
2階部分(地上4階建) |
構造 |
RC |
築年数 |
2015年2月(築11年) |
駐車場 |
無 |
小学校学区 |
蓮根小学校 |
中学校学区 |
志村第五中学校 |
- 学区データについて
- ※学区データは必ずしも正確とは限りません。詳細に関しては最寄店舗または各自治体の教育委員会に必ずご確認ください。
無料この物件に問い合わせ
- グランパーク東京ノース 203号室

-
8.5万円
(共益費
15,000円)
- 敷
- -
- 礼
- 1ヶ月
- 保
- -
- 償
- -
グランパーク東京ノース 203号室の物件のお問い合わせ先・取り扱い店舗
ハウスコム 和光店
- アクセス
-
東武東上線「和光市駅」南口徒歩1分
- 住所
- 〒351-0114 埼玉県和光市本町6−8 大澤ビル 1階
- 営業時間
- 10:00~18:00
- 定休日
- 水曜日
- 営業エリア
- 和光市、朝霞市、新座市、志木市、富士見市、ふじみ野市、板橋区、練馬区
- 取引態様
- 賃貸仲介業
























