クリエオーレ初芝 101号室(1階/2LDK)の賃貸物件(賃貸アパート)
大阪府堺市東区にあるクリエオーレ初芝 101号室は追い焚き、浴室乾燥機、バルコニー、駐輪場、ペット可・相談などが特徴です。最寄り駅の南海高野線初芝駅から徒歩6分です。クリエオーレ初芝 101号室の詳細はハウスコム FC北野田店までお気軽にお問い合わせください!
情報更新日:
次回更新予定日:
※次回更新予定日について:お店側では順次空室確認を行っていますが、次回更新予定日までに空室確認が行えない場合には、この物件情報は自動的に削除されます。
クリエオーレ初芝 101号室の賃貸物件部屋概要
家賃 |
9.8万円
初期費用を |
|---|---|
共益費 |
5,000円
入居可能時期 |
敷金/礼金 |
- / 1ヶ月 |
保証金/ |
- / - |
最寄駅 |
|
所在地 |
大阪府堺市東区日置荘西町 |
部屋番号 |
101号室 |
間取り |
2LDK(LDK11・洋5・洋5) |
専有面積 |
48.25㎡ |
築年数 |
新築 |
階数 |
1階部分(地上3階建) |
方位・位置 |
ー / 角部屋 |
物件種別 |
賃貸アパート |
構造 |
木造 |
駐車場 |
13,000円 |
小学校学区 |
日置荘小学校 |
中学校学区 |
日置荘中学校 |
他の空き部屋 |
102号室 103号室 201号室 202号室 203号室 301号室 302号室 303号室 |
- 学区データについて
- ※学区データは必ずしも正確とは限りません。詳細に関しては最寄店舗または各自治体の教育委員会に必ずご確認ください。
クリエオーレ初芝 101号室の特徴
契約条件
この物件は、2人入居もご契約できます。 ペットの飼育もご相談ください。 また、ご契約時に保証人は不要です。 敷金が無料なため、初期費用が比較的安くなる傾向にあります。 お支払いは、初期費用と家賃がクレジットカードにて決済できます。
セキュリティ
この物件の建物には、オートロックや防犯カメラや宅配ボックスが設置されており、来客時には居室内のテレビモニターにて訪問者の顔を確認することができます。
室内設備
システムキッチンには、IHコンロが備え付けられています。 お風呂とトイレは別です。お風呂には、追い焚き機能が備わっています。 トイレは、温水洗浄便座機能付きになります。 洗濯に便利な設備として、室内洗濯機置場があります。浴室乾燥機も設置されているので、梅雨時の生乾き臭も比較的防ぐことができます。
居室状況
お部屋の床は、フローリングとなっており、エアコンが設置されています。 インターネットも無料で入居後すぐ生活が始められます。 収納スペースとして、基本的な居室にクローゼットがあります。
建物設備共用部分
居室外の専有スペースとして、洗濯物を干すなどの用途として利用できるバルコニーがあります。 建物の共用スペースに、いざという時の防犯カメラや、急な外出や不在がちのご家庭の荷物受け取りに便利な宅配ボックスが設置されています。 駐輪場、バイク置き場が利用できます。
周辺施設
この物件の学区は、日置荘小学校区・日置荘中学校区です。近くには、徒歩5分(331m)でドラッグストアが、徒歩3分(226m)で堺日置荘郵便局があります。
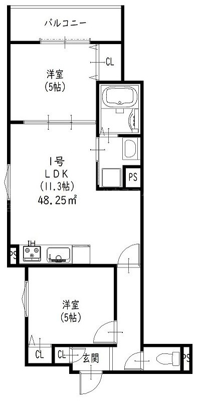
クリエオーレ初芝 101号室の間取り
間取り:2LDK
間取詳細:2LDK(LDK11・洋5・洋5)
専有面積:48.25㎡
方位:ー
部屋位置:角部屋
クリエオーレ初芝 101号室の設備
キッチン
システムキッチン
IHコンロ
バス・トイレ
バス・トイレ別
追い焚き
浴室乾燥機
温水洗浄便座
玄関
TVモニタ付インターホン
オートロック
宅配ボックス
収納
クローゼット
バルコニー
バルコニー
室内設備
エアコン
フローリング
室内洗濯機置場
位置・立地
1階
角部屋
建物設備
防犯カメラ
駐輪場
バイク置き場
入居条件
ペット可・相談
2人入居可
保証人不要
即入居可
ライフステージ
一人暮らしに人気の設備
カップルに人気の設備
家族に人気の設備
夫婦に人気の設備
三世代で人気の設備
こだわり
雨の日でも洗濯したい
洋室で暮らしたい
趣味
オークション・通販が好き
お得な条件
インターネット無料
初期費用カード決済可
家賃カード決済可
クリエオーレ初芝 101号室の賃貸契約情報
毎月支払う |
家賃9.8万円/月共益費5,000円/月 |
|---|---|
初期費用 |
敷金-礼金1ヶ月 (9.8万円)保証金-敷引き償却金- |
更新料 |
- |
鍵交換費用 |
- |
室内清掃費用 |
- |
退去時クリーニング費用 |
44,000円 |
駐輪ステッカー |
1,000円 |
駐車場料金 |
13,000円 |
損保・ |
借家賠付きの火災保険にご加入いただきます。 |
保証会社 |
加入要 保証会社利用料:要保証会社加入 |
契約期間 |
2年 |
入居可能日 |
即入居可 |
フリーレント期間 |
- |
取引形態 |
一般媒介 |
備考 |
♪現地でのお待ち合わせや、お迎えのサービスも行っておりますのでお気軽にお申し付け下さい♪●初期費用の分割払い●クレジットカード払い●IT重説対応!店舗に来店せず契約も可能です!!お部屋探しはハウスコムFC北野田店へお任せください! |
クリエオーレ初芝 101号室の建物情報
建物名称 |
クリエオーレ初芝 |
|---|---|
最寄駅 |
|
所在地 |
大阪府堺市東区日置荘西町 |
階層 |
1階部分(地上3階建) |
構造 |
木造 |
築年数 |
新築 |
駐車場 |
13,000円 |
小学校学区 |
日置荘小学校 |
中学校学区 |
日置荘中学校 |
- 学区データについて
- ※学区データは必ずしも正確とは限りません。詳細に関しては最寄店舗または各自治体の教育委員会に必ずご確認ください。
無料この物件に問い合わせ
- クリエオーレ初芝 101号室

-
9.8万円
(共益費
5,000円)
- 敷
- -
- 礼
- 1ヶ月
- 保
- -
- 償
- -
クリエオーレ初芝 101号室の物件のお問い合わせ先・取り扱い店舗
ハウスコム FC北野田店
- アクセス
-
南海高野線「北野田駅」徒歩3分
南海高野線「狭山駅」徒歩16分
南海高野線「萩原天神駅」徒歩27分
- 住所
- 〒599-8123 大阪府堺市東区北野田1084 ベルヒル北野田119
- 営業時間
- 10:00~18:30
- 定休日
- 水曜日(夏季休暇・年末年始)
- 営業エリア
- 天王寺区・平野区・住吉区・東住吉区・浪速区・生野区 ・西成区・阿倍野区・堺市中区・北区・南区・堺区・東区・美原区・西区 大阪狭山市・富田林市・松原市・河内長野市
- 取引態様
- 賃貸仲介業・FC店





































