KEIAI RESIDENCE せんげん台V 203号室(2階/1LDK)の賃貸物件(賃貸アパート)
埼玉県春日部市にあるKEIAI RESIDENCE せんげん台V 203号室はカウンターキッチン、温水洗浄便座、独立洗面台、角部屋、CATVなどが特徴です。最寄り駅の東武スカイツリーライン・伊勢崎線・大師線せんげん台駅から徒歩10分です。KEIAI RESIDENCE せんげん台V 203号室の詳細はハウスコム 越谷店までお気軽にお問い合わせください!
情報更新日:
次回更新予定日:
※次回更新予定日について:お店側では順次空室確認を行っていますが、次回更新予定日までに空室確認が行えない場合には、この物件情報は自動的に削除されます。
KEIAI RESIDENCE せんげん台V 203号室の賃貸物件部屋概要
家賃 |
7.2万円
初期費用を |
|---|---|
共益費 |
3,500円
入居可能時期 |
敷金/礼金 |
- / 72,000円 |
保証金/ |
- / - |
最寄駅 |
|
所在地 |
埼玉県春日部市大枝 |
部屋番号 |
203号室 |
間取り |
1LDK |
専有面積 |
28.98㎡ |
築年数 |
新築 |
階数 |
2階部分(地上3階建) |
方位・位置 |
南西 / 角部屋 |
物件種別 |
賃貸アパート |
構造 |
木造 |
駐車場 |
無 |
小学校学区 |
武里南小学校 |
中学校学区 |
春日部南中学校 |
他の空き部屋 |
102号室 103号室 201号室 202号室 301号室 302号室 303号室 |
- 学区データについて
- ※学区データは必ずしも正確とは限りません。詳細に関しては最寄店舗または各自治体の教育委員会に必ずご確認ください。
KEIAI RESIDENCE せんげん台V 203号室の特徴
契約条件
この物件は、2人入居もご契約できます。 敷金が無料なため、初期費用が比較的安くなる傾向にあります。
セキュリティ
この物件の建物には、オートロックや宅配ボックスが設置されており、来客時には居室内のテレビモニターにて訪問者の顔を確認することができます。
室内設備
システムキッチンには、IHコンロが備え付けられています。 トイレは、温水洗浄便座機能付きになります。 女性に嬉しい設備の独立した洗面化粧台があります。 洗濯に便利な設備として、浴室乾燥機も設置されているので、梅雨時の生乾き臭も比較的防ぐことができます。
居室状況
お部屋の床は、フローリングとなっており、エアコンが設置されています。 インターネットも無料で入居後すぐ生活が始められます。 収納スペースとして、玄関にはシューズボックスがあります。
建物設備共用部分
建物の共用スペースに、急な外出や不在がちのご家庭の荷物受け取りに便利な宅配ボックスが設置されています。 駐輪場が利用できます。
周辺施設
この物件の学区は、武里南小学校区・春日部南中学校区です。
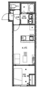
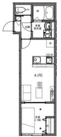
KEIAI RESIDENCE せんげん台V 203号室の間取り
間取り:1LDK
間取詳細:1LDK
専有面積:28.98㎡
方位:南西
部屋位置:角部屋
KEIAI RESIDENCE せんげん台V 203号室の設備
キッチン
システムキッチン
カウンターキッチン
IHコンロ
バス・トイレ
バス・トイレ別
浴室乾燥機
温水洗浄便座
独立洗面台
玄関
TVモニタ付インターホン
オートロック
宅配ボックス
収納
シューズボックス
室内設備
エアコン
フローリング
位置・立地
2階以上
角部屋
インフラ
CATV
都市ガス
建物設備
駐輪場
入居条件
2人入居可
ライフステージ
一人暮らしに人気の設備
カップルに人気の設備
家族に人気の設備
夫婦に人気の設備
三世代で人気の設備
こだわり
雨の日でも洗濯したい
洋室で暮らしたい
趣味
推し活グッズを飾りたい
オークション・通販が好き
お得な条件
インターネット無料
KEIAI RESIDENCE せんげん台V 203号室の賃貸契約情報
毎月支払う |
家賃7.2万円/月共益費3,500円/月 |
|---|---|
初期費用 |
敷金-礼金72,000円保証金-敷引き償却金- |
更新料 |
- |
鍵交換費用 |
- |
室内清掃費用 |
- |
駐車場料金 |
無 |
損保・ |
借家賠付きの火災保険にご加入いただきます。 |
保証会社 |
加入要 保証会社利用料:初回保証料:家賃総額50% 月額保証料:900円/月 |
契約期間 |
2年 |
入居可能日 |
2026年01月下旬 |
フリーレント期間 |
- |
取引形態 |
一般媒介 |
備考 |
- |
KEIAI RESIDENCE せんげん台V 203号室の建物情報
建物名称 |
KEIAI RESIDENCE せんげん台V |
|---|---|
最寄駅 |
|
所在地 |
埼玉県春日部市大枝 |
階層 |
2階部分(地上3階建) |
構造 |
木造 |
築年数 |
新築 |
駐車場 |
無 |
小学校学区 |
武里南小学校 |
中学校学区 |
春日部南中学校 |
- 学区データについて
- ※学区データは必ずしも正確とは限りません。詳細に関しては最寄店舗または各自治体の教育委員会に必ずご確認ください。
無料この物件に問い合わせ
- KEIAI RESIDENCE せんげん台V 203号室

-
7.2万円
(共益費
3,500円)
- 敷
- -
- 礼
- 72,000円
- 保
- -
- 償
- -
KEIAI RESIDENCE せんげん台V 203号室の物件のお問い合わせ先・取り扱い店舗
ハウスコム 越谷店
- アクセス
-
東武スカイツリーライン・伊勢崎線・大師線「新越谷駅」東口徒歩1分
武蔵野線「南越谷駅」南口徒歩1分
- 住所
- 〒343-0845 埼玉県越谷市南越谷1丁目11−8 第一金子ビル 2F
- 営業時間
- 10:00~18:00
- 定休日
- なし
- 営業エリア
- 越谷市,吉川市,三郷市,草加市,春日部,松伏,東武沿線北部
- 取引態様
- 賃貸仲介業
















