スパシエカステロ新都心 ***号室(5階/1K)の賃貸物件(賃貸マンション)
埼玉県さいたま市大宮区にあるスパシエカステロ新都心 ***号室はシステムキッチン、シャワー付洗面化粧台、エアコン、エレベーター、オンライン内見可などが特徴です。最寄り駅の東北本線さいたま新都心駅から徒歩10分です。スパシエカステロ新都心 ***号室の詳細はハウスコム 北浦和店までお気軽にお問い合わせください!
情報更新日:
次回更新予定日:
※次回更新予定日について:お店側では順次空室確認を行っていますが、次回更新予定日までに空室確認が行えない場合には、この物件情報は自動的に削除されます。
スパシエカステロ新都心 ***号室の賃貸物件部屋概要
家賃 |
7.2万円
初期費用を |
|---|---|
共益費 |
15,000円
入居可能時期 |
敷金/礼金 |
1.5ヶ月 / 1ヶ月 |
保証金/ |
- / - |
最寄駅 |
|
所在地 |
埼玉県さいたま市大宮区吉敷町 |
部屋番号 |
***号室 |
間取り |
1K(洋7.3) |
専有面積 |
27.20㎡ |
築年数 |
2009年1月(築17年) |
階数 |
5階部分(地上8階建) |
方位・位置 |
南西 / 角部屋 |
物件種別 |
賃貸マンション |
構造 |
RC |
駐車場 |
- |
小学校学区 |
大宮南小学校 |
中学校学区 |
大宮南中学校 |
他の空き部屋 |
701号室 |
- 学区データについて
- ※学区データは必ずしも正確とは限りません。詳細に関しては最寄店舗または各自治体の教育委員会に必ずご確認ください。
スパシエカステロ新都心 ***号室の特徴
契約条件
ペットの飼育もご相談ください。 また、ご契約時に保証人は不要です。
セキュリティ
この物件の建物には、オートロックや防犯カメラや宅配ボックスが設置されております。
室内設備
システムキッチンには、2つ以上のガスコンロが備え付けられています。 トイレは、温水洗浄便座機能付きになります。 女性に嬉しい設備のシャワーの付いている洗面化粧台があります。 洗濯に便利な設備として、室内洗濯機置場があります。浴室乾燥機も設置されているので、梅雨時の生乾き臭も比較的防ぐことができます。
居室状況
お部屋の床は、フローリングとなっており、エアコンが設置されています。 収納スペースとして、基本的な居室にクローゼットを設置、玄関にはシューズボックスがあります。
建物設備共用部分
居室外の専有スペースとして、洗濯物を干すなどの用途として利用できるバルコニーがあります。 建物の共用スペースに、日々の出入に便利なエレベーターや、いざという時の防犯カメラや、急な外出や不在がちのご家庭の荷物受け取りに便利な宅配ボックスが設置されています。
周辺施設
この物件の学区は、大宮南小学校区・大宮南中学校区です。
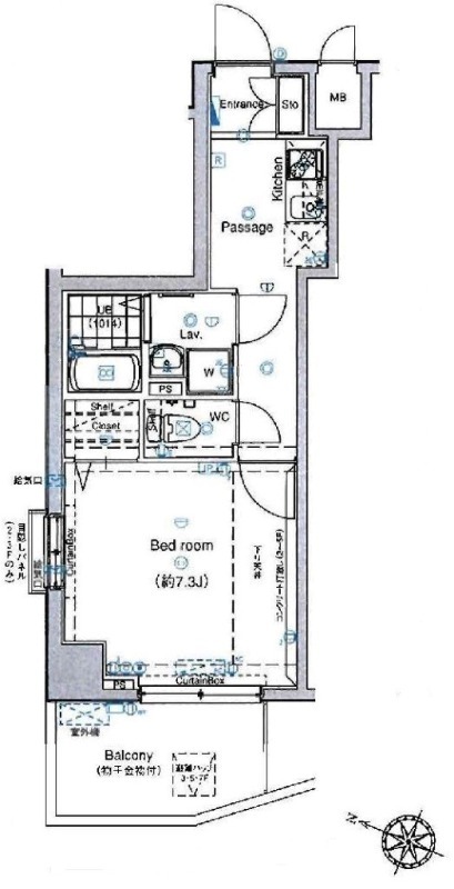
スパシエカステロ新都心 ***号室の間取り
間取り:1K
間取詳細:1K(洋7.3)
専有面積:27.20㎡
方位:南西
部屋位置:角部屋
スパシエカステロ新都心 ***号室の設備
キッチン
システムキッチン
ガスコンロ
ガスコンロ二口以上
バス・トイレ
バス・トイレ別
浴室乾燥機
温水洗浄便座
独立洗面台
シャワー付洗面化粧台
玄関
オートロック
宅配ボックス
収納
クローゼット
シューズボックス
バルコニー
バルコニー
ルーフバルコニー
室内設備
エアコン
フローリング
室内洗濯機置場
位置・立地
2階以上
角部屋
インフラ
インターネット可
都市ガス
建物設備
エレベーター
防犯カメラ
入居条件
ペット可・相談
オンライン相談可
オンライン内見可
保証人不要
ライフステージ
一人暮らしに人気の設備
カップルに人気の設備
家族に人気の設備
夫婦に人気の設備
三世代で人気の設備
こだわり
外で子どもと遊びたい
雨の日でも洗濯したい
洋室で暮らしたい
趣味
ガーデニングが好き
スパシエカステロ新都心 ***号室の賃貸契約情報
毎月支払う |
家賃7.2万円/月共益費15,000円/月 |
|---|---|
初期費用 |
敷金1.5ヶ月 (10.8万円)礼金1ヶ月 (7.2万円)保証金-敷引き償却金- |
更新料 |
72,000円 |
鍵交換費用 |
33,000円 |
室内清掃費用 |
- |
24時間サポート |
16,500円 |
室内抗菌費用 |
19,800円 |
駐車場料金 |
- |
損保・ |
借家賠付きの火災保険にご加入いただきます。 |
保証会社 |
加入要 保証会社利用料:初回契約時:40%、外国籍の方 ROOMiDグローバル 初回100% 月次2% |
契約期間 |
2年 |
入居可能日 |
相談 |
フリーレント期間 |
- |
取引形態 |
一般媒介 |
備考 |
ペット飼育時:敷金1ヶ月分(償却) |
スパシエカステロ新都心 ***号室の建物情報
建物名称 |
スパシエカステロ新都心 |
|---|---|
最寄駅 |
|
所在地 |
埼玉県さいたま市大宮区吉敷町 |
階層 |
5階部分(地上8階建) |
構造 |
RC |
築年数 |
2009年1月(築17年) |
駐車場 |
- |
小学校学区 |
大宮南小学校 |
中学校学区 |
大宮南中学校 |
- 学区データについて
- ※学区データは必ずしも正確とは限りません。詳細に関しては最寄店舗または各自治体の教育委員会に必ずご確認ください。
無料この物件に問い合わせ
- スパシエカステロ新都心 ***号室

-
7.2万円
(共益費
15,000円)
- 敷
- 1.5ヶ月
- 礼
- 1ヶ月
- 保
- -
- 償
- -
スパシエカステロ新都心 ***号室の物件のお問い合わせ先・取り扱い店舗
ハウスコム 北浦和店
- アクセス
-
京浜東北・根岸線「北浦和駅」西口徒歩1分
- 住所
- 〒330-0074 埼玉県さいたま市浦和区北浦和4丁目1−13 北浦和BLDG 1階
- 営業時間
- 10:00~18:00
- 定休日
- 水曜日
- 営業エリア
- さいたま市内浦和区、桜区、中央区、緑区、南区、大宮区、西区、見沼区、岩槻区
- 取引態様
- 賃貸仲介業





























