k1 apartments 105号室(1階/1LDK)の賃貸物件(賃貸アパート)
東京都足立区にあるk1 apartments 105号室はガスコンロ、温水洗浄便座、独立洗面台、宅配ボックス、インターネット可などが特徴です。最寄り駅の東武スカイツリーライン・伊勢崎線・大師線梅島駅から徒歩8分です。k1 apartments 105号室の詳細はハウスコム 青砥店までお気軽にお問い合わせください!
情報更新日:
次回更新予定日:
※次回更新予定日について:お店側では順次空室確認を行っていますが、次回更新予定日までに空室確認が行えない場合には、この物件情報は自動的に削除されます。
k1 apartments 105号室の賃貸物件部屋概要
家賃 |
9万円
初期費用を |
|---|---|
共益費 |
5,000円
入居可能時期 |
敷金/礼金 |
- / - |
保証金/ |
- / - |
最寄駅 |
|
所在地 |
東京都足立区梅田 |
部屋番号 |
105号室 |
間取り |
1LDK(LDK8・洋3.6) |
専有面積 |
28.12㎡ |
築年数 |
2023年11月(築3年) |
階数 |
1階部分(地上3階建) |
方位・位置 |
北西 / 角部屋 |
物件種別 |
賃貸アパート |
構造 |
木造 |
駐車場 |
無 |
小学校学区 |
梅島第二小学校 |
中学校学区 |
第九中学校 |
他の空き部屋 |
102号室 |
- 学区データについて
- ※学区データは必ずしも正確とは限りません。詳細に関しては最寄店舗または各自治体の教育委員会に必ずご確認ください。
k1 apartments 105号室の特徴
契約条件
この物件は、2人入居もご契約できます。 敷金と礼金が無料なため、初期費用が比較的安くなる傾向にあります。
セキュリティ
この物件の建物には、オートロックや防犯カメラや宅配ボックスが設置されており、来客時には居室内のテレビモニターにて訪問者の顔を確認することができます。
室内設備
システムキッチンには、2つ以上のガスコンロが備え付けられています。 トイレは、温水洗浄便座機能付きになります。 女性に嬉しい設備の独立した洗面化粧台があります。 洗濯に便利な設備として、浴室乾燥機も設置されているので、梅雨時の生乾き臭も比較的防ぐことができます。
居室状況
お部屋の床は、フローリングとなっており、エアコンが設置されています。 インターネットも無料で入居後すぐ生活が始められます。 収納スペースとして、基本的な居室にクローゼットを設置、玄関にはシューズボックスがあります。
建物設備共用部分
建物の共用スペースに、いざという時の防犯カメラや、急な外出や不在がちのご家庭の荷物受け取りに便利な宅配ボックスが設置されています。
周辺施設
この物件の学区は、梅島第二小学校区・第九中学校区です。
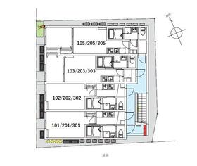
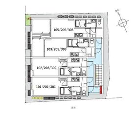
k1 apartments 105号室の間取り
間取り:1LDK
間取詳細:1LDK(LDK8・洋3.6)
専有面積:28.12㎡
方位:北西
部屋位置:角部屋
k1 apartments 105号室の設備
キッチン
システムキッチン
ガスコンロ
ガスコンロ二口以上
バス・トイレ
バス・トイレ別
浴室乾燥機
温水洗浄便座
独立洗面台
玄関
TVモニタ付インターホン
オートロック
宅配ボックス
収納
クローゼット
シューズボックス
室内設備
エアコン
フローリング
デザイナーズ
位置・立地
1階
角部屋
インフラ
インターネット可
プロパンガス
建物設備
防犯カメラ
入居条件
2人入居可
即入居可
ライフステージ
一人暮らしに人気の設備
カップルに人気の設備
家族に人気の設備
夫婦に人気の設備
三世代で人気の設備
こだわり
雨の日でも洗濯したい
洋室で暮らしたい
趣味
オークション・通販が好き
お得な条件
インターネット無料
k1 apartments 105号室の賃貸契約情報
毎月支払う |
家賃9万円/月共益費5,000円/月 |
|---|---|
初期費用 |
敷金-礼金-保証金-敷引き償却金- |
更新料 |
90,000円 |
鍵交換費用 |
22,000円 |
室内清掃費用 |
- |
入居者アプリ設定費 |
16,500円 |
退去時ハウスクリーニング |
55,000円 |
駐車場料金 |
無 |
損保・ |
借家賠付きの火災保険にご加入いただきます。 |
保証会社 |
加入要 保証会社利用料:初回契約時:100%、【東京】総賃料の100%(支払手数料2%) |
契約期間 |
2年 |
入居可能日 |
即入居可 |
フリーレント期間 |
- |
取引形態 |
一般媒介 |
備考 |
- |
k1 apartments 105号室の建物情報
建物名称 |
k1 apartments |
|---|---|
最寄駅 |
|
所在地 |
東京都足立区梅田 |
階層 |
1階部分(地上3階建) |
構造 |
木造 |
築年数 |
2023年11月(築3年) |
駐車場 |
無 |
小学校学区 |
梅島第二小学校 |
中学校学区 |
第九中学校 |
- 学区データについて
- ※学区データは必ずしも正確とは限りません。詳細に関しては最寄店舗または各自治体の教育委員会に必ずご確認ください。
無料この物件に問い合わせ
- k1 apartments 105号室

-
9万円
(共益費
5,000円)
- 敷
- -
- 礼
- -
- 保
- -
- 償
- -
k1 apartments 105号室の物件のお問い合わせ先・取り扱い店舗
ハウスコム 青砥店
- アクセス
-
京成本線「青砥駅」改札を出て左折徒歩1分
- 住所
- 〒125-0062 東京都葛飾区青戸2丁目2−20 メゾンノア 1階
- 営業時間
- 10:00~18:00
- 定休日
- なし
- 営業エリア
- ◆葛飾区◆墨田区◆江戸川区◆足立区◆松戸市◆
- 取引態様
- 賃貸仲介業























