ザ・パークハビオ荏原中延駅前 601号室(6階/1K)の賃貸物件(賃貸マンション)
東京都品川区にあるザ・パークハビオ荏原中延駅前 601号室は独立洗面台、ルーフバルコニー、照明器具付、インターネット可、防犯カメラなどが特徴です。最寄り駅の東急池上線荏原中延駅から徒歩1分です。ザ・パークハビオ荏原中延駅前 601号室の詳細はハウスコム 大井町店までお気軽にお問い合わせください!
情報更新日:
次回更新予定日:
※次回更新予定日について:お店側では順次空室確認を行っていますが、次回更新予定日までに空室確認が行えない場合には、この物件情報は自動的に削除されます。
ザ・パークハビオ荏原中延駅前 601号室の賃貸物件部屋概要
家賃 |
13.4万円
初期費用を |
|---|---|
共益費 |
15,000円
入居可能時期 |
敷金/礼金 |
134,000円 / 134,000円 |
保証金/ |
- / - |
最寄駅 |
|
所在地 |
東京都品川区東中延 |
部屋番号 |
601号室 |
間取り |
1K(洋7.3) |
専有面積 |
25.20㎡ |
築年数 |
2023年1月(築3年) |
階数 |
6階部分(地上13階建) |
方位・位置 |
西 / その他 |
物件種別 |
賃貸マンション |
構造 |
RC |
駐車場 |
44,000円 |
小学校学区 |
延山小学校 |
中学校学区 |
荏原平塚学園義務教育学校 |
他の空き部屋 |
606号室 |
- 学区データについて
- ※学区データは必ずしも正確とは限りません。詳細に関しては最寄店舗または各自治体の教育委員会に必ずご確認ください。
ザ・パークハビオ荏原中延駅前 601号室の特徴
-
一人暮らしに人気の設備

-
カップルに人気の設備

-
家族に人気の設備

-
夫婦に人気の設備

-
三世代で人気の設備

-
セキュリティ対策重視

-
外で子どもと遊びたい

-
雨の日でも洗濯したい

-
洋室で暮らしたい

-
ガーデニングが好き

契約条件
ペットの飼育や楽器演奏もご相談ください。 また、ご契約時に保証人は不要です。
セキュリティ
この物件の建物には、オートロックや防犯カメラが設置されており、来客時には居室内のテレビモニターにて訪問者の顔を確認することができます。
室内設備
システムキッチンには、2つ以上のガスコンロが備え付けられています。 お風呂とトイレは別です。お風呂には、追い焚き機能が備わっています。 トイレは、温水洗浄便座機能付きになります。 女性に嬉しい設備の独立した洗面化粧台があります。 洗濯に便利な設備として、室内洗濯機置場があります。浴室乾燥機も設置されているので、梅雨時の生乾き臭も比較的防ぐことができます。
居室状況
お部屋の床は、フローリングとなっており、エアコンが設置されています。 照明器具が備え付けられており、インターネットも無料で入居後すぐ生活が始められます。 収納スペースとして、基本的な居室にクローゼットを設置、玄関にはシューズボックスがあります。
建物設備共用部分
居室外の専有スペースとして、洗濯物を干すなどの用途として利用できるバルコニーがあります。 建物の共用スペースに、日々の出入に便利なエレベーターや、いざという時の防犯カメラや、居室内を常に清潔に保てる24時間利用可能なゴミ捨て置き場が設置されています。 駐輪場が利用できます。
周辺施設
この物件の学区は、延山小学校区・荏原平塚学園義務教育学校区です。
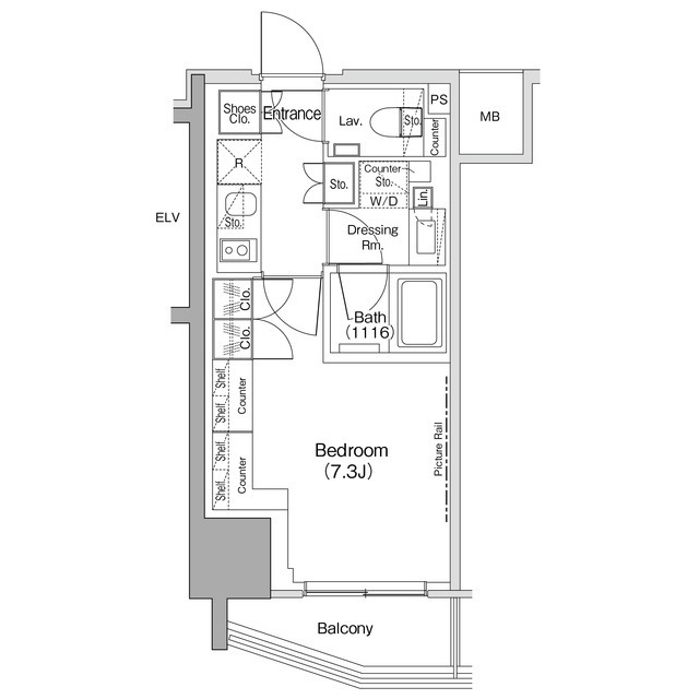
ザ・パークハビオ荏原中延駅前 601号室の間取り
間取り:1K
間取詳細:1K(洋7.3)
専有面積:25.20㎡
方位:西
部屋位置:その他
ザ・パークハビオ荏原中延駅前 601号室の設備
キッチン
システムキッチン
ガスコンロ
ガスコンロ二口以上
バス・トイレ
バス・トイレ別
追い焚き
浴室乾燥機
温水洗浄便座
独立洗面台
玄関
TVモニタ付インターホン
オートロック
収納
クローゼット
シューズボックス
バルコニー
バルコニー
ルーフバルコニー
室内設備
エアコン
フローリング
室内洗濯機置場
照明器具付
位置・立地
2階以上
インフラ
インターネット可
BS
都市ガス
建物設備
エレベーター
防犯カメラ
24時間ゴミ出しOK
駐輪場
入居条件
ペット可・相談
楽器可・相談
オンライン相談可
オンライン内見可
保証人不要
ライフステージ
一人暮らしに人気の設備
カップルに人気の設備
家族に人気の設備
夫婦に人気の設備
三世代で人気の設備
こだわり
セキュリティ対策重視
外で子どもと遊びたい
雨の日でも洗濯したい
洋室で暮らしたい
趣味
ガーデニングが好き
お得な条件
インターネット無料
ザ・パークハビオ荏原中延駅前 601号室の賃貸契約情報
毎月支払う |
家賃13.4万円/月共益費15,000円/月 |
|---|---|
初期費用 |
敷金134,000円礼金134,000円保証金-敷引き償却金- |
更新料 |
- |
鍵交換費用 |
- |
室内清掃費用 |
- |
駐車場料金 |
44,000円 |
損保・ |
借家賠付きの火災保険にご加入いただきます。 |
保証会社 |
加入要 保証会社利用料:賃料等合計額の50%(最低保証料2万円)2年目以降:1年毎1万円 |
契約期間 |
- |
入居可能日 |
2026年03月下旬 |
フリーレント期間 |
- |
取引形態 |
一般媒介 |
備考 |
- |
ザ・パークハビオ荏原中延駅前 601号室の建物情報
建物名称 |
ザ・パークハビオ荏原中延駅前 |
|---|---|
最寄駅 |
|
所在地 |
東京都品川区東中延 |
階層 |
6階部分(地上13階建) |
構造 |
RC |
築年数 |
2023年1月(築3年) |
駐車場 |
44,000円 |
小学校学区 |
延山小学校 |
中学校学区 |
荏原平塚学園義務教育学校 |
- 学区データについて
- ※学区データは必ずしも正確とは限りません。詳細に関しては最寄店舗または各自治体の教育委員会に必ずご確認ください。
無料この物件に問い合わせ
- ザ・パークハビオ荏原中延駅前 601号室

-
13.4万円
(共益費
15,000円)
- 敷
- 134,000円
- 礼
- 134,000円
- 保
- -
- 償
- -
ザ・パークハビオ荏原中延駅前 601号室の物件のお問い合わせ先・取り扱い店舗
ハウスコム 大井町店
- アクセス
-
京浜東北・根岸線「大井町駅」徒歩1分
- 住所
- 〒140-0014 東京都品川区大井1-2-19
- 営業時間
- 10:00~18:00
- 定休日
- 水曜日(年末年始は休業)
- 営業エリア
- 品川区、大田区 港区
- 取引態様
- 賃貸仲介業






















