レオパレスアンティーク 107号室(1階/1K)の賃貸物件(賃貸アパート)
東京都多摩市にあるレオパレスアンティーク 107号室はフローリング、室内洗濯機置場、家具付、駐輪場、外国人可・相談などが特徴です。最寄り駅の京王相模原線京王永山駅から徒歩21分です。レオパレスアンティーク 107号室の詳細はハウスコム 聖蹟桜ヶ丘店までお気軽にお問い合わせください!
情報更新日:
次回更新予定日:
※次回更新予定日について:お店側では順次空室確認を行っていますが、次回更新予定日までに空室確認が行えない場合には、この物件情報は自動的に削除されます。
レオパレスアンティーク 107号室の賃貸物件部屋概要
家賃 |
5.5万円
初期費用を |
|---|---|
共益費 |
5,000円
入居可能時期 |
敷金/礼金 |
- / 55,000円 |
保証金/ |
- / - |
最寄駅 |
|
所在地 |
東京都多摩市落川 |
部屋番号 |
107号室 |
間取り |
1K(洋7.1) |
専有面積 |
19.87㎡ |
築年数 |
2009年6月(築17年) |
階数 |
1階部分(地上2階建) |
方位・位置 |
南西 / その他 |
物件種別 |
賃貸アパート |
構造 |
木造 |
駐車場 |
19,800円 |
小学校学区 |
愛和小学校 |
中学校学区 |
和田中学校 |
他の空き部屋 |
ー |
- 学区データについて
- ※学区データは必ずしも正確とは限りません。詳細に関しては最寄店舗または各自治体の教育委員会に必ずご確認ください。
レオパレスアンティーク 107号室の特徴
契約条件
この物件は、外国籍の方もご相談の上、ご契約できます。 また、ご契約時に保証人は不要です。 敷金が無料なため、初期費用が比較的安くなる傾向にあります。
セキュリティ
来客時には居室内のテレビモニターにて訪問者の顔を確認することができます。
室内設備
システムキッチンには、IHコンロが設置されており、キッチン設備として冷蔵庫が備え付けられています。 トイレは、温水洗浄便座機能付きになります。 洗濯に便利な設備として、室内洗濯機置場があります。浴室乾燥機も設置されているので、梅雨時の生乾き臭も比較的防ぐことができます。
居室状況
お部屋の床は、フローリングとなっており、エアコンが設置されています。 家具と家電が備え付けられており、入居後すぐ生活が始められます。 収納スペースとして、基本的な居室にクローゼットを設置、玄関にはシューズボックスがあります。
建物設備共用部分
平面駐車場があります。駐輪場が利用できます。
周辺施設
この物件の学区は、愛和小学校区・和田中学校区です。
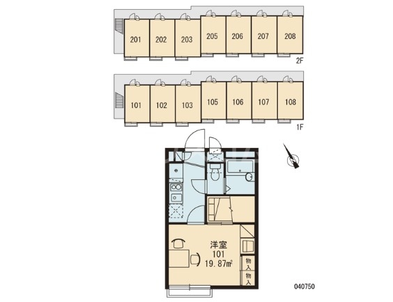
レオパレスアンティーク 107号室の間取り
間取り:1K
間取詳細:1K(洋7.1)
専有面積:19.87㎡
方位:南西
部屋位置:その他
レオパレスアンティーク 107号室の設備
キッチン
システムキッチン
IHコンロ
冷蔵庫付
バス・トイレ
バス・トイレ別
浴室乾燥機
温水洗浄便座
玄関
TVモニタ付インターホン
収納
クローゼット
シューズボックス
室内設備
エアコン
フローリング
室内洗濯機置場
家具付
家電付
位置・立地
1階
インフラ
インターネット可
CATV
建物設備
駐車場
平面駐車場
駐輪場
入居条件
外国人可・相談
オンライン相談可
オンライン内見可
保証人不要
ライフステージ
一人暮らしに人気の設備
カップルに人気の設備
家族に人気の設備
夫婦に人気の設備
三世代で人気の設備
こだわり
雨の日でも洗濯したい
洋室で暮らしたい
レオパレスアンティーク 107号室の賃貸契約情報
毎月支払う |
家賃5.5万円/月共益費5,000円/月 |
|---|---|
初期費用 |
敷金-礼金55,000円保証金-敷引き償却金- |
更新料 |
- |
鍵交換費用 |
16,500円 |
室内清掃費用 |
41,800円 |
抗菌施工(任意) |
23,760円 |
駐車場料金 |
19,800円 |
損保・ |
借家賠付きの火災保険にご加入いただきます。 |
保証会社 |
加入要 保証会社利用料:初回保証料100% |
契約期間 |
2年 |
入居可能日 |
即入居可 |
フリーレント期間 |
- |
取引形態 |
一般媒介 |
備考 |
火災保険13130円 クリーニング代41800円 鍵交換16500円 |
レオパレスアンティーク 107号室の建物情報
建物名称 |
レオパレスアンティーク |
|---|---|
最寄駅 |
|
所在地 |
東京都多摩市落川 |
階層 |
1階部分(地上2階建) |
構造 |
木造 |
築年数 |
2009年6月(築17年) |
駐車場 |
19,800円 |
小学校学区 |
愛和小学校 |
中学校学区 |
和田中学校 |
- 学区データについて
- ※学区データは必ずしも正確とは限りません。詳細に関しては最寄店舗または各自治体の教育委員会に必ずご確認ください。
無料この物件に問い合わせ
- レオパレスアンティーク 107号室

-
5.5万円
(共益費
5,000円)
- 敷
- -
- 礼
- 55,000円
- 保
- -
- 償
- -
レオパレスアンティーク 107号室の物件のお問い合わせ先・取り扱い店舗
ハウスコム 聖蹟桜ヶ丘店
- アクセス
-
京王線「聖蹟桜ヶ丘駅」西口徒歩2分
- 住所
- 〒206-0002 東京都多摩市一ノ宮2丁目11−21 京王電器ビル 1階
- 営業時間
- 10:00~18:00
- 定休日
- 水曜日
- 営業エリア
- 多摩市 日野市 八王子市 府中市 稲城市 調布市
- 取引態様
- 賃貸仲介業































