下落合の完工年月(2003年1月)築の賃貸マンション ***号室(1階/3LDK)の賃貸物件(賃貸マンション)
東京都新宿区にある下落合の完工年月(2003年1月)築の賃貸マンション ***号室はバス・トイレ別、独立洗面台、オートロック、宅配ボックス、インターネット可などが特徴です。最寄り駅の西武新宿線下落合駅から徒歩4分です。下落合の完工年月(2003年1月)築の賃貸マンション ***号室の詳細はハウスコム 新宿店までお気軽にお問い合わせください!
情報更新日:
次回更新予定日:
※次回更新予定日について:お店側では順次空室確認を行っていますが、次回更新予定日までに空室確認が行えない場合には、この物件情報は自動的に削除されます。
下落合の完工年月(2003年1月)築の賃貸マンション ***号室の賃貸物件部屋概要
家賃 |
38万円
初期費用を |
|---|---|
共益費 |
25,000円
入居可能時期 |
敷金/礼金 |
1ヶ月 / 1ヶ月 |
保証金/ |
- / - |
最寄駅 |
|
所在地 |
東京都新宿区下落合 |
部屋番号 |
***号室 |
間取り |
3LDK(他15.7・K4・洋7.7・洋6.1・洋5.1) |
専有面積 |
85.20㎡ |
築年数 |
2003年1月(築24年) |
階数 |
1階部分(地上3階地下1階建) |
方位・位置 |
南 / その他 |
物件種別 |
賃貸マンション |
構造 |
RC |
駐車場 |
31,900円 |
小学校学区 |
落合第四小学校 |
中学校学区 |
落合中学校 |
他の空き部屋 |
ー |
- 学区データについて
- ※学区データは必ずしも正確とは限りません。詳細に関しては最寄店舗または各自治体の教育委員会に必ずご確認ください。
下落合の完工年月(2003年1月)築の賃貸マンション ***号室の特徴
契約条件
この物件は、2人入居もご契約できます。
セキュリティ
この物件の建物には、オートロックや防犯カメラや宅配ボックスが設置されており、来客時には居室内のテレビモニターにて訪問者の顔を確認することができます。
室内設備
システムキッチンが備え付けられています。 お風呂とトイレは別です。お風呂には、追い焚き機能が備わっています。 トイレは、温水洗浄便座機能付きになります。 女性に嬉しい設備の独立した洗面化粧台があります。 洗濯に便利な設備として、室内洗濯機置場があります。浴室乾燥機も設置されているので、梅雨時の生乾き臭も比較的防ぐことができます。
居室状況
お部屋の床は、フローリングとなっており、エアコンが設置されています。 収納スペースとして、基本的な居室にクローゼットを設置、玄関にはシューズボックスがあります。
建物設備共用部分
居室外の専有スペースとして、洗濯物を干すなどの用途として利用できるバルコニーがあります。 建物の共用スペースに、日々の出入に便利なエレベーターや、いざという時の防犯カメラや、急な外出や不在がちのご家庭の荷物受け取りに便利な宅配ボックスが設置されています。 駐輪場が利用できます。
周辺施設
この物件の学区は、落合第四小学校区・落合中学校区です。
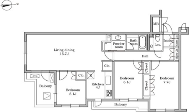
下落合の完工年月(2003年1月)築の賃貸マンション ***号室の間取り
間取り:3LDK
間取詳細:3LDK(他15.7・K4・洋7.7・洋6.1・洋5.1)
専有面積:85.20㎡
方位:南
部屋位置:その他
下落合の完工年月(2003年1月)築の賃貸マンション ***号室の設備
キッチン
システムキッチン
バス・トイレ
バス・トイレ別
追い焚き
浴室乾燥機
温水洗浄便座
独立洗面台
玄関
TVモニタ付インターホン
オートロック
宅配ボックス
収納
クローゼット
シューズボックス
バルコニー
バルコニー
ルーフバルコニー
室内設備
エアコン
フローリング
室内洗濯機置場
位置・立地
1階
南向き
インフラ
インターネット可
BS
CS
都市ガス
建物設備
エレベーター
防犯カメラ
駐輪場
入居条件
2人入居可
オンライン相談可
オンライン内見可
ライフステージ
一人暮らしに人気の設備
カップルに人気の設備
家族に人気の設備
夫婦に人気の設備
三世代で人気の設備
こだわり
外で子どもと遊びたい
雨の日でも洗濯したい
洋室で暮らしたい
趣味
ガーデニングが好き
下落合の完工年月(2003年1月)築の賃貸マンション ***号室の賃貸契約情報
毎月支払う |
家賃38万円/月共益費25,000円/月 |
|---|---|
初期費用 |
敷金1ヶ月 (38万円)礼金1ヶ月 (38万円)保証金-敷引き償却金- |
更新料 |
380,000円 |
鍵交換費用 |
22,000円 |
室内清掃費用 |
- |
入居者限定会員サービス |
11,000円 |
駐車場料金 |
31,900円 |
損保・ |
借家賠付きの火災保険にご加入いただきます。 |
保証会社 |
加入要 保証会社利用料:【IRS③】IUCレジデンシャルサポート |
契約期間 |
2年 |
入居可能日 |
2026年02月下旬 |
フリーレント期間 |
- |
取引形態 |
一般媒介 |
備考 |
- |
下落合の完工年月(2003年1月)築の賃貸マンション ***号室の建物情報
建物名称 |
下落合の完工年月(2003年1月)築の賃貸マンション |
|---|---|
最寄駅 |
|
所在地 |
東京都新宿区下落合 |
階層 |
1階部分(地上3階地下1階建) |
構造 |
RC |
築年数 |
2003年1月(築24年) |
駐車場 |
31,900円 |
小学校学区 |
落合第四小学校 |
中学校学区 |
落合中学校 |
- 学区データについて
- ※学区データは必ずしも正確とは限りません。詳細に関しては最寄店舗または各自治体の教育委員会に必ずご確認ください。
無料この物件に問い合わせ
- 下落合の完工年月(2003年1月)築の賃貸マンション ***号室

-
38万円
(共益費
25,000円)
- 敷
- 1ヶ月
- 礼
- 1ヶ月
- 保
- -
- 償
- -
下落合の完工年月(2003年1月)築の賃貸マンション ***号室の物件のお問い合わせ先・取り扱い店舗
ハウスコム 新宿店
- アクセス
-
山手線「新宿駅」徒歩1分
- 住所
- 〒160-0022 東京都新宿区新宿3-36-2 新宿キリンビル3階
- 営業時間
- 10:00~18:00
- 定休日
- 水曜日(12月25日~1月3日まで年末年始休業)
- 営業エリア
- 主に新宿区・渋谷区(その他の地域もご紹介可能です)
- 取引態様
- 賃貸仲介業

















