リブリ・三ノ輪 202号室(2階/1K)の賃貸物件(賃貸マンション)
東京都荒川区にあるリブリ・三ノ輪 202号室はシステムキッチン、IHコンロ、宅配ボックス、ルーフバルコニー、2階以上などが特徴です。最寄り駅の東京メトロ 日比谷線三ノ輪駅から徒歩12分です。リブリ・三ノ輪 202号室の詳細はハウスコム 綾瀬店までお気軽にお問い合わせください!
情報更新日:
次回更新予定日:
※次回更新予定日について:お店側では順次空室確認を行っていますが、次回更新予定日までに空室確認が行えない場合には、この物件情報は自動的に削除されます。
リブリ・三ノ輪 202号室の賃貸物件部屋概要
家賃 |
9万円
初期費用を |
|---|---|
共益費 |
3,000円
入居可能時期 |
敷金/礼金 |
- / 1ヶ月 |
保証金/ |
- / - |
最寄駅 |
|
所在地 |
東京都荒川区南千住 |
部屋番号 |
202号室 |
間取り |
1K(洋6.8) |
専有面積 |
23.60㎡ |
築年数 |
新築 |
階数 |
2階部分(地上3階建) |
方位・位置 |
西 / 角部屋 |
物件種別 |
賃貸マンション |
構造 |
鉄骨造 |
駐車場 |
- |
小学校学区 |
瑞光小学校 |
中学校学区 |
第一中学校 |
他の空き部屋 |
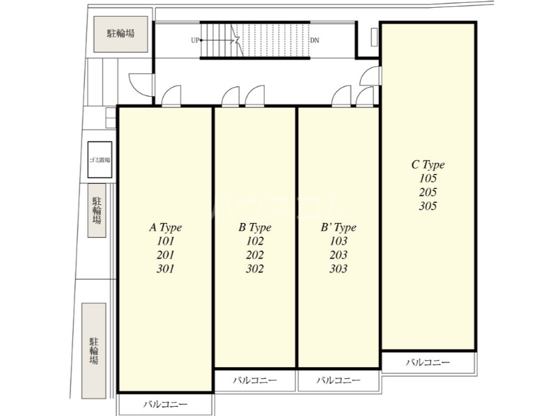
102号室 103号室 105号室 201号室 301号室 302号室 303号室 |
- 学区データについて
- ※学区データは必ずしも正確とは限りません。詳細に関しては最寄店舗または各自治体の教育委員会に必ずご確認ください。
リブリ・三ノ輪 202号室の特徴
-
一人暮らしに人気の設備

-
カップルに人気の設備

-
家族に人気の設備

-
夫婦に人気の設備

-
三世代で人気の設備

-
セキュリティ対策重視

-
外で子どもと遊びたい

-
雨の日でも洗濯したい

-
洋室で暮らしたい

-
オークション・通販が好き

-
ガーデニングが好き

契約条件
この物件は、2人入居もご契約できます。 敷金が無料なため、初期費用が比較的安くなる傾向にあります。
セキュリティ
この物件の建物には、オートロックや防犯カメラや宅配ボックスが設置されており、来客時には居室内のテレビモニターにて訪問者の顔を確認することができます。
室内設備
システムキッチンには、IHコンロが備え付けられています。 トイレは、温水洗浄便座機能付きになります。 女性に嬉しい設備の独立した洗面化粧台があります。 洗濯に便利な設備として、室内洗濯機置場があります。浴室乾燥機も設置されているので、梅雨時の生乾き臭も比較的防ぐことができます。
居室状況
お部屋の床は、フローリングとなっており、エアコンが設置されています。 インターネットも無料で入居後すぐ生活が始められます。 収納スペースとして、基本的な居室にクローゼットがあります。
建物設備共用部分
居室外の専有スペースとして、洗濯物を干すなどの用途として利用できるバルコニーがあります。 建物の共用スペースに、いざという時の防犯カメラや、急な外出や不在がちのご家庭の荷物受け取りに便利な宅配ボックスが設置されています。 駐輪場が利用できます。
周辺施設
この物件の学区は、瑞光小学校区・第一中学校区です。
リブリ・三ノ輪 202号室の間取り
間取り:1K
間取詳細:1K(洋6.8)
専有面積:23.60㎡
方位:西
部屋位置:角部屋
リブリ・三ノ輪 202号室の設備
キッチン
システムキッチン
IHコンロ
バス・トイレ
バス・トイレ別
浴室乾燥機
温水洗浄便座
独立洗面台
玄関
TVモニタ付インターホン
オートロック
宅配ボックス
収納
クローゼット
バルコニー
バルコニー
ルーフバルコニー
室内設備
エアコン
フローリング
室内洗濯機置場
位置・立地
2階以上
角部屋
インフラ
インターネット可
都市ガス
建物設備
防犯カメラ
駐輪場
入居条件
2人入居可
オンライン相談可
オンライン内見可
ライフステージ
一人暮らしに人気の設備
カップルに人気の設備
家族に人気の設備
夫婦に人気の設備
三世代で人気の設備
こだわり
セキュリティ対策重視
外で子どもと遊びたい
雨の日でも洗濯したい
洋室で暮らしたい
趣味
オークション・通販が好き
ガーデニングが好き
お得な条件
インターネット無料
リブリ・三ノ輪 202号室の賃貸契約情報
毎月支払う |
家賃9万円/月共益費3,000円/月 |
|---|---|
初期費用 |
敷金-礼金1ヶ月 (9万円)保証金-敷引き償却金- |
更新料 |
90,000円 |
鍵交換費用 |
24,200円 |
室内清掃費用 |
52,800円 |
鍵設定費用 |
24,200円 |
リブリクラブ入会費 |
7,700円 |
駐車場料金 |
- |
損保・ |
借家賠付きの火災保険にご加入いただきます。 |
保証会社 |
加入要 保証会社利用料:基本保証料:月額支払合計の100% 月額保証料:月額支払合計の1.1% 口座振替手数料330円 |
契約期間 |
定期借家 2年 |
入居可能日 |
2026年01月上旬 |
フリーレント期間 |
- |
取引形態 |
一般媒介 |
備考 |
1年未満の解約時 賃料・管理費の1ヶ月分の違約金有 駐輪場:有料 |
リブリ・三ノ輪 202号室の建物情報
建物名称 |
リブリ・三ノ輪 |
|---|---|
最寄駅 |
|
所在地 |
東京都荒川区南千住 |
階層 |
2階部分(地上3階建) |
構造 |
鉄骨造 |
築年数 |
新築 |
駐車場 |
- |
小学校学区 |
瑞光小学校 |
中学校学区 |
第一中学校 |
- 学区データについて
- ※学区データは必ずしも正確とは限りません。詳細に関しては最寄店舗または各自治体の教育委員会に必ずご確認ください。
無料この物件に問い合わせ
- リブリ・三ノ輪 202号室

-
9万円
(共益費
3,000円)
- 敷
- -
- 礼
- 1ヶ月
- 保
- -
- 償
- -
リブリ・三ノ輪 202号室の物件のお問い合わせ先・取り扱い店舗
ハウスコム 綾瀬店
- アクセス
-
東京メトロ 千代田線「綾瀬駅」西口徒歩1分
常磐線各駅停車(千代田線直通)「綾瀬駅」西口徒歩1分
- 住所
- 〒120-0005 東京都足立区綾瀬4丁目7−5 石崎ビル 1階
- 営業時間
- 10:00~18:00
- 定休日
- 水曜日
- 営業エリア
- 足立区・葛飾区・八潮市・三郷市・松戸市
- 取引態様
- 賃貸仲介業




























